Compact, low-maintenance four-bedroom home with garden and garage.
4 bedrooms including principal with en-suite
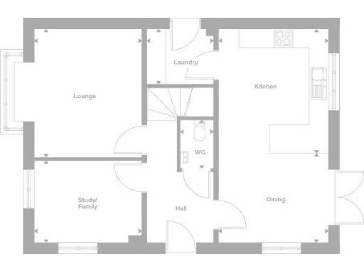
French doors from kitchen/diner to garden
Separate study and laundry—good for home working
Single garage and large plot with garden
Small internal area (approx. 989 sq ft) — efficient layout
10-year NHBC warranty included for buyer protection
Annual service charge £134.59; £1,000 reservation fee
Area crime reported above average — check local security
This four-bedroom detached new build on Boroughbridge Road offers compact, well-planned family living with contemporary fixtures and a 10-year NHBC warranty. The ground floor features a kitchen/diner with French doors to the garden, a separate lounge with a feature bay window, and practical rooms such as a laundry and study—useful for home working or flexible family needs.
Upstairs the principal bedroom includes an en-suite, alongside three further bedrooms and a family bathroom. The home includes a single garage and sits on a large plot, giving outdoor space for children and gardening. Broadband speeds are fast and mobile signal is excellent, suited to remote working and streaming.
Buyers should note the internal floor area is modest at about 989 sq ft, so rooms are efficiently sized rather than expansive. There is an annual service charge of £134.59 and a £1,000 reservation fee. Crime levels in the area are reported above average; prospective purchasers may wish to review local policing and security measures.
Overall this property suits families seeking a modern, low-maintenance home in a very affluent, suburban setting with good schools nearby, but who are comfortable with a compact layout and who will value the warranty and practical extras.
4 bedroom detached house for sale in Boroughbridge Road,
Upper Poppleton,
YO26 6BE, YO26 — £579,995 • 4 bed • 1 bath • 755 ft²
4 bedroom detached house for sale in Boroughbridge Road,
Upper Poppleton,
YO26 6BE, YO26 — £507,995 • 4 bed • 1 bath • 921 ft²
4 bedroom detached house for sale in Boroughbridge Road,
Upper Poppleton,
YO26 6BE, YO26 — £539,995 • 4 bed • 1 bath • 841 ft²
4 bedroom detached house for sale in Boroughbridge Road,
Upper Poppleton,
YO26 6BE, YO26 — £579,995 • 4 bed • 1 bath • 850 ft²
4 bedroom detached house for sale in Boroughbridge Road,
Upper Poppleton,
YO26 6BE, YO26 — £519,995 • 4 bed • 1 bath • 858 ft²
4 bedroom detached house for sale in Boroughbridge Road,
Upper Poppleton,
YO26 6BE, YO26 — £504,995 • 4 bed • 1 bath • 719 ft²


















































































