Practical first purchase near shops, schools and transport links.
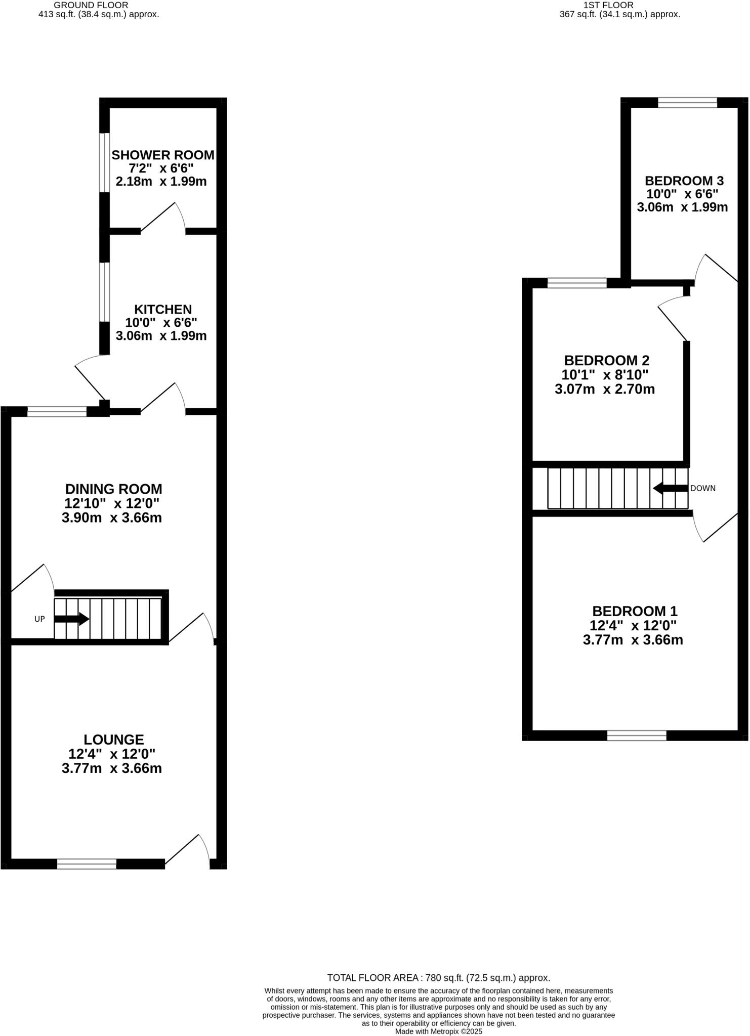
Three bedrooms with two reception rooms for flexible living or rental use
This three-bedroom mid-terrace offers a practical, wallet-friendly entry to Derby with two reception rooms and a private rear garden. The bay-fronted living room and separate dining room give flexible living space for a growing household or rental layout. Gas central heating and double glazing are already in place, and the modern fitted kitchen and shower room provide functional, low-maintenance basics.
The house is compact (approximately 780 sq ft) and sits on a small plot, so outdoor space and storage are limited. Constructed circa 1900–1929 with solid brick walls, the property likely lacks cavity insulation which will affect running costs and comfort until upgraded. The single bathroom and modest room sizes suit first-time buyers or investors seeking a straightforward let rather than buyers requiring generous family spaces.
Location is a clear strength: freehold tenure, easy walking access to shops, public transport links and local schools, plus fast broadband and excellent mobile signal. Note the wider area shows higher crime and very high deprivation indices; buyers should factor local market conditions when assessing resale or letting potential. EPC band D and council tax rated moderate.
Overall, this is a realistic first-time purchase or investment with immediate occupancy potential and scope for energy-efficiency improvements and internal modernisation to add value.
2 bedroom terraced house for sale in Sun Street, Derby, DE22 — £150,000 • 2 bed • 1 bath • 686 ft²
2 bedroom terraced house for sale in Byron Street, Derby, DE23 — £130,000 • 2 bed • 1 bath • 795 ft²
3 bedroom terraced house for sale in Meynell Street, Derby, Derbyshire, DE23 — £165,000 • 3 bed • 1 bath • 920 ft²
2 bedroom terraced house for sale in St. Giles Road, DERBY, Derbyshire, DE23 — £150,000 • 2 bed • 1 bath • 867 ft²
3 bedroom terraced house for sale in St. Giles Road, Derby, DE23 — £180,000 • 3 bed • 1 bath • 836 ft²
3 bedroom terraced house for sale in Uttoxeter Old Road, Derby, Derbyshire, DE1 — £175,000 • 3 bed • 1 bath • 1230 ft²










































