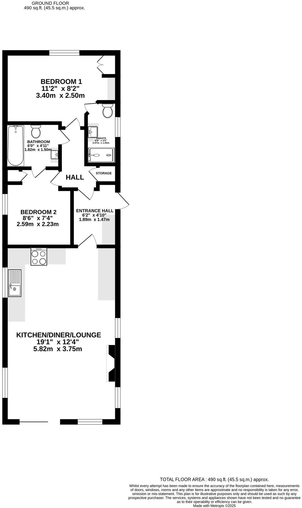
Turnkey rural holiday investment with strong rental appeal.
- Two double bedrooms with ensuite and Jack & Jill bathroom
- Open-plan kitchen/diner with large triple-aspect windows
- Built in 2023; modern, low-maintenance construction
- Small overall footprint (approx. 490 sq ft)
- Off-street parking for two cars on gravel driveway
- Decking available as an optional upgrade (not included)
- Situated on a very large plot with rural outlook
- Commonhold tenure; check park rules and management arrangements
A compact, recently built two‑bedroom lodge set in a desirable rural location, offered as a turnkey holiday home or investment. Built in 2023 and finished to a modern specification, the interior houses an open-plan kitchen/diner and a bright living area with large windows that frame uncultivated countryside views.
The lodge sits on a concrete pad with gravel driveway space for two cars and a very large plot surrounding the unit. Decking is available as an optional upgrade rather than fitted as standard. Accommodation includes an ensuite to the main bedroom and a Jack & Jill bathroom serving the second bedroom, giving flexible use as a holiday let or second home.
Key positives are low‑maintenance construction, contemporary styling and strong rental/holiday appeal in a quiet village setting with fast broadband and no flood risk. Material limitations are the small overall footprint (490 sq ft), compact living spaces typical of lodge accommodation, and the commonhold tenure which may include park rules or management arrangements buyers should verify.
2 bedroom lodge for sale in Pettaugh Road, Stonham Aspal, Stowmarket, IP14 — £89,995 • 2 bed • 2 bath • 435 ft²
2 bedroom lodge for sale in Pettaugh Road, Stonham Aspal, Stowmarket, IP14 — £199,995 • 2 bed • 2 bath • 682 ft²
2 bedroom lodge for sale in Pettaugh Road, Stonham Aspal, Stowmarket, IP14 — £139,995 • 2 bed • 2 bath • 744 ft²
2 bedroom lodge for sale in Stonham Barns Park, Pettaugh Lane, Stonham Aspal, IP14 — £139,995 • 2 bed • 2 bath • 800 ft²
2 bedroom lodge for sale in Pettaugh Road, Stonham Aspal, Stowmarket, IP14 — £129,995 • 2 bed • 2 bath • 775 ft²
2 bedroom lodge for sale in Stonham Barns Park, Stonham Aspal, IP14 6AT, IP14 — £59,995 • 2 bed • 1 bath


















































































