Perfect low-maintenance holiday base close to Stowmarket and rural walking routes.
Built in 2024 — modern build and contemporary finishes
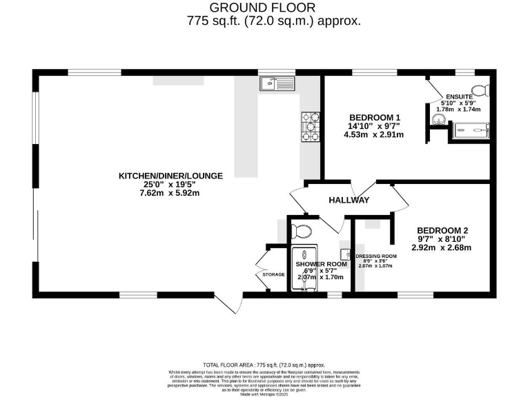
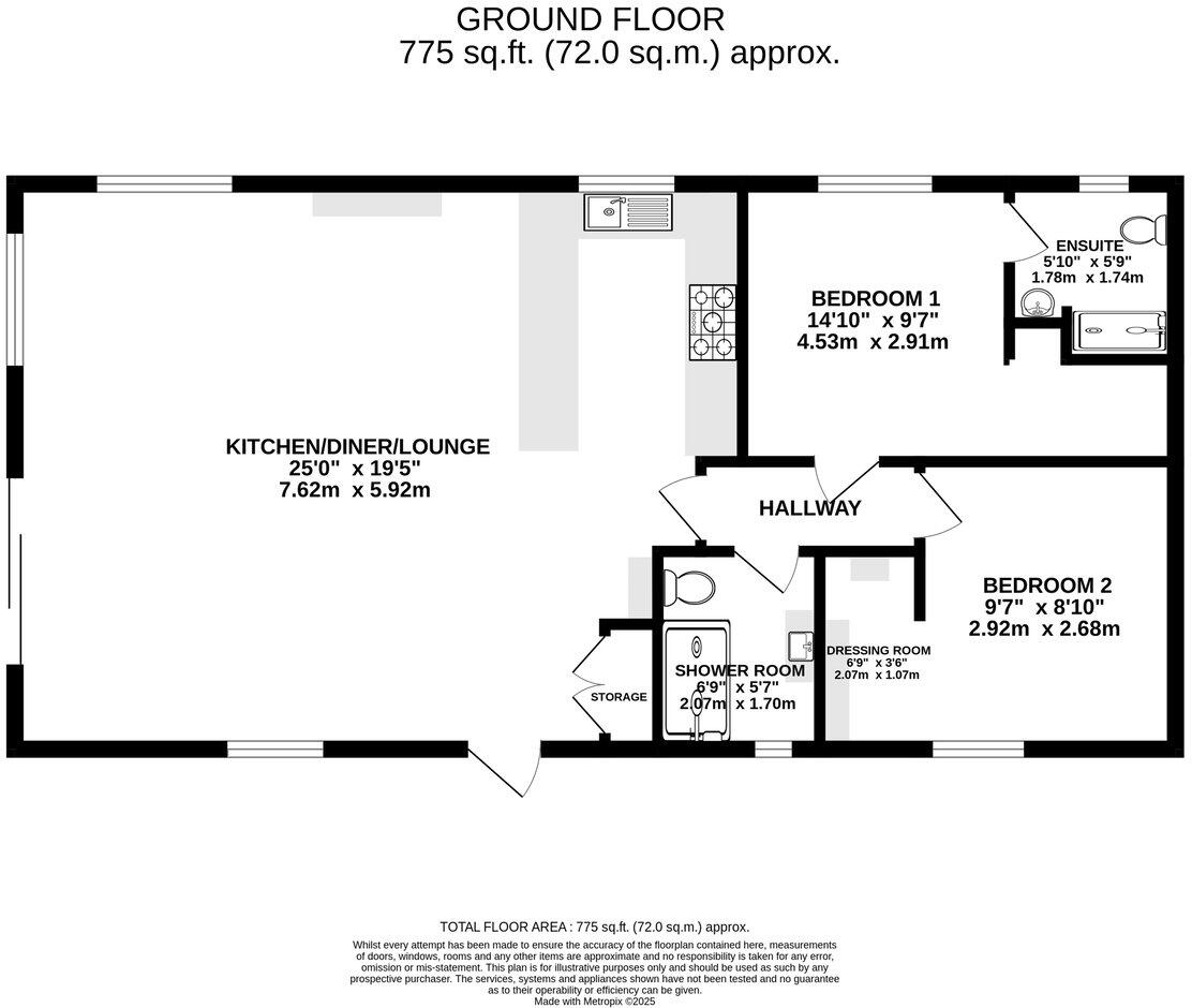
Set within Stonham Barns Park, this 2024-built 40ft x 20ft Willerby Boston lodge offers contemporary, low-maintenance living ideal for holiday lets or a second home. The open-plan living area with sliding patio doors creates a bright, social hub, while the fully fitted kitchen and modern shower rooms keep day-to-day running straightforward. The king-size primary bedroom includes fitted wardrobes and an en-suite; a twin bedroom provides flexible sleeping for guests or family.
At 775 sq ft overall and finished to a high standard, the lodge is sold fully furnished with freestanding furniture — ready to occupy or let immediately. Broadband speeds are fast and the location benefits from low local crime and rural village life close to Stowmarket, with good local schools and on-site amenities for residents and visitors.
Important practical points: the property is a commonhold lodge on a holiday park, not a conventional freehold house. Park membership, site rules and pitch or service charges are likely and should be confirmed before purchase. The accommodation is compact compared with a house and may suit buyers seeking a seasonal or secondary property rather than a permanent family home.
2 bedroom lodge for sale in Stonham Barns Park, Stonham Aspal, IP14 6AT, IP14 — £129,995 • 2 bed • 1 bath
2 bedroom lodge for sale in Pettaugh Road, Stonham Aspal, Stowmarket, IP14 — £89,995 • 2 bed • 2 bath • 435 ft²
2 bedroom lodge for sale in Stonham Barns Park, Pettaugh Lane, Stonham Aspal, IP14 — £139,995 • 2 bed • 2 bath • 800 ft²
2 bedroom lodge for sale in Pettaugh Road, Stonham Aspal, Stowmarket, IP14 — £139,995 • 2 bed • 2 bath • 744 ft²
2 bedroom lodge for sale in Pettaugh Road, Stonham Aspal, Stowmarket, IP14 — £69,995 • 2 bed • 2 bath • 490 ft²
2 bedroom lodge for sale in Stonham Barns Park, Stonham Aspal, IP14 6AT, IP14 — £59,995 • 2 bed • 1 bath










































































