Low-maintenance rural living with on-site amenities and upgrade options.
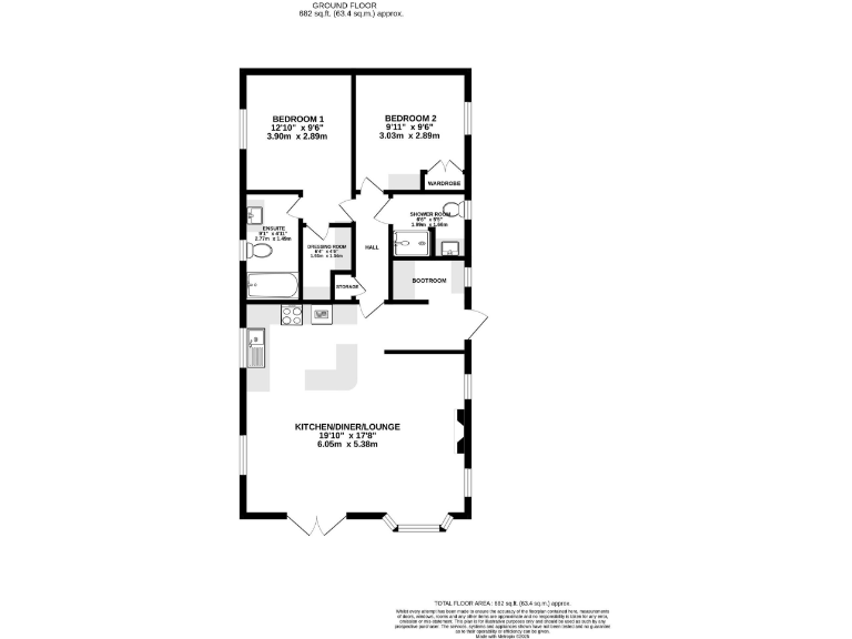
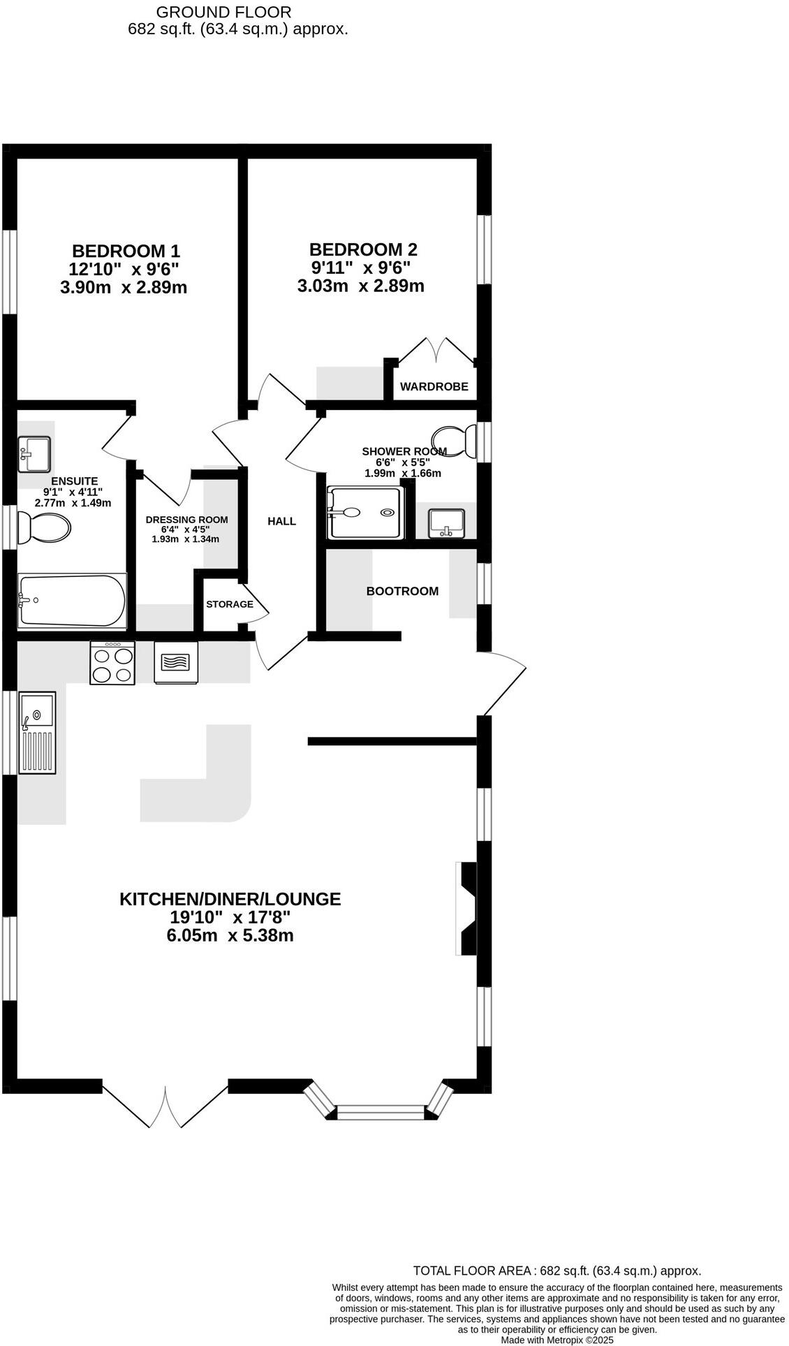
Two double bedrooms with principal en-suite and walk-in wardrobe
Finished as a contemporary 40ft x 20ft lodge, this two-double-bedroom home offers compact, low-maintenance living in a well-served rural setting. The open-plan kitchen/living area, electric stove-style fireplace and large picture windows make the interior feel bright and relaxed. The principal bedroom includes an en-suite and walk-in wardrobe; a second double bedroom, family shower room and a small study/boot area complete the layout. Off-street gravel parking and a very large communal plot provide outdoor space and countryside outlooks.
The lodge is sold as new with optional upgrades and decking available, so it suits buyers wanting a ready-to-use home with the ability to personalise. On-site amenities include shops, cafés and leisure activities, creating a low-hassle lifestyle for retirement, downsizing or holiday use. Broadband speeds are fast and local crime is low. Council tax is very cheap.
Important practical note: the property sits on a 12-year commonhold lease. Many mortgage lenders decline lending on such short leases, so purchase is likely restricted to cash buyers or those able to secure alternative finance. Buyers should factor lease length into long-term value and resale prospects.
Presented in good decorative order, the lodge’s compact footprint suits short-term or seasonal living as well as permanent downsizing, but the limited lease term is the principal constraint for anyone relying on a mortgage.
2 bedroom lodge for sale in Stonham Barns Park, Pettaugh Lane, Stonham Aspal, IP14 — £139,995 • 2 bed • 2 bath • 800 ft²
2 bedroom lodge for sale in Stonham Barns Park, Stonham Aspal, IP14 6AT, IP14 — £59,995 • 2 bed • 1 bath
2 bedroom lodge for sale in Pettaugh Road, Stonham Aspal, Stowmarket, IP14 — £129,995 • 2 bed • 2 bath • 800 ft²
2 bedroom park home for sale in Pettaugh Road, Stowmarket, IP14 — £75,000 • 2 bed • 2 bath
2 bedroom park home for sale in Pettaugh Road, Stonham Aspal, Stowmarket, IP14 — £149,995 • 2 bed • 1 bath
2 bedroom park home for sale in Pettaugh Road, Stonham Aspal, Stowmarket, IP14 — £59,995 • 2 bed • 1 bath














































































