Great starter home near rail links and local shops.
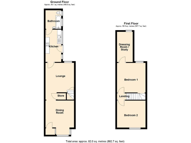
- Two double bedrooms plus dressing room/study/occasional third bedroom
- Separate lounge and dining rooms with bay window in dining room
- Fitted kitchen and ground-floor bathroom
- Walled foregarden and generous rear garden, small plot
- Freehold and boiler-fed gas central heating, double glazing
- Solid brick walls likely without insulation; retrofit costs possible
- Very high local crime and high area deprivation — factor accordingly
- Excellent transport links, fast broadband and nearby schools
A well-presented Victorian mid-terrace offered freehold with traditional layout and generous outdoor space. The ground floor has separate lounge and dining rooms, a fitted kitchen and a bathroom; upstairs are two double bedrooms plus a useful dressing room/study that could serve as a small third bedroom. Double glazing and gas central heating provide comfort and efficiency.
Outside, the property benefits from a walled foregarden and a generous rear garden — rare for this street — providing room for children, pets or low-maintenance planting. The house sits close to strong transport links by road and rail, fast broadband and a wide range of local amenities including shops and several well-rated schools.
Important considerations: the mid-terrace is of solid brick construction with no installed wall insulation (as built), and the surrounding area has very high recorded crime and marked deprivation. Buyers should factor potential retrofit costs for wall insulation and usual updating for a house of this age. Council tax is low and mobile signal is excellent, which will suit working buyers and those needing reliable connectivity.
2 bedroom end of terrace house for sale in Short Heath Road, Erdington, Birmingham, B23 — £230,000 • 2 bed • 1 bath • 926 ft²
2 bedroom terraced house for sale in Somerset Road, Birmingham, B23 6NJ, B23 — £210,000 • 2 bed • 1 bath • 829 ft²
2 bedroom terraced house for sale in Trafalgar Road, Birmingham, B24 9AP, B24 — £195,000 • 2 bed • 1 bath • 888 ft²
2 bedroom terraced house for sale in Philip Sidney Road, Sparkhill, Birmingham, B11 — £187,500 • 2 bed • 1 bath • 829 ft²
2 bedroom terraced house for sale in Edwards Road, Birmingham, West Midlands, B24 — £180,000 • 2 bed • 1 bath • 995 ft²
5 bedroom end of terrace house for sale in Newman Road, BIRMINGHAM, B24 — £315,000 • 5 bed • 2 bath • 1475 ft²






























































































