**Standout Features:**
- Central Southsea location with excellent transport links
- Two spacious bedrooms and modern bathroom
- Enclosed private rear garden, ideal for outdoor relaxation
- Off-street parking available
- Updated, ready-to-move-into condition with modern kitchen
**Potential Concerns:**
- Average-sized plot with small garden
- Mid-terrace layout typical of Victorian brickwork homes
- Main heating system has traditional boiler and radiator setup
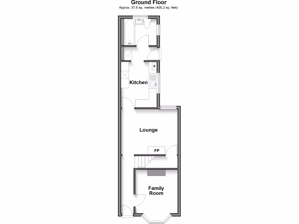
Welcome to this charming Victorian terraced house located in the heart of Southsea, perfect for first-time buyers or investors looking for a vibrant rental opportunity. With a modern kitchen and bathroom, this two-bedroom home combines traditional appeal with contemporary comforts. The bright, spacious rooms and an enclosed private garden provide a cozy retreat, while the bustling local amenities and superb transport links ensure convenience at your doorstep.
The well-maintained property boasts off-street parking and sits in a cosmopolitan neighborhood, highly rated for its community feel. Local schools receive good Ofsted ratings, making it an excellent choice for families. Though the outdoor space is on the smaller side, the potential for personalization shines through. Act quickly—properties in this desirable area are in high demand and won’t last long!
2 bedroom terraced house for sale in Londesborough Road, Southsea, Portsmouth, PO4 — £239,995 • 2 bed • 1 bath • 692 ft²
2 bedroom terraced house for sale in Boulton Road, Southsea, Hampshire, PO5 — £235,000 • 2 bed • 1 bath • 794 ft²
2 bedroom terraced house for sale in Lawson Road, Southsea, Hampshire, PO5 — £270,000 • 2 bed • 1 bath • 630 ft²
2 bedroom terraced house for sale in Esslemont Road, Southsea, Hampshire, PO4 — £225,000 • 2 bed • 1 bath • 689 ft²
2 bedroom terraced house for sale in Talbot Road, Southsea, PO4 — £235,000 • 2 bed • 1 bath • 649 ft²
3 bedroom terraced house for sale in Jubilee Road, Southsea, Hampshire, PO4 — £285,000 • 3 bed • 1 bath • 624 ft²






























































