Recently modernised two-bedroom home minutes from shops and the seafront.
- Recently modernised and freshly decorated throughout
- Sunny rear garden, private and low maintenance
- Two bedrooms with functional, compact room sizes
- Freehold mid-terrace built c.1930–1949
- Resident permit on-street parking only
- Cavity walls assumed uninsulated; energy upgrades possible
- Small plot and average overall internal floor area
- Convenient for shops, station, buses and the seafront
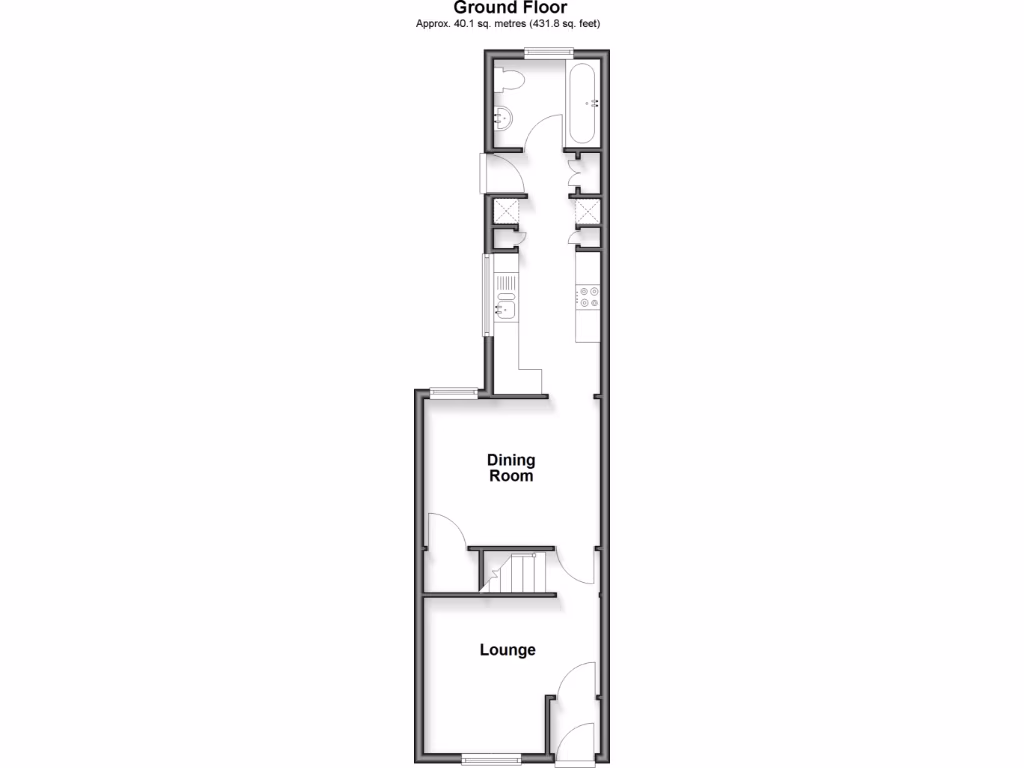
Bright, recently modernised and well presented throughout, this two-bedroom mid-terrace sits in central Southsea within easy reach of shops, buses, the train station and the seafront. The living rooms and kitchen provide a practical layout for first-time buyers, and the sunny rear garden offers a private outdoor spot for plants or a small seating area.
The property is freehold with gas central heating and double glazing. Room sizes are modest but functional, making this a manageable step onto the ladder. Resident permit on-street parking is available nearby for one or two cars.
Notable considerations: the plot is small and rooms are compact, so buyers wanting large gardens or very spacious accommodation should expect limits. The cavity walls are shown as uninsulated (assumed), which may present an energy-efficiency upgrade opportunity. Buyers should verify all details, measurements and consents independently.
Overall this newly refreshed terrace offers practical, low-maintenance city living close to good schools, local amenities and transport links—well suited to first-time buyers seeking a straightforward move-in-ready home with potential to personalise over time.
2 bedroom terraced house for sale in Esslemont Road, Southsea, PO4 — £225,000 • 2 bed • 1 bath • 689 ft²
2 bedroom terraced house for sale in Lawson Road, Southsea, Hampshire, PO5 — £270,000 • 2 bed • 1 bath • 630 ft²
2 bedroom terraced house for sale in Talbot Road, Southsea, PO4 — £235,000 • 2 bed • 1 bath • 649 ft²
2 bedroom terraced house for sale in Sutherland Road, Southsea, Hampshire, PO4 — £240,000 • 2 bed • 1 bath • 555 ft²
2 bedroom terraced house for sale in Reginald Road, Southsea, PO4 — £220,000 • 2 bed • 1 bath • 808 ft²
2 bedroom terraced house for sale in Sutherland Road, Southsea, PO4 — £250,000 • 2 bed • 1 bath • 646 ft²










































































































