Large four-bedroom freehold near shops and top schools with private parking and walled garden.
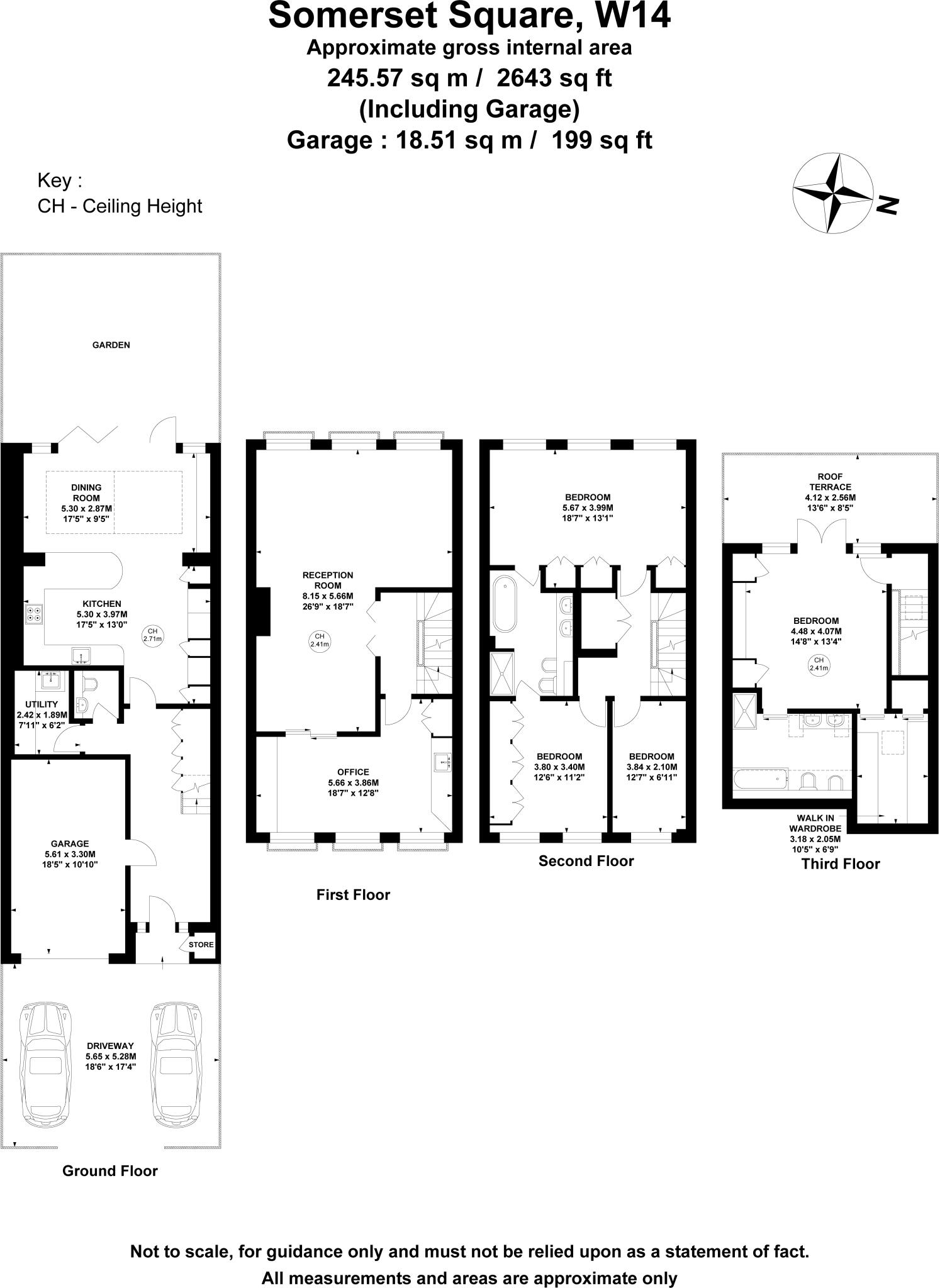
Freehold mid-terrace townhouse, approx. 2,643 sq ft
Four bedrooms including large master suite
Off-street parking plus integral single garage
Private walled garden, low-maintenance patio
Newly renovated interior, contemporary finishes throughout
Air conditioning and excellent natural light
Cavity walls assumed uninsulated; glazing install date unknown
Very expensive council tax; small plot for central London
A substantial four-bedroom freehold arranged over multiple levels, this large townhouse (approx. 2,643 sq ft) sits within a gated square close to Kensington High Street and Holland Park. The house has been newly renovated with contemporary finishes, engineered wood floors, strong natural light and air conditioning throughout. Principal reception and dining rooms on the first floor create elegant entertaining space while a superb master suite provides private family accommodation.Off-street parking, an integral single garage and a walled, low-maintenance garden are rare central-London advantages that suit a busy household. The setting in a private square delivers quiet, leafy street views and very low local crime, while excellent mobile and fast broadband suit home working and streaming.Child-friendly amenities and highly regarded primary and independent schools are within easy reach, making this a practical choice for families seeking space and convenience close to central amenities. The property’s size and layout also support multi-generational living or a home office without compromising reception space.This home is undergoing refurbishment, so buyers should expect final finishes and snagging to complete. Notable practical points: the building record lists cavity walls with assumed no built-in insulation and the double glazing install date is unknown. Council tax in this postcode is very expensive for prospective owners. Overall, the house offers rare scale, parking and garden for W14, balanced by typical central-London constraints on plot size and running costs.
4 bedroom house for sale in Somerset Square, West Kensington, W14 — £4,950,000 • 4 bed • 3 bath • 1878 ft²
4 bedroom terraced house for sale in Somerset Square, London, W14 — £4,950,000 • 4 bed • 3 bath • 2673 ft²
4 bedroom terraced house for sale in Abbotsbury Road, London, W14 — £2,900,000 • 4 bed • 2 bath • 1834 ft²
4 bedroom terraced house for sale in Earls Court Road, Kensington, W8 — £3,500,000 • 4 bed • 4 bath • 2125 ft²
4 bedroom terraced house for sale in Phillimore Gardens, London, W8 — £4,750,000 • 4 bed • 4 bath • 2568 ft²
5 bedroom terraced house for sale in South End Row,
South Kensington, W8 — £4,000,000 • 5 bed • 3 bath • 2528 ft²














































