**Standout Features:**
- Spectacular sea views
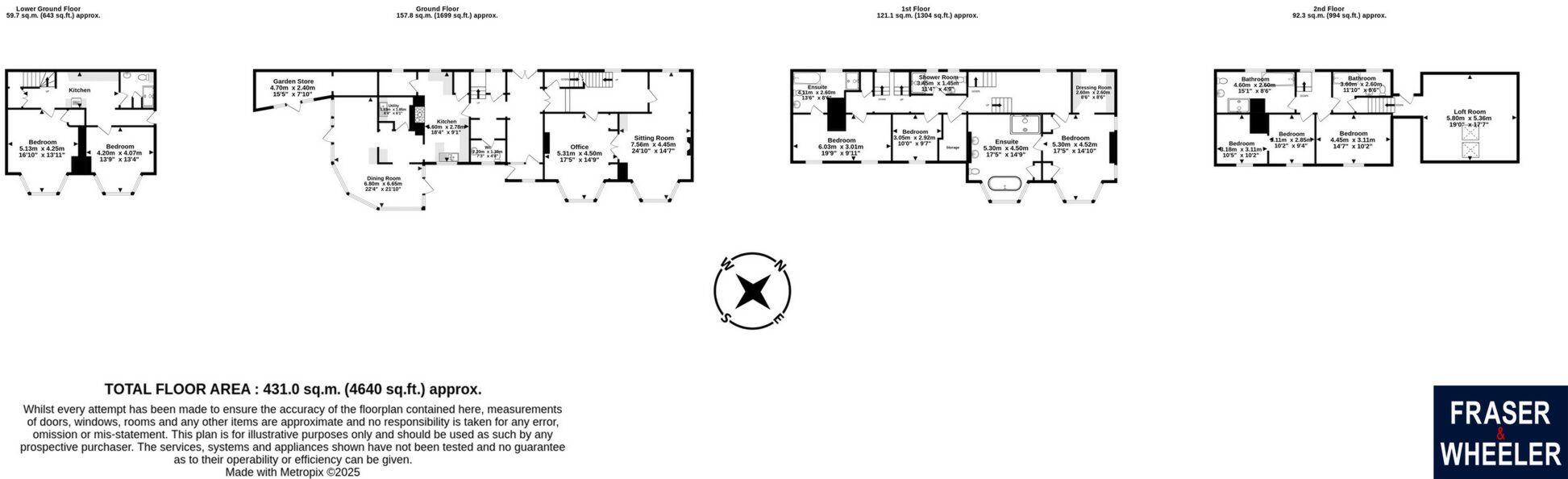
- Generous living space with 7 bedrooms and 6 bathrooms
- Potential for a self-contained annexe
- Off-street parking
- Modern kitchen and bathrooms
- Freehold tenure
- Prime location just off the town center
This stunning detached Victorian residence presents a unique lifestyle opportunity with breathtaking sea views and flexible living arrangements, ideal for families or multi-generational households. Spanning approximately 4,640 square feet, this property boasts large reception rooms, a spacious open-plan kitchen, and a dining area perfect for entertaining. The main house includes five to six bedrooms, along with five well-appointed bathrooms.
Capture the coastal charm and modern comforts, with the additional feature of a potential self-contained annexe, currently configured with 2 bedrooms and a shower room—an excellent asset for guest accommodation or rental income. Set in a desirable conservation area, this home combines elegance and utility while offering considerable renovation potential and plentiful outdoor space.
While it boasts remarkable attributes, prospective buyers should be mindful of the above-average crime rate in the area and the considerable council tax band G. With the ability to create a private retreat right off the town center, this property is a rare find. Early viewings are highly encouraged to seize this coastal gem before it’s gone!
4 bedroom detached house for sale in Strand Hill, Dawlish, EX7 — £550,000 • 4 bed • 2 bath • 2021 ft²
3 bedroom detached house for sale in Meldrum Close, Dawlish, EX7 — £450,000 • 3 bed • 3 bath • 1516 ft²
3 bedroom detached house for sale in East Cliff Road, Dawlish, EX7 — £550,000 • 3 bed • 2 bath • 1405 ft²
6 bedroom terraced house for sale in Sea Hill, Seaton, EX12 — £500,000 • 6 bed • 4 bath • 2025 ft²
3 bedroom flat for sale in Mayflower Close, EX7 — £299,950 • 3 bed • 2 bath • 1473 ft²
4 bedroom terraced house for sale in Victoria Road, Exmouth, EX8 1DW, EX8 — £437,500 • 4 bed • 1 bath • 1443 ft²






















































































































