Large renovated family house with south-facing garden and sweeping coastal views.
Four double bedrooms with generous room sizes and flexible layouts
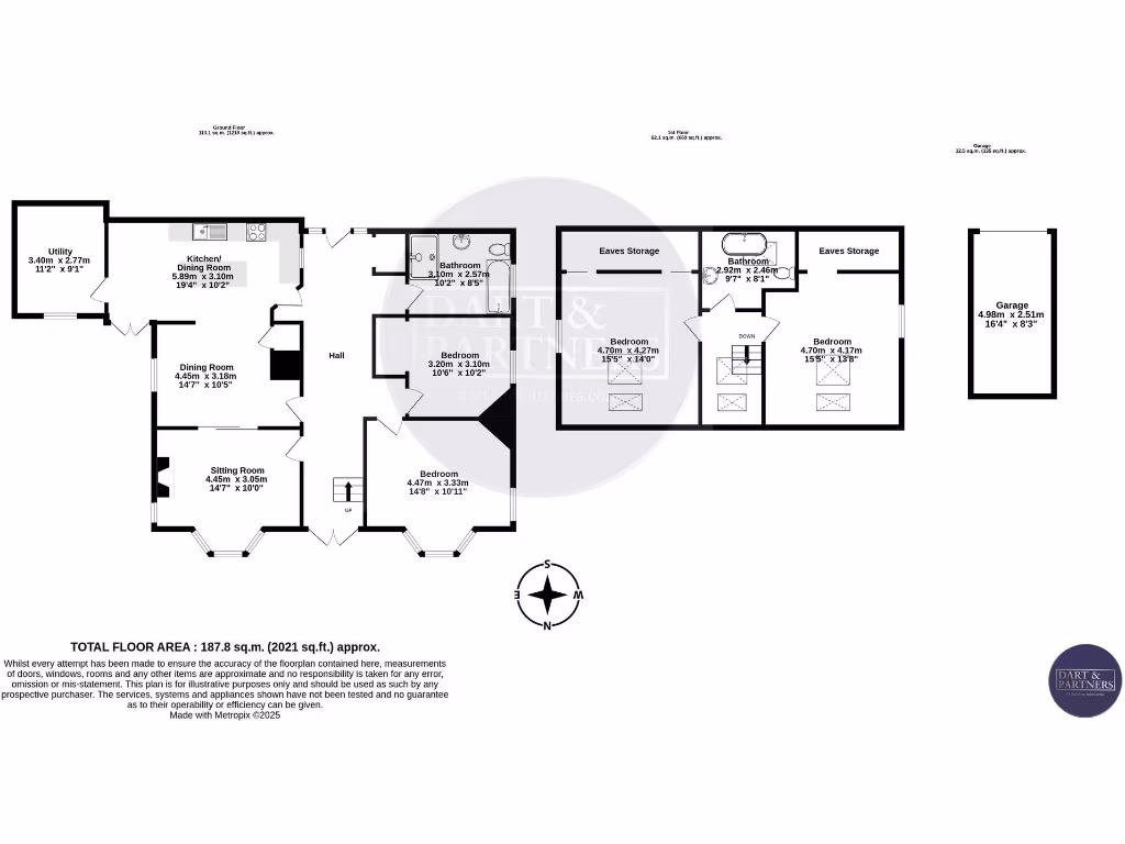
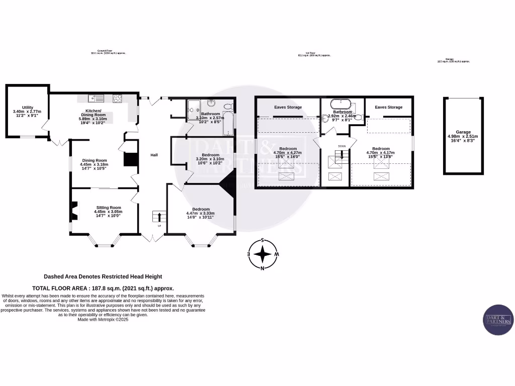
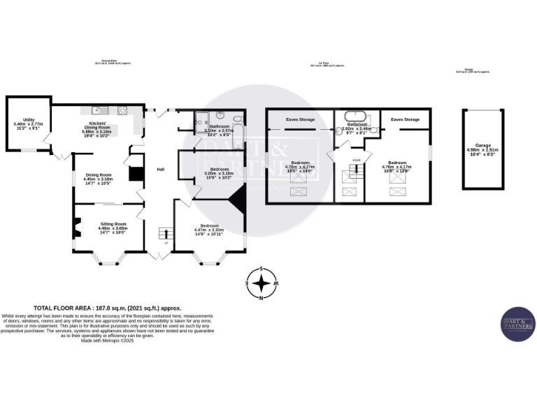
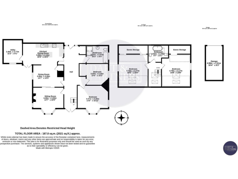
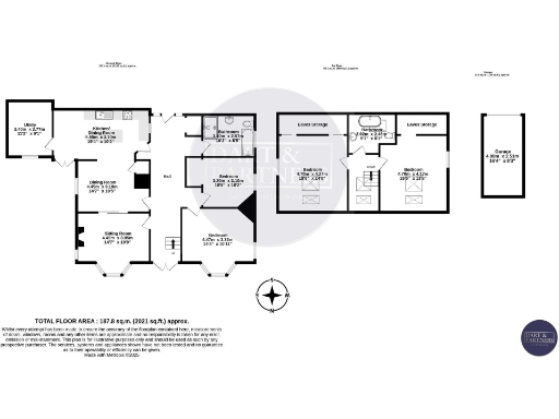
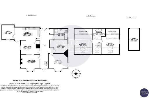
Set on Strand Hill with wide sea, coastal and countryside views, Kingholme is a substantial four-bedroom detached family home recently modernised for contemporary living. The layout includes a large kitchen/breakfast room with integrated appliances, spacious sitting and dining rooms, two bathrooms and generous bedroom space across two floors. Outside offers a south-facing garden, raised decking, paved patio, off-street parking for two and a garage.
The property has been significantly improved with modern kitchen fittings, upgraded bathrooms, uPVC double glazing and gas central heating. There is sensible scope to add value: an inaccessible void beside the utility room could be developed into additional living space, and the property benefits from generous loft/under-eaves storage and flexible room arrangements. Practical features include a utility room, pantry and an attached garage with power and light.
Buyers should note a few material considerations. The cavity walls are recorded as built without insulation (assumed) and the double glazing install date is unknown, so further thermal improvements may be needed. The EPC rating is D. The local area shows higher-than-average crime statistics and wider area deprivation indicators, which may concern some purchasers. Schooling options and local amenities are within easy reach, and the railway station and beaches are close by.
This home will suit families who value room, coastal views and immediate move-in condition but who are also open to modest further energy upgrades or converting the adjacent void to expand accommodation. The combination of panoramic outlooks and private outside space creates a comfortable, versatile family house with clear potential to personalise and add value.
3 bedroom detached house for sale in East Cliff Road, Dawlish, EX7 — £550,000 • 3 bed • 2 bath • 1405 ft²
4 bedroom detached house for sale in East Cliff Close, Dawlish, Devon, EX7 — £500,000 • 4 bed • 2 bath • 1826 ft²
7 bedroom detached house for sale in West Cliff, Dawlish, EX7 — £799,950 • 7 bed • 6 bath • 4640 ft²
4 bedroom detached house for sale in Thompson Close, Dawlish, EX7 — £387,950 • 4 bed • 2 bath • 1181 ft²
5 bedroom house for sale in Windward Lane, Dawlish, EX7 — £675,000 • 5 bed • 4 bath • 2756 ft²
4 bedroom detached house for sale in Woodland Avenue, Teignmouth, TQ14 — £595,000 • 4 bed • 2 bath • 1459 ft²






















































































