Large freehold plot with consent for nine contemporary apartments by the canal.
Full planning permission for nine apartments (Ref: A/24/97754/FULL)
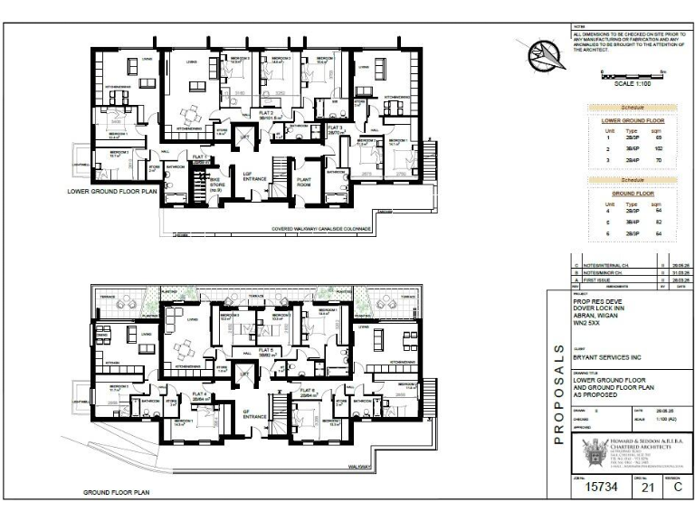
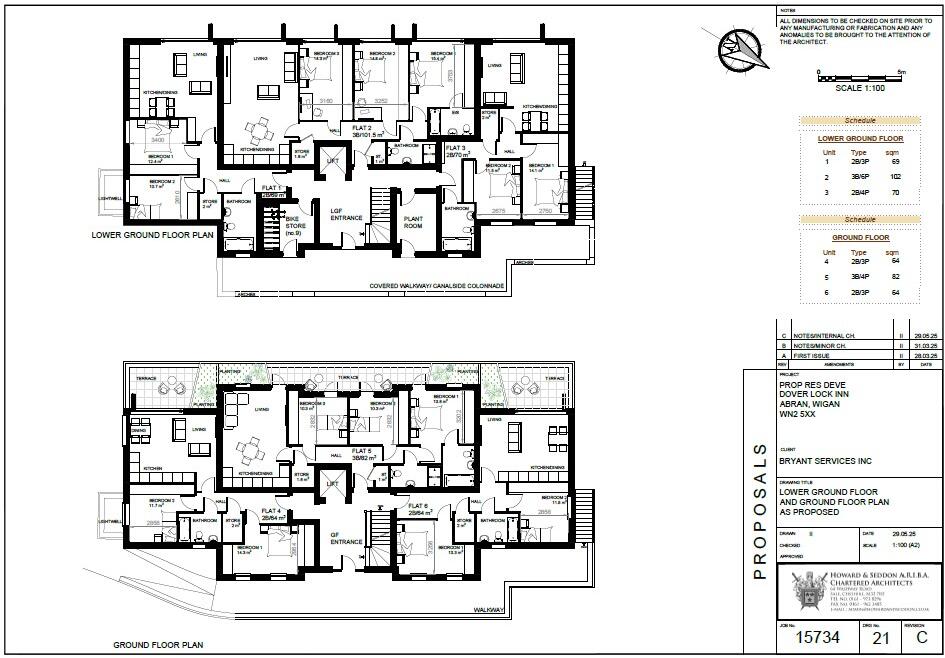
A cleared development site with full planning permission (Ref: A/24/97754/FULL, granted 29 August 2025) for nine contemporary apartments arranged alongside the Leeds–Liverpool Canal. The consent covers demolition of the former Dover Lock Inn and delivery of a multi-storey block with parking, landscaping and improved access — a ready-to-build permission that reduces planning risk for a developer or investor.
The plot is notably large and canal-side, offering communal lawn/terrace areas and good daylighting in the proposed design. CGI and drawings show a contemporary, gabled-roof scheme with large windows, terraces and communal entrance — suited to a small apartment-led scheme of one- to three-bedroom homes.
Buyers should note the site contains a derelict former industrial/public house structure requiring demolition and remediation; there is visible roof damage and overgrown areas that will need clearance. The surrounding area is classified as very deprived, which may affect sales values and tenanted demand, but the site benefits from very low crime, fast broadband, no flood risk and proximity to local schools and bus services.
This opportunity suits a developer or investor capable of delivering or overseeing construction and landscaping. The awarded full permission, prominent canal-side position and substantial plot reduce some upfront planning uncertainty, while the background condition of the existing buildings will require capital for demolition, site preparation and build-out.
Land for sale in Land Behind The Rose Inn, Hood Lane, Warrington, WA5 1EJ, WA5 — £350,000 • 1 bed • 1 bath • 6467 ft²
Land for sale in Mill Lane, Appley Bridge, WN6 — £95,000 • 1 bed • 1 bath
Land for sale in Land At Durants Cottage, Melling Lane, Merseyside, Maghull, Merseyside, L31 — £750,000 • 1 bed • 1 bath • 1464 ft²
Land for sale in The Centurion, Higher Croft Road, Darwen, Lancashire, BB3 — £500,000 • 1 bed • 1 bath
Residential development for sale in 394-412 Knutsford Road, Warrington, WA4 — £499,900 • 1 bed • 1 bath
Land for sale in Land At Hole House Farm, Chorley Road, Adlington, Chorley, Lancashire, PR6 9LP, PR6 — £800,000 • 1 bed • 1 bath






































































