Compact, modern home close to Walthamstow Central and Blackhorse Road.
Newly renovated two-bedroom first-floor Victorian conversion
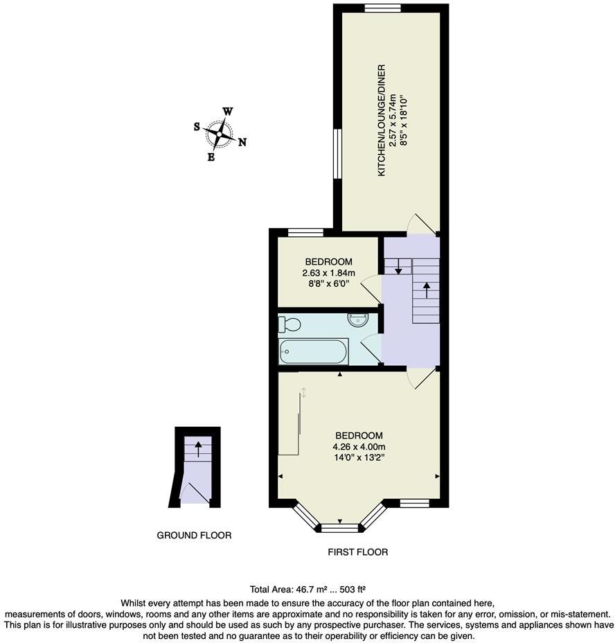
A bright, newly renovated two-bedroom first-floor flat in a Victorian conversion, ready to move into. The open-plan kitchen/living space is contemporary and sociable, with modern finishes, double-glazed windows and neat bathroom fittings. Two well-presented bedrooms include a bay-windowed principal room with custom storage.
Location is a core selling point: easy walking distance to Walthamstow Central and Blackhorse Road, fast links into central London, and an excellent local scene of cafés, shops and Lloyd Park. Practical extras include boarded loft storage with potential to convert (subject to planning) and low council tax costs.
Buyers should note a few material facts: the property is leasehold with 114 years remaining and a small ground rent of £100. Heating is by electric storage heaters and walls are original solid brick (no known cavity insulation). The flat is compact at about 503 sq ft and has no private rear garden, so outdoor space is limited.
This home will suit a first-time buyer seeking a well-located, low-maintenance starter home or an investor looking for a lettable, central E17 asset. The clean presentation reduces immediate work required, while the loft conversion potential offers straightforward value-add for the future.
2 bedroom flat for sale in Shrubland Road, Walthamstow, E17 — £525,000 • 2 bed • 2 bath • 807 ft²
2 bedroom flat for sale in Westbury Road, Walthamstow, London, E17 — £475,000 • 2 bed • 1 bath • 575 ft²
2 bedroom flat for sale in Glenthorne Road, Walthamstow, London, E17 — £480,000 • 2 bed • 1 bath • 726 ft²
2 bedroom terraced house for sale in Pasquier Road, Walthamstow, E17 — £650,000 • 2 bed • 1 bath • 883 ft²
5 bedroom house for sale in For Sales Borwick Avenue, Walthamstow, E17 — £800,000 • 5 bed • 2 bath • 1346 ft²
2 bedroom flat for sale in Chingford Road, Walthamstow, London, E17 — £350,000 • 2 bed • 1 bath • 570 ft²














































