Spacious open-plan living with garden and excellent transport links..
Double reception room with solid oak parquet flooring
Open-plan kitchen/dining/family room with rooflights and bi-fold doors
Four double bedrooms and three bathrooms, including en suite
Freehold property offered with no onward chain
Small-to-average private rear garden, low-maintenance only
EPC Band D — potential for energy-efficiency improvements
Council Tax Band F — higher annual local tax costs
Victorian solid brick walls; likely need insulation upgrades
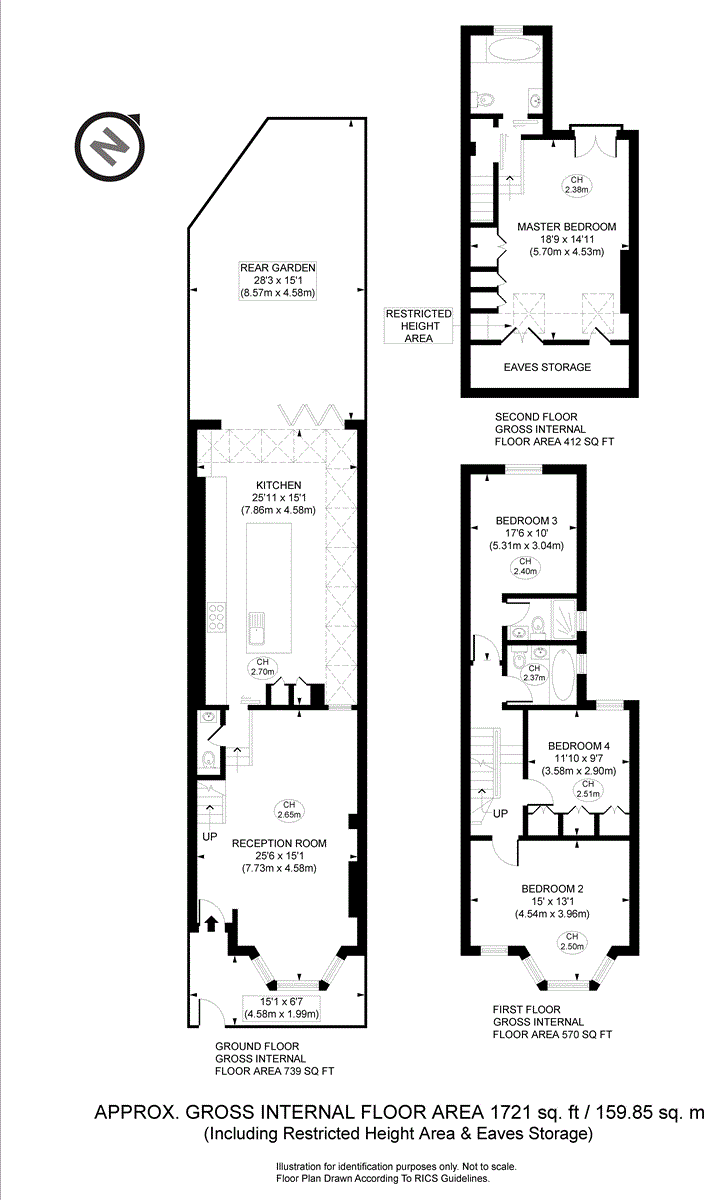
Set within the Crabtree Conservation Area, this mid‑Victorian terraced house offers 1,721 sq ft of well‑balanced family accommodation over three floors. The ground floor includes a double reception with solid oak parquet and a contemporary open‑plan kitchen/dining/family extension with rooflights and bi‑fold doors opening onto a private rear garden — ideal for day‑to‑day family life and entertaining.
The layout provides four double bedrooms, three bathrooms (one en suite) and a guest WC, with fitted storage to some rooms and a generous principal suite occupying the top floor. Practical benefits include freehold tenure and vacant possession (no onward chain), excellent mobile and broadband connectivity, and straightforward access to Hammersmith underground and riverside amenities.
Buyers should note a few material points: the property has an EPC rating of D and borough Council Tax Band F (2025/26), which indicates higher running costs. The mid‑terrace Victorian walls are solid brick and assumed to lack modern cavity insulation — upgrading insulation and improving the rating may be advisable. The rear garden is small-to-average, suited to low‑maintenance living rather than extensive landscaping.
This house suits a buyer seeking a well‑executed family home in a highly regarded Fulham pocket, with good schools nearby and immediate access to restaurants, cultural venues and transport. Early viewing is recommended to appreciate the space and finish in person.
4 bedroom terraced house for sale in Crabtree Lane, Fulham, SW6 — £1,700,000 • 4 bed • 4 bath • 1711 ft²
4 bedroom house for sale in Ellaline Road, Hammersmith, London, W6 — £1,595,000 • 4 bed • 3 bath • 1850 ft²
3 bedroom maisonette for sale in Crabtree Lane, Fulham, London, SW6 — £850,000 • 3 bed • 2 bath • 1170 ft²
4 bedroom house for sale in Holyport Road, Fulham, SW6 — £1,275,000 • 4 bed • 3 bath • 1508 ft²
4 bedroom house for sale in Crabtree Lane, Crabtree Estate, London, SW6 — £1,700,000 • 4 bed • 4 bath • 1632 ft²
5 bedroom house for sale in Ellaline Road, Hammersmith, London, W6 — £1,525,000 • 5 bed • 2 bath • 1491 ft²






















































