Spacious riverside living with modern kitchen and private landscaped garden.
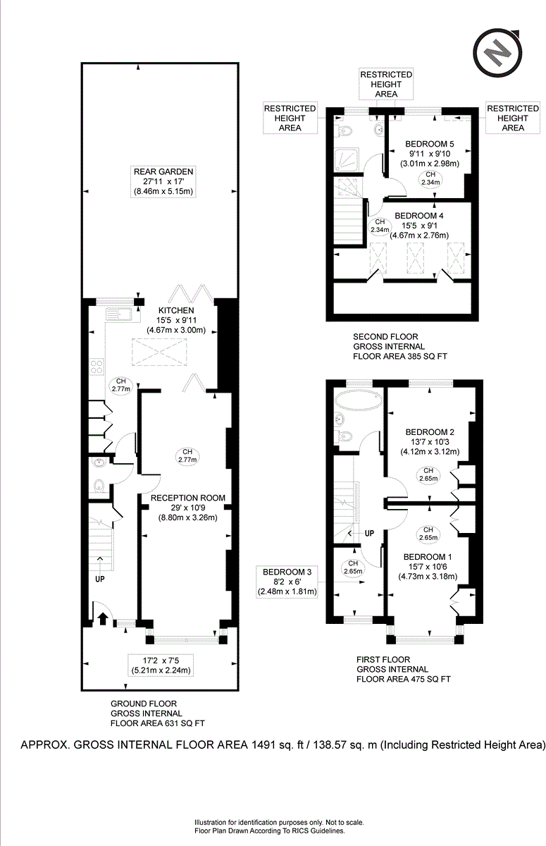
Five bedrooms across three floors, flexible family layout
This attractive five-bedroom period home sits in the sought-after Crabtree Conservation Area, a short walk from the Thames towpath and both Hammersmith and Barons Court stations. The ground floor offers a bay-fronted double reception with original features and a stylish kitchen/breakfast room with an atrium roof and bi-fold doors that open onto a well-landscaped rear garden — ideal for family life and entertaining.
The upper floors provide flexible sleeping accommodation: three bedrooms and a luxurious bathroom on the first floor, with two further bedrooms and a shower room on the top floor. The house benefits from good built-in storage, high ceilings and sympathetic period details retained alongside contemporary fittings, creating a practical yet characterful family home.
Practical considerations are clear and factual: the property is a mid-terrace on a relatively small plot, the walls are original solid brick (insulation not evident), and the EPC is band D. Council Tax sits in Band F, which reflects the area's premium location. These elements are balanced by excellent transport links, nearby schools and a wide range of shops, restaurants and cultural amenities close to hand.
This home will particularly suit families seeking space, period charm and a riverside lifestyle close to central transport routes. It also offers scope for buyers who want to explore energy improvements or personalised updating in parts of the fabric, while enjoying a ready-to-live-in finish throughout much of the house.
4 bedroom house for sale in Ellaline Road, Hammersmith, London, W6 — £1,595,000 • 4 bed • 3 bath • 1850 ft²
5 bedroom terraced house for sale in Chancellors Road, Bishops Park, W6 — £1,525,000 • 5 bed • 2 bath • 1581 ft²
4 bedroom end of terrace house for sale in Rannoch Road, Hammersmith, London, W6 — £1,350,000 • 4 bed • 2 bath • 1838 ft²
5 bedroom terraced house for sale in Larnach Road, Hammersmith, London, W6 — £1,300,000 • 5 bed • 2 bath • 1507 ft²
2 bedroom apartment for sale in Rainville Road, Hammersmith, London, W6 — £575,000 • 2 bed • 1 bath • 806 ft²
5 bedroom terraced house for sale in Skelwith Road, London, W6 — £1,250,000 • 5 bed • 2 bath • 1464 ft²


































































