Two-bedroom city-centre terrace with garden — ideal for first-time buyers or investors..
Freehold Victorian mid-terrace with rear garden
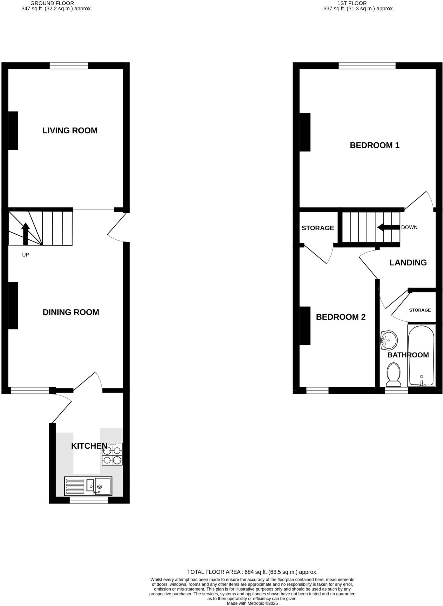
Two double bedrooms and two reception rooms, sizeable rooms
684 sq ft total; average-sized plot and rooms
EPC rating D — scope to improve energy efficiency
On-street parking only; no off-street parking
Local area: deprived classification and very high crime
Dated interior elements; benefits from modernisation
Close walking distance to Derby city centre and amenities
This two-bedroom mid-terraced Victorian house on Ward Street offers straightforward, affordable city-centre living with sizeable rooms across two floors. The property is freehold, averages 684 sq ft and presents good natural room proportions with original features such as chimney breasts and some built-in storage. A rear garden and easy on-street parking add practical outdoor space and convenience for daily life.
The house suits a first-time buyer looking for an entry-level home close to Derby city centre or an investor seeking a rental in a largely private-renting neighbourhood. The accommodation includes two reception rooms, a fitted kitchen with integral oven and gas hob, two double bedrooms and a fitted bathroom. EPC rated D and in standard construction, the home is useable now but offers scope for modernising finishes and systems to add value.
Buyers should note clear negatives: the local area is classified as deprived with very high local crime levels, and the plot is small. On-street parking only; no off-street parking. The interior shows dated elements and will benefit from updating to meet modern standards and improve energy performance. Prospective purchasers should verify services, appliances and heating arrangements independently.
Priced at £140,000, this property is a pragmatic purchase for those prioritising proximity to the city centre, good local schools and fast broadband, while accepting higher area crime statistics and modest outdoor space. It presents a reasonably priced house with immediate use and practical potential for incremental improvement.
2 bedroom terraced house for sale in Campion Street, Derby, DE22 — £130,000 • 2 bed • 1 bath • 777 ft²
3 bedroom terraced house for sale in Peach Street, Derby, DE22 — £150,000 • 3 bed • 1 bath • 781 ft²
2 bedroom terraced house for sale in Etwall Street, Derby, DE22 — £175,000 • 2 bed • 1 bath • 628 ft²
2 bedroom terraced house for sale in South Street, Derby, DE1 — £150,000 • 2 bed • 1 bath • 679 ft²
2 bedroom terraced house for sale in Windmill Hill Lane, Derby, Derbyshire, DE22 — £170,000 • 2 bed • 1 bath • 794 ft²
2 bedroom terraced house for sale in Stockbrook Road, Derby, DE22 — £155,000 • 2 bed • 1 bath • 610 ft²


































