Design and build a substantial family home in a peaceful Chilterns setting.
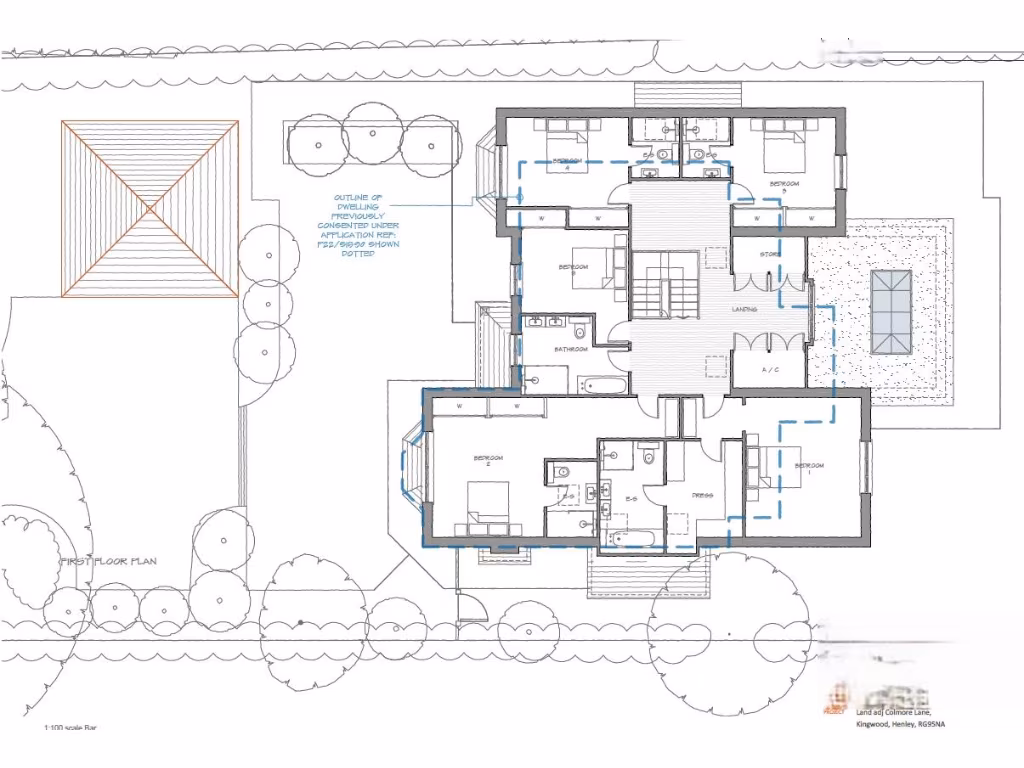
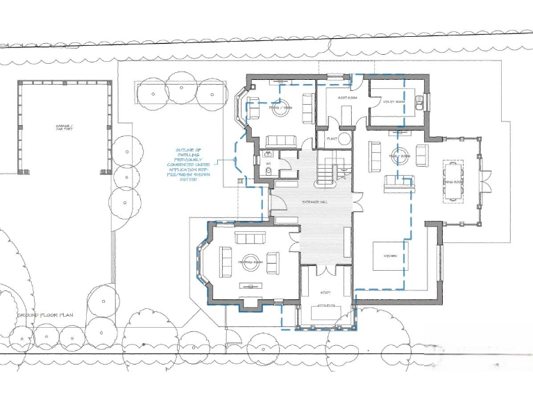
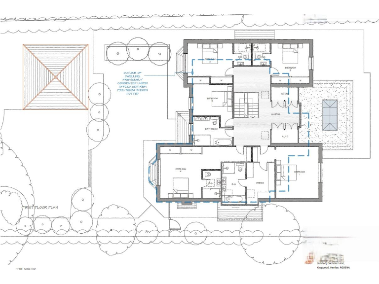
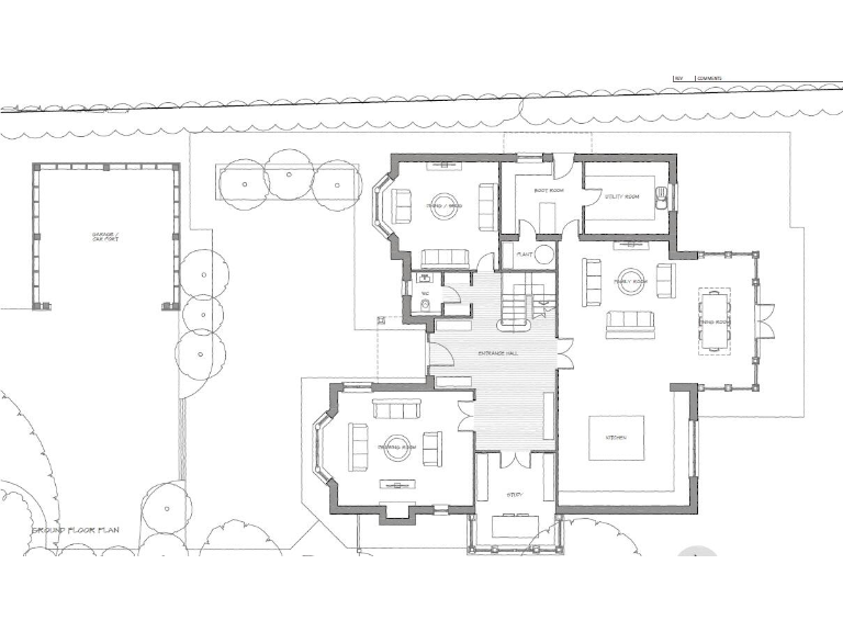
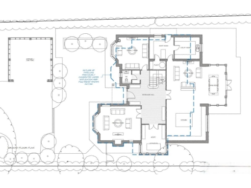
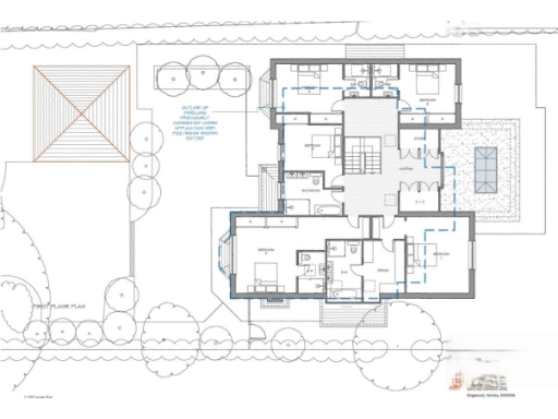
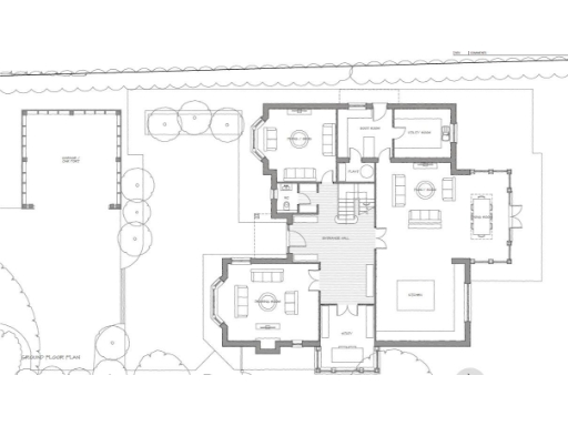
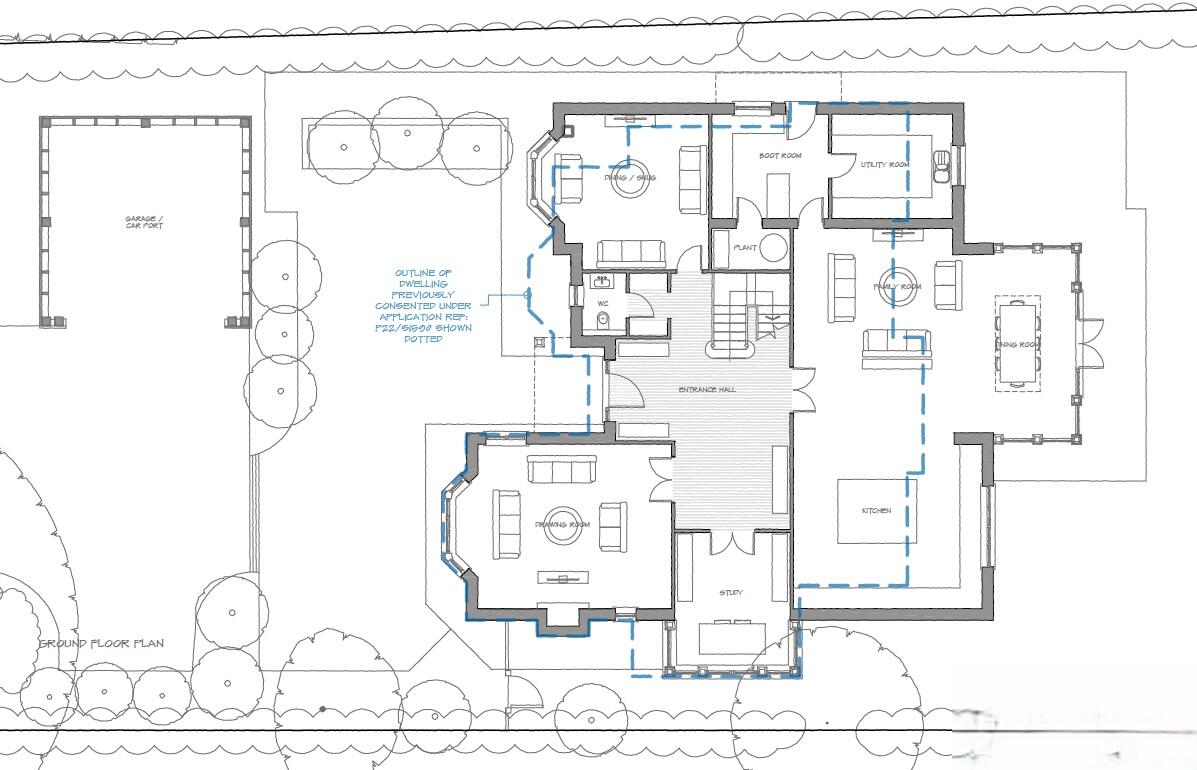
Planning permission granted (ref P24/S1830) for c.5,000 sq ft family home
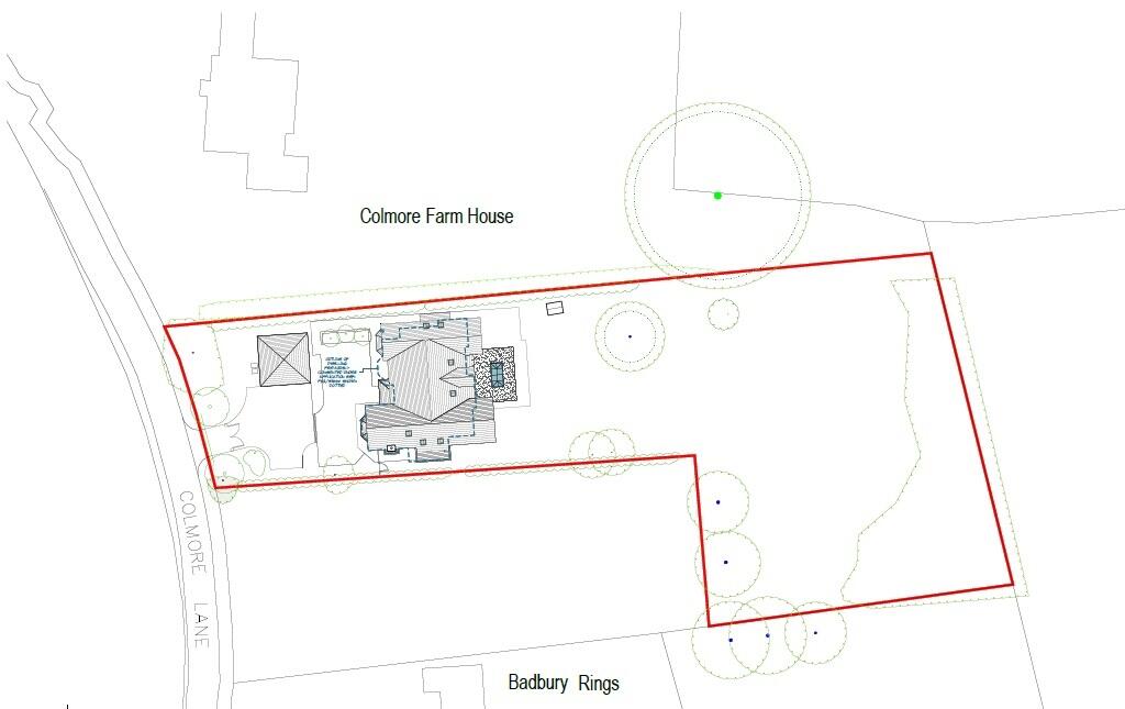
Set on an unspoilt 0.74-acre meadow in the Chilterns AONB, this freehold plot has full planning permission (ref P24/S1830) for a substantial 5,000 sq ft family home with a detached double garage. Mains water and electricity are newly connected, and the site sits quietly on a no-through lane with excellent mobile signal and fast broadband — ideal for family life and remote working.
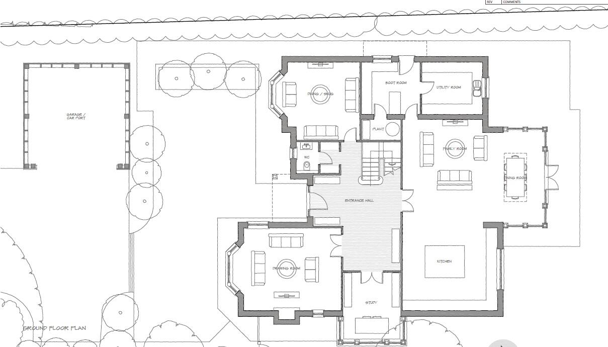
The proposed layout offers generous family living: three ground-floor reception rooms, a large open-plan kitchen/family/dining area, utility and boot room, plus five first-floor double bedrooms including an ensuite principal suite. There is scope to finish interiors to a high specification and create extensive gardens and parking to suit family needs.
Buyers should note there is no mains drainage or gas on site, and SDLT on this plot is £64,500. The permission is for a new-build dwelling, VAT zero-rated for new build purposes. With Henley town centre roughly five miles away and good local schools, the plot balances rural privacy with accessible amenities.
This is a strong opportunity for a family aiming to commission a sizeable, contemporary home in an affluent, low-crime area. The cleared meadow and services already in place reduce groundwork lead-time, but purchasers must factor in connection arrangements for drainage and final build costs.
Land for sale in Harcourt Close, Henley-on-Thames, Oxfordshire, RG9 — £625,000 • 1 bed • 1 bath • 4900 ft²
5 bedroom detached house for sale in Park Wall Lane, Lower Basildon, Reading, Berkshire, RG8 — £1,500,000 • 5 bed • 3 bath • 2454 ft²
5 bedroom detached house for sale in Chalkhouse Green Lane, Chalkhouse Green, Reading, Berkshire, RG4 — £1,000,000 • 5 bed • 3 bath • 2085 ft²
Equestrian facility for sale in Watersplash Lane, Warfield, Bracknell, Berkshire, RG42 — £1,500,000 • 4 bed • 3 bath • 2500 ft²
Land for sale in Custom Build - Plot Six, Oxford Meadow, Standlake, OX29 — £400,000 • 1 bed • 1 bath • 4067 ft²
5 bedroom detached house for sale in Catslip, Nettlebed, Henley-on-Thames, Oxfordshire, RG9 — £3,500,000 • 5 bed • 2 bath • 21000 ft²






























































































































































































