Rare freehold double-plot with consent for two 4-bed townhouses in elevated Henley location.
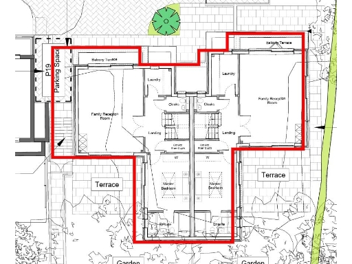
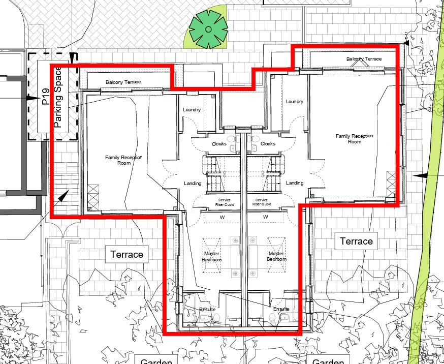
Planning granted for two 4-bed townhouses (each c.2,450 sqft)
Freehold 0.15 acre plot; elevated position with valley views
Gated access and off-street parking (two spaces per dwelling)
Private terraces, gardens and mature tree screening to rear
Development must commence by 11 August 2026 (condition)
CIL liability of £182,854.65 payable by purchaser
Site largely cleared — construction and landscaping required
Fast broadband and excellent mobile signal; no flood risk
A rare development plot in Henley-on-Thames with granted permission for two spacious four-bedroom townhouses, each approx. 2,450 sqft. The site sits at the end of a quiet no-through road in an elevated position, offering valley views, mature tree screening and convenient gated access with off-street parking.
This freehold 0.15-acre site is well-located for family amenities and transport: within a mile of Henley town centre, good primary and secondary schools nearby, fast broadband and excellent mobile signal. The scheme’s layout delivers generous family accommodation, private terraces and garden areas—appealing to owner-occupiers or premium rental markets.
Important practical points: planning permission (P23/50581/FUL) is granted but development must commence by 11 August 2026. There is a confirmed CIL liability of £182,854.65. The plot is largely cleared but buyers should allow for full construction costs, statutory fees and landscaping works.
Overall this is a straightforward plot-and-permission buy for a developer or investor seeking two high-spec townhouses in a very affluent Henley location. The combination of size, layout and setting represents clear value, provided the purchaser is prepared for the CIL cost and the build programme required to meet the commencement deadline.
Land for sale in Colmore Lane, Kingwood, Henley-on-Thames, RG9 — £1,500,000 • 1 bed • 1 bath • 5000 ft²
4 bedroom detached house for sale in Harcourt Close, Henley-on-Thames, Oxfordshire, RG9 — £800,000 • 4 bed • 2 bath • 1646 ft²
Land for sale in Gloucester Road, Reading, Berkshire, RG30 — £450,000 • 1 bed • 1 bath • 755 ft²
5 bedroom detached house for sale in Park Wall Lane, Lower Basildon, Reading, Berkshire, RG8 — £1,500,000 • 5 bed • 3 bath • 2454 ft²
2 bedroom terraced house for sale in Park Road, Henley-On-Thames, Oxfordshire, RG9 — £500,000 • 2 bed • 1 bath • 682 ft²
6 bedroom detached house for sale in Deanfield Avenue, Henley-on-Thames, RG9 — £2,250,000 • 6 bed • 4 bath • 3478 ft²






























































