Elevated parcel with outline consent, close to town amenities and excellent views.
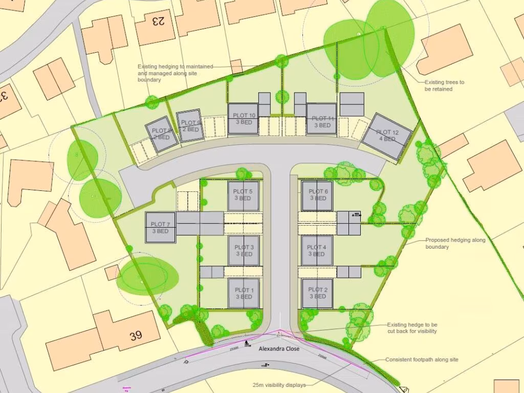
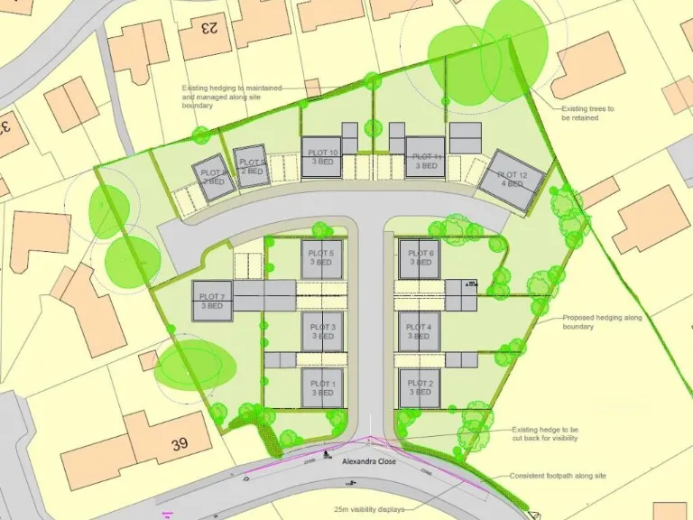
Outline planning for 12 detached open-market dwellings (access only reserved)
An attractive parcel in an elevated town-edge position with outline planning for 12 detached open-market homes. The permission (Ref: 23/01095/MOUT) is granted with all matters reserved except access, offering flexibility for a purchaser to submit detailed designs tailored to local demand. The scheme as consented provides a mix of 2-, 3- and 4-bedroom dwellings with garages or parking for each plot and pleasant south-west facing countryside views.
This is a straightforward freehold purchase extending to approximately 1.226 acres with mains electricity and water available nearby; buyers must, however, verify connection points and drainage strategy independently. There is no CIL, but a Section 106 requires an Affordable Housing commuted sum (£143,286), Education (£51,291) and Off-Site Public Open Space (£30,477). The purchaser will also be required to construct dropped crossings as agreed with the local authority.
Note practical constraints: the permission is outline only so detailed consent is required for layout and design, and the vendor prefers to retain a 30cm strip along the eastern boundary. The sale is by informal tender (freehold) with a firm deadline of noon on 5 December 2025; interested parties should obtain the tender pack and decision notice to check conditions and planning obligations before bidding.
Overall this offers an experienced developer or investor a ready, low-topography infill opportunity on a substantial town-edge plot with strong local amenities, good transport links to Exeter, and scope to deliver a compact residential scheme that takes advantage of elevated views.
Residential development for sale in 42 High Street, St Saviours Way, Crediton, Devon, EX17 3PJ, EX17 — £225,000 • 1 bed • 1 bath • 10454 ft²
Land for sale in Crediton, EX17 — £850,000 • 1 bed • 1 bath
Land for sale in Treasbeare Lane, Clyst Honiton, Exeter, EX5 — £200,000 • 1 bed • 1 bath • 13068 ft²
Land for sale in Treasbeare Lane, Clyst Honiton, Exeter, EX5 — £200,000 • 1 bed • 1 bath • 13068 ft²
Land for sale in Chudleigh, Newton Abbot, TQ13 — £1,000,000 • 1 bed • 1 bath • 2566 ft²
Plot for sale in Okehampton, North Street, EX20 1AR - Site For 19 Dwellings, EX20 — £800,000 • 1 bed • 1 bath


































































