Spacious period property with garage, large garden and rooftop sea outlook.
Stone's throw to beach and village amenities
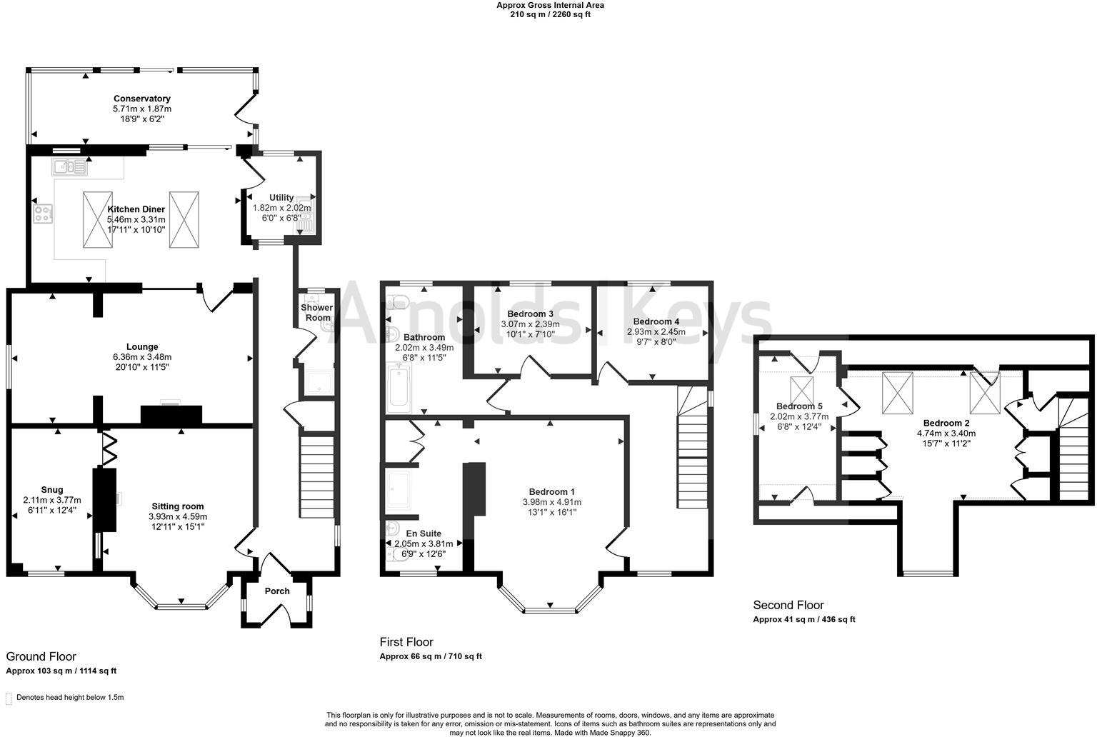
Set just a stone’s throw from East Runton beach, this substantial red-brick house offers generous, versatile accommodation over three floors. The property features a large kitchen/diner, two reception rooms, a snug and 4–5 bedrooms — including a top-floor room with rooftop sea views — making it well suited to family life or a holiday-base by the coast. The site includes driveway parking, an attached single garage and a large, split-level rear garden with patio and lawn.
The house retains period character and benefits from double glazing and mains gas central heating, but some rooms are dated. The ground-floor and first-floor bathrooms are compact and the property’s solid brick walls are likely to be uninsulated, so thermally upgrading could improve comfort and running costs. Roof-top sea views are a strong selling point, but internal modernisation would add value.
Practical features include a conservatory, utility room, three bathrooms, and useful eaves storage. The village centre location places shops, pubs and a restaurant within easy walking distance, with Cromer’s wider amenities and transport links a short drive away. Freehold tenure, mains services and a council tax band D complete the picture.
This house will suit buyers looking for a spacious, characterful family home near the coast who are prepared to carry out cosmetic and energy-efficiency improvements. It also offers potential for a rental or holiday-let investor, subject to any local restrictions.
3 bedroom cottage for sale in East Runton, Cromer, NR27 — £500,000 • 3 bed • 2 bath • 1095 ft²
3 bedroom detached house for sale in West Runton, NR27 — £390,000 • 3 bed • 2 bath • 991 ft²
2 bedroom end of terrace house for sale in Buxton Close, East Runton, Cromer, Norfolk, NR27 — £230,000 • 2 bed • 1 bath • 738 ft²
4 bedroom detached house for sale in West Runton, Cromer, Norfolk, NR27 — £770,000 • 4 bed • 2 bath • 2000 ft²
3 bedroom detached house for sale in West Runton, NR27 — £450,000 • 3 bed • 3 bath • 1244 ft²
3 bedroom detached house for sale in Cromer Road, West Runton, NR27 — £450,000 • 3 bed • 2 bath • 1109 ft²






















































































































































