Detached 3-bed with sea views, large garden and workshop; scope for further accommodation.
- Sea views to the front, golf-course views to the rear
- South-facing, generous enclosed garden with paved seating area
- Off-street parking for several vehicles on gravel frontage
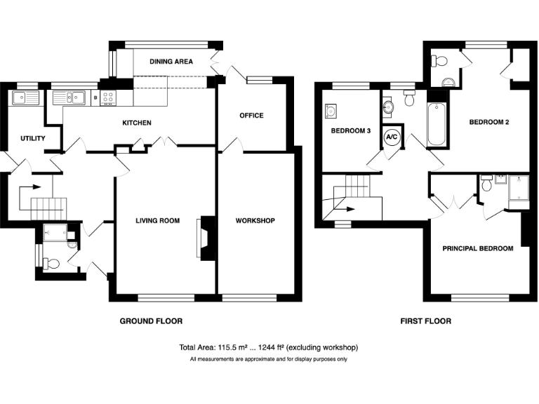
- Principal and guest bedrooms both include en-suite facilities
- Lean-to office/workshop with potential for extra accommodation (subject to planning)
- Gas central heating and uPVC double glazing (unknown glazing age)
- EPC rating D; property of 1930–1949 era may need updates
- Slow broadband; may require upgrade for reliable remote working
Set on a large plot in West Runton, this three-bedroom detached house delivers wide sea views to the front and golf-course views to the rear. The house is arranged over two floors with a spacious living room, modern kitchen/dining area with French doors to a south-facing garden, and principal and guest bedrooms both with en-suite facilities. Off-street parking for several cars and a separate lean-to office/workshop add practical space and scope for adaption.
The rear lean-to currently provides a home office and workshop and offers potential for further accommodation subject to planning and building regulation approval. The property benefits from gas central heating, uPVC double glazing and an EPC rating of D. The large, enclosed garden and sunny paved seating area suit outdoor living and family use, while mature planting provides interest year-round.
Practical drawbacks are clear: broadband speeds are slow, which may affect remote working without an upgrade. The lean-to accommodation would need planning permission and building-regulation work before use as formal living space. The house dates from the mid-20th century so future buyers should expect the usual maintenance and updating for a property of this age. Internal viewing is recommended to assess scope and character in person.
3 bedroom detached house for sale in Cromer Road, West Runton, NR27 — £450,000 • 3 bed • 2 bath • 1109 ft²
3 bedroom detached bungalow for sale in West Runton, NR27 — £475,000 • 3 bed • 2 bath • 1149 ft²
4 bedroom detached house for sale in West Runton, Cromer, Norfolk, NR27 — £770,000 • 4 bed • 2 bath • 2000 ft²
2 bedroom detached bungalow for sale in West Runton, NR27 — £450,000 • 2 bed • 1 bath • 1081 ft²
2 bedroom detached bungalow for sale in West Runton, NR27 — £375,000 • 2 bed • 1 bath • 837 ft²
3 bedroom detached bungalow for sale in West Runton, NR27 — £400,000 • 3 bed • 1 bath • 1003 ft²






































































