Spacious extended semi with west-facing garden and off-street parking, minutes from Leyland amenities and transport..
Driveway parking for two cars and west-facing rear garden
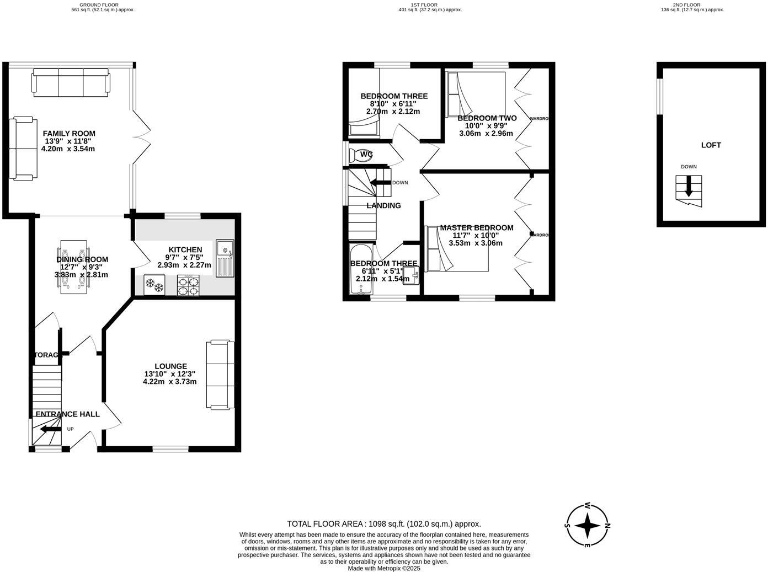
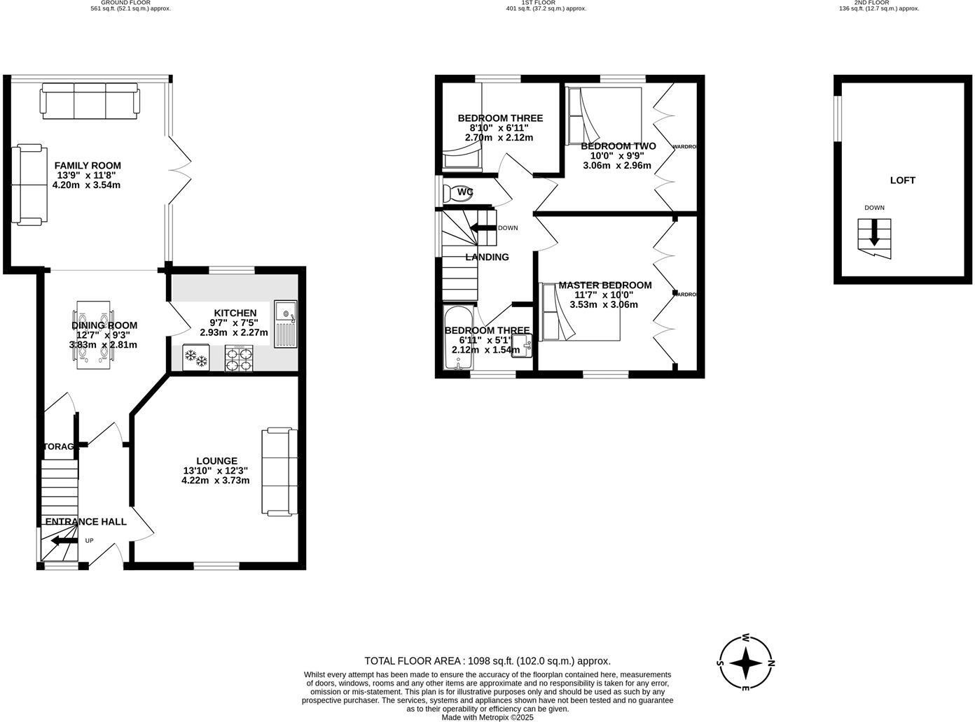
This extended three-bedroom semi is a practical family home in the heart of Leyland, set on a decent plot with off-street parking for two cars and a west-facing rear garden. Built in the interwar period, the house combines traditional brick character with modern living spaces including an orangery/family room that opens onto the garden.
Ground floor accommodation includes a spacious front lounge, a large open-plan dining/family room and a generously sized kitchen. The rear orangery provides extra flexible living space and good natural light. Upstairs are three double-bed capable bedrooms, a family bathroom with over-bath shower and a separate WC. The fully boarded loft (fitted with electricity and a Velux window) offers scope for conversion or substantial storage subject to planning and building regulations.
Practical details: the property is freehold, approximately 1,098 sq ft, has mains gas central heating and double glazing (install date unknown). Broadband speeds are fast and the area has very low crime and good travel links via the M6 and M61. Local schools include several rated Good and Outstanding.
Notable considerations: the EPC is rated D and there is a single family bathroom plus separate WC, which may require updating for growing families. While the home is well presented in places, prospective buyers should view to assess the condition and any modernization needs (kitchen, bathroom, or windows) before committing.
3 bedroom semi-detached house for sale in West Paddock, Leyland, PR25 — £170,000 • 3 bed • 2 bath • 1188 ft²
3 bedroom semi-detached house for sale in Clifton Avenue, Leyland, PR25 — £245,000 • 3 bed • 1 bath • 945 ft²
3 bedroom semi-detached house for sale in Pear Tree Road, Croston, Leyland, PR26 — £200,000 • 3 bed • 1 bath • 1037 ft²
3 bedroom semi-detached house for sale in Knowsley Avenue, Farington, Leyland, PR25 — £200,000 • 3 bed • 1 bath • 932 ft²
3 bedroom semi-detached house for sale in Bristol Avenue, Farington, Leyland, PR25 — £170,000 • 3 bed • 1 bath • 955 ft²
3 bedroom semi-detached house for sale in Wentwood Crescent, Leyland, PR25 — £260,000 • 3 bed • 2 bath • 945 ft²






































































































