**Standout Features:**
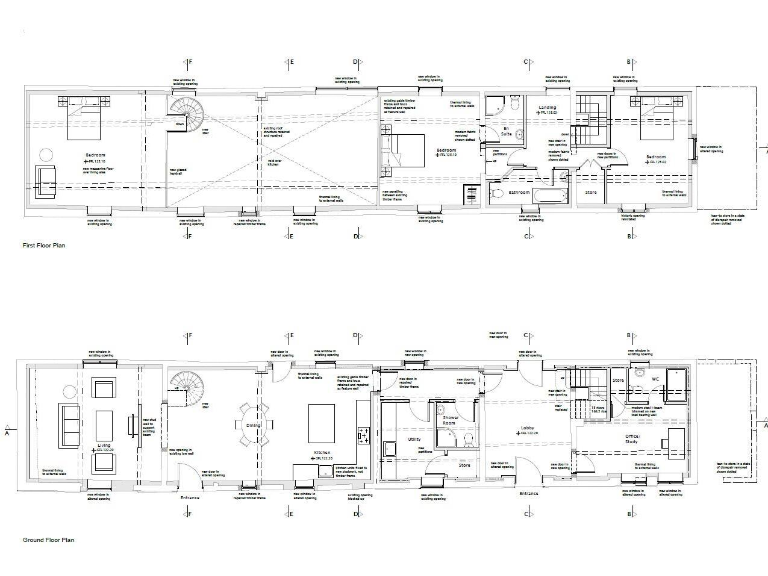
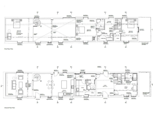
- Planning consent granted for conversion into a substantial residence
- Approximately 2,750 sq ft of interior space with potential for expansive living
- Large garage/workshop offering an additional 3,500 sq ft
- Generous gardens with far-reaching countryside views
- Rural yet conveniently located near Ellesmere and St. Martins
- Low crime area and excellent mobile signal
**Summary:**
Discover a rare opportunity to develop a distinctive barn conversion in the picturesque hamlet of Dudleston, just a stone's throw from Ellesmere. This project includes a range of former farm buildings with full planning permission granted to transform them into a spacious residential property extending to approximately 2,750 sq ft. The expansive grounds not only accommodate generous gardens but also feature a sizeable two-storey garage/workshop, providing versatility for hobbies or storage.
Embrace the peace of rural living without sacrificing convenience, as local amenities and well-regarded schools are within easy reach. While the property requires significant renovation, it offers limitless potential for those looking to create a bespoke country home. With planning consent secured and situated in a low-crime area boasting fast broadband, this property is an exceptional find for developers and homebuyers alike. Act fast—this unique opportunity to craft your dream residence amid scenic countryside won't last long!
Detached house for sale in Dudleston, Nr Ellesmere., SY12 — £245,000 • 1 bed • 1 bath • 2750 ft²
7 bedroom barn conversion for sale in Llansilin, Oswestry, SY10 — £175,000 • 7 bed • 1 bath
Detached house for sale in Yew Tree Barns, Horton, Nr Wem., SY4 — £200,000 • 1 bed • 1 bath • 3853 ft²
1 bedroom barn conversion for sale in Barn Conversion at Rhydycroesau, Oswestry, SY10 — £120,000 • 1 bed • 1 bath • 467 ft²
3 bedroom barn conversion for sale in Glyn Ceiriog, LL20 — £135,000 • 3 bed • 1 bath • 1927 ft²
3 bedroom barn conversion for sale in Newnes Barns, Nr Ellesmere., SY12 — £489,995 • 3 bed • 3 bath • 2066 ft²










































