SY12 9HQ - 3 bedroom barn conversion for sale in Newnes Barns, Nr Elle…

View on Property Piper

3 bedroom barn conversion for sale in Newnes Barns, Nr Ellesmere., SY12

Summary - 3 Newnes Barns, Newnes SY12 9HQ

3 bed 3 bath Barn Conversion

**Standout Features:**
- Beautifully converted 3-bedroom barn
- Exclusive courtyard setting with communal paddock and gardens
- High-quality finishes including underfloor heating and ground source heat pump
- Spacious lounge and kitchen/dining areas with original period features
- Landscaped gardens with a sunken patio
- Double garage with mezzanine storage
- Environmentally friendly design with water harvesting system

**Concise Property Summary:**
Discover a stunning 3-bedroom barn conversion in the serene Newnes Barns area, near Ellesmere. This enchanting property combines modern elegance with unique rustic charm, featuring a spacious lounge with an inglenook fireplace, and an open-plan kitchen/dining area equipped with high-end appliances. Each of the three bedrooms boasts its own en-suite, while the master includes a luxurious dressing room.

Set in a picturesque courtyard setting, the landscaped gardens provide a private sanctuary with lovely countryside views, highlighted by a sunken patio perfect for outdoor entertaining. Environmentally conscious buyers will appreciate the ground source heat pump and rainwater harvesting system that enhance energy efficiency.

With the property’s size (over 2000 sq ft) and exclusive setting, it’s ideal for families seeking comfort and character. The double garage plus ample visitor parking add convenience. Close to local amenities and within reach of larger towns, this tranquil retreat is perfect for those desiring a peaceful rural lifestyle. **Act fast to seize this exceptional opportunity!**

Property Details

Brochure Descriptions

Image Descriptions

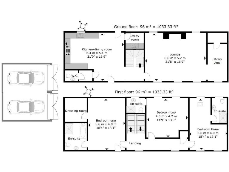
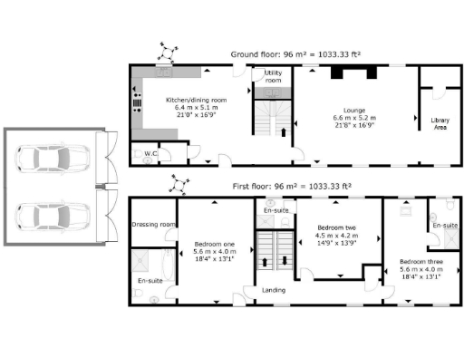
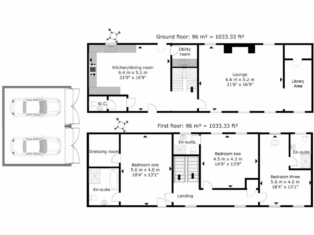
Floorplan Description

Rooms

Textual Property Features

Detected Visual Features

EPC Details

Nearby Schools

Nearest Bars And Restaurants

,,,,}

Nearest General Shops

,,}

Nearest Grocery shops

,,}

Nearest Supermarkets

,,}

Nearest Religious buildings

,,}

Nearest Medical buildings

,,,}

Nearest Leisure Facilities

,,,,}

Nearest Tourist attractions

,,}

Nearest Train stations

,,,,}

Nearest Bus stations and stops

,,,,}

Nearest Hotels

,,}

Tags

Local Market Stats

Similar Properties

Meta

High Res Images

Compatible Images

Low res Images

Thumbnails

Raw Images

High Res Floorplan Images

Compatible Floorplan Images

Low res Floorplan Images

FloorplanImages Thumbnail

Raw Floorplan Images