**Standout Features:**
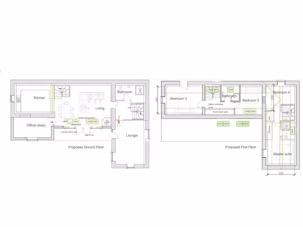
- **Size**: Spacious 7-bedroom barn conversion with full planning permission for two residential dwellings (four-bedroom barn, three-bedroom cottage).
- **Scenic Location**: Nestled in the tranquil countryside near Llansilin, offering picturesque views of rolling hills and green fields.
- **Property Condition**: Requires renovation, allowing for personal customization and modern upgrades.
- **Garden Space**: Generously sized gardens, though currently overgrown, present a fantastic opportunity for landscaping and outdoor enjoyment.
- **Planning Details**: Two planning references (21/0808/FUL and 22/0217/FUL) available for conversion details.
**Potential Concerns:**
- **Rural Setting**: Located in a remote area; minimal amenities nearby and no mobile signal or broadband services.
- **Maintenance Needs**: The property is in a derelict state, needing significant restoration work to transform it into livable homes.
This unique 7-bedroom barn conversion in Llansilin, Oswestry, presents an exceptional opportunity for developers or families looking for a substantial project with planning permission already granted for two separate homes. The idyllic rural location, coupled with expansive countryside views, creates a perfect canvas for those wishing to escape urban life and enjoy peaceful living. However, buyers should be prepared for the renovation journey ahead, as the building requires extensive work to realize its full potential. With generous outdoor spaces awaiting your design touch, envision creating a personal sanctuary in a serene setting. Don’t miss out on this chance to transform a rustic gem into a dream residence—opportunities like this in such picturesque surroundings are rare.
Detached house for sale in Dudleston, Nr Ellesmere., SY12 — £245,000 • 1 bed • 1 bath • 2750 ft²
1 bedroom barn conversion for sale in Barn Conversion at Rhydycroesau, Oswestry, SY10 — £120,000 • 1 bed • 1 bath • 467 ft²
Residential development for sale in Dudleston, Nr Ellesmere., SY12 — £245,000 • 1 bed • 1 bath • 2750 ft²
6 bedroom barn conversion for sale in Hirnant, SY10 — £619,950 • 6 bed • 4 bath • 4049 ft²
3 bedroom barn conversion for sale in Glyn Ceiriog, LL20 — £135,000 • 3 bed • 1 bath • 1927 ft²
2 bedroom barn conversion for sale in Tregeiriog, Glyn Ceiriog, Llangollen, LL20 — £200,000 • 2 bed • 1 bath • 1024 ft²


















































































