**Key Features:**
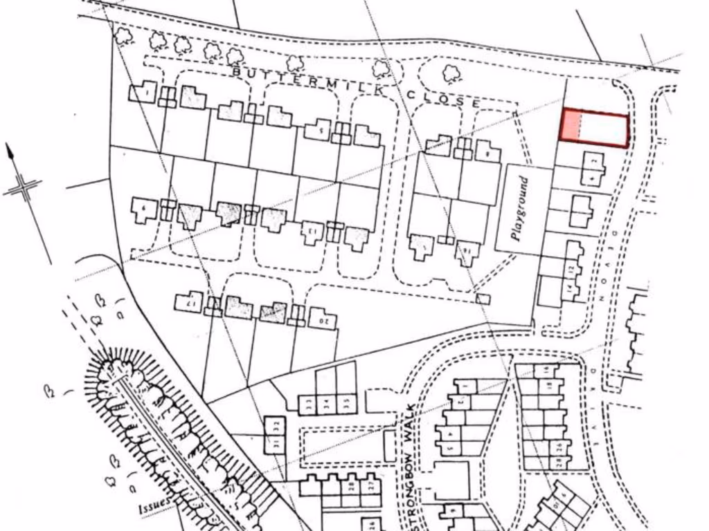
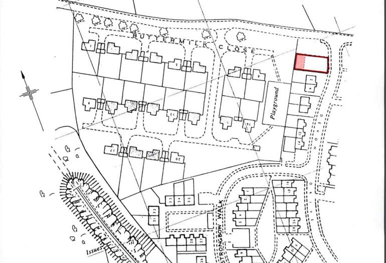
- Large plot size: 0.89 acres
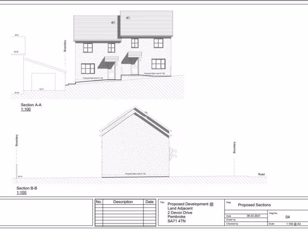
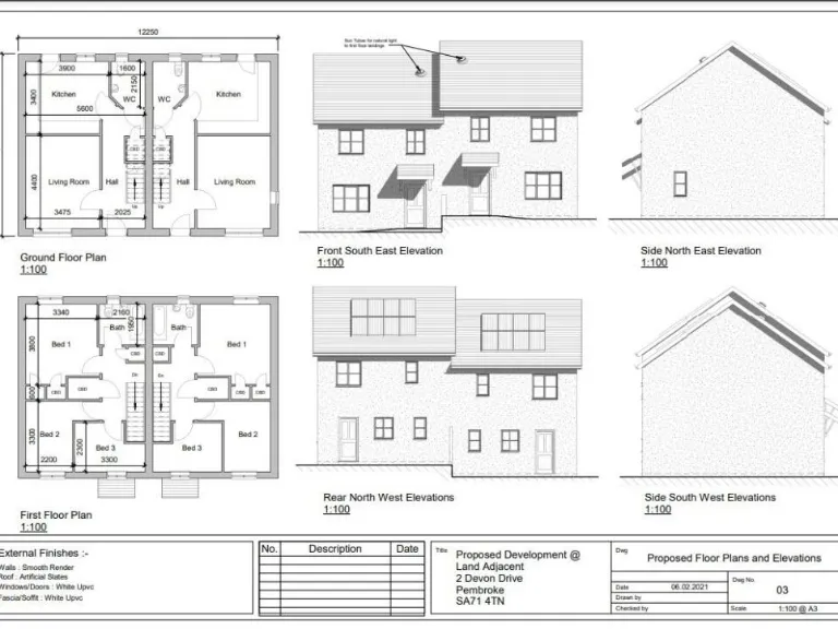
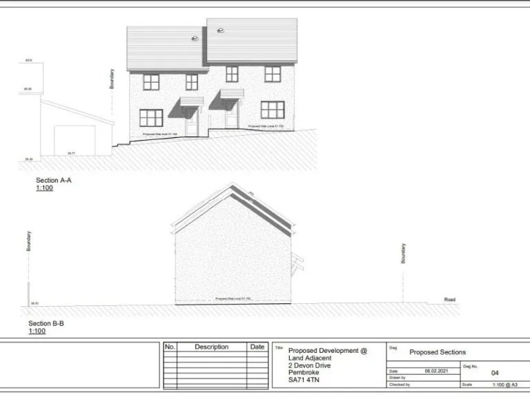
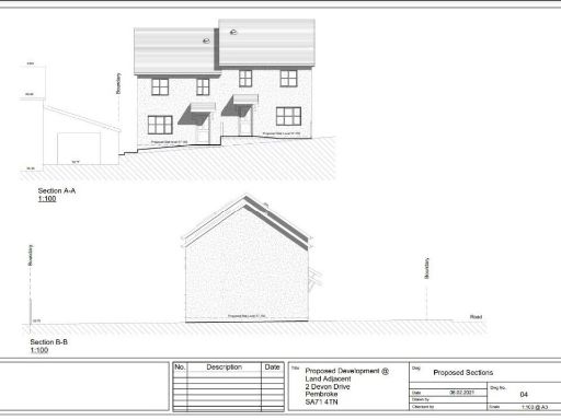
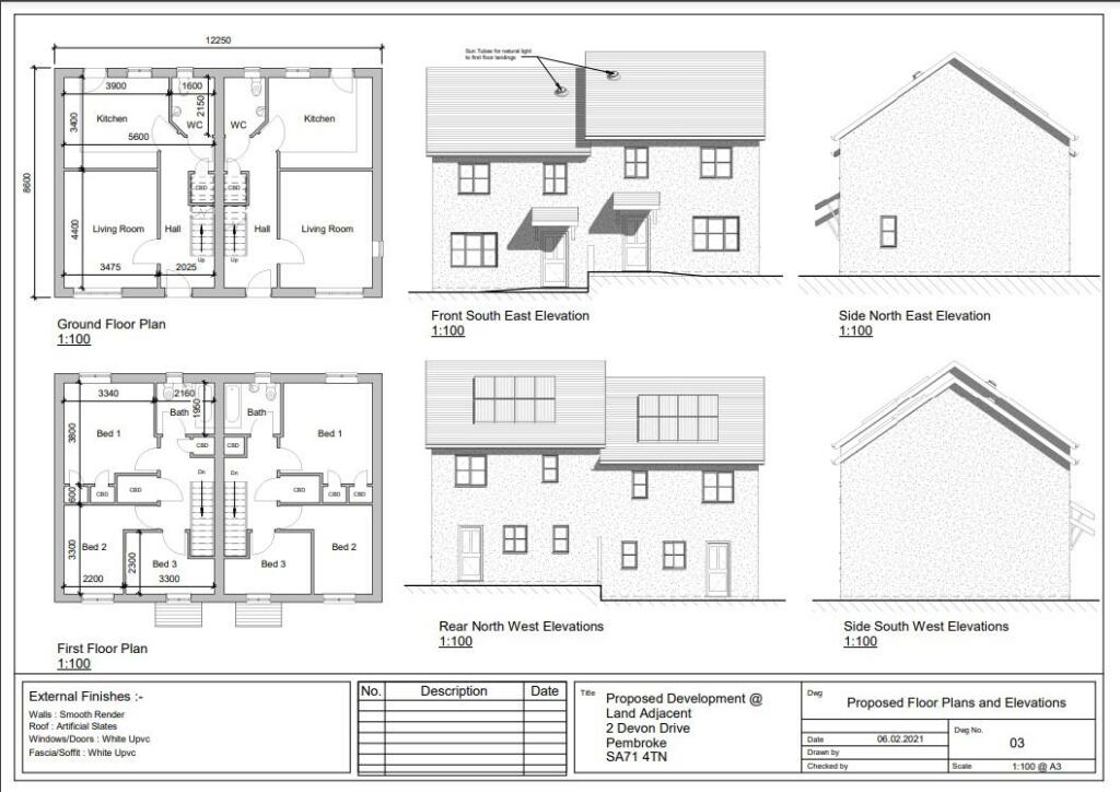
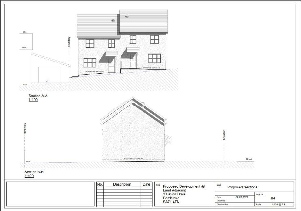
- Full planning permission for two semi-detached, 3-bedroom, two-storey dwellings (Application Number: 21/0135/PA)
- Design includes modern rendered masonry with natural or composite slate roof
- Two parking spaces designated per dwelling
- Quiet location at the edge of Pembroke Town, close to amenities
**Summary:**
Unlock the potential of this prime plot on Devon Drive, ideally situated on the edge of Pembroke Town. Spanning 0.89 acres, this property comes with full planning permission to develop two stylish, semi-detached, 3-bedroom homes—perfect for investors looking for a profitable venture or families wishing to create their dream residence. Enjoy ease of access to local shops, schools, and beautiful surroundings from this tranquil yet convenient location.
This plot not only offers the opportunity to build two contemporary homes but also the flexibility to shape them into a personalized space. With reliable mobile signal and fast broadband, the site accommodates modern connectivity needs. Don’t miss out on this exclusive opportunity to secure a piece of Pembroke with potential for future appreciation—this listing won't last long!
Land for sale in Milton Terrace, Pembroke Dock, Pembrokeshire, SA72 — £50,000 • 1 bed • 1 bath
Plot for sale in 2 Building Plots With Full PP Opposite West Holloway House, Penally, SA70 — £150,000 • 1 bed • 1 bath
Land for sale in Building Plot, Charles Thomas Avenue, Pembroke Dock, SA72 — £100,000 • 1 bed • 1 bath
Land for sale in Southampton Row, Pembroke Dock, Pembrokeshire, SA72 — £180,000 • 1 bed • 1 bath
Plot for sale in Liddeston Road, Havens Head, Milford Haven, SA73 — £120,000 • 1 bed • 1 bath
Plot for sale in Carmarthen Road, Kilgetty, SA68 — £90,000 • 1 bed • 1 bath






































