**Standout Features:**
- Development land with planning consent for four semi-detached houses
- Planning Application Number: 24/0229/PA
- Private parking available
- Large plot with gardens front, side, and rear
- Excellent mobile signal and fast broadband speeds
**Potential Concerns:**
- Derelict condition and overgrown grounds requiring significant maintenance
- Area has been classified as above average crime and very deprived
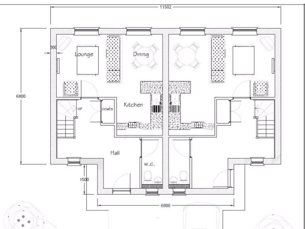
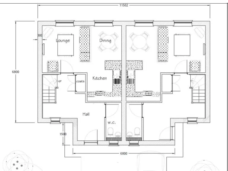
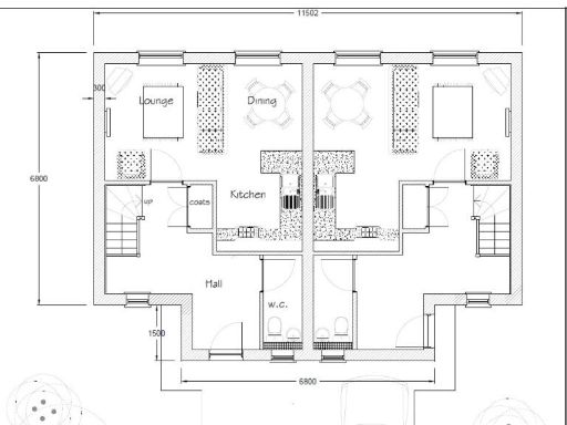
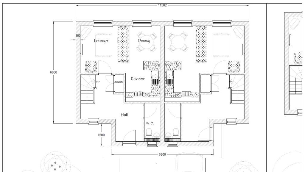
Unlock the potential of this generous development land located in Pembroke Dock, with approved planning consent for four semi-detached homes. Priced at £180,000, this property benefits from a strategic location, featuring an ideal setup with private off-street parking and spacious garden areas.
The site’s steep slope allows for a unique architectural opportunity, presenting the front view as a single story while maximizing living space to three stories at the rear. This configuration adds potential value and appeals for families looking for modern living in a suburban setting. However, the current condition requires substantial renovation—overgrown landscaping and a derelict state highlight both the challenges and opportunities that await a savvy investor or developer.
Given the area’s increasing residential interest and necessary amenities nearby, this property offers a canvas for both investment and development dreams. Don’t miss out on this chance to transform a neglected space into desirable homes; with pressing local housing needs, now is the time to act!
Land for sale in Building Plot, Charles Thomas Avenue, Pembroke Dock, SA72 — £100,000 • 1 bed • 1 bath
Land for sale in Milton Terrace, Pembroke Dock, Pembrokeshire, SA72 — £50,000 • 1 bed • 1 bath
Plot for sale in Devon Drive, Pembroke, SA71 — £60,000 • 1 bed • 1 bath
Land for sale in Zone 11 Ocean Drive, Pennar, Pembrokeshire, SA72 6GL, SA72 — £275,000 • 1 bed • 1 bath
Land for sale in Development Site, Main Street & Gooses Lane, SA71 — £100,000 • 1 bed • 1 bath • 2680 ft²
Land for sale in Crossways, Honeyborough, Milford Haven, Pembrokeshire, SA73 — £100,000 • 1 bed • 1 bath


























































