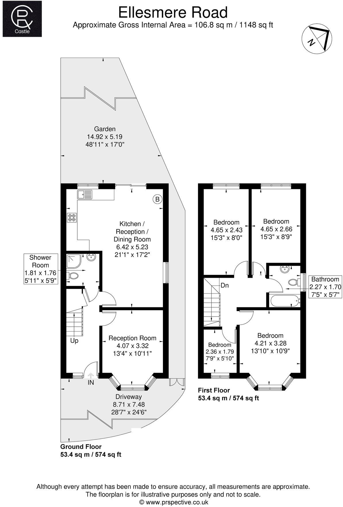
Four bedrooms and two bath/shower rooms, flexible family layout
Off-street parking and driveway for convenience
West-facing landscaped garden with fruit trees
Over 100 sqm (approx. 1,148 sq ft) of living space
Close to Greenford Broadway, shops, buses and fast broadband
Near highly rated schools including Cardinal Wiseman (Outstanding)
Solid brick (1930s–1940s) construction; insulation upgrades likely needed
Small plot size; garden pleasant but not large
This four-bedroom end-of-terrace on Ellesmere Road offers practical family living with clear everyday benefits: off-street parking, two bathrooms and a west-facing landscaped garden with fruit trees. The house extends to just over 100 sqm (around 1,148 sq ft), providing flexible space across multiple floors for children’s bedrooms, home working or guest rooms.
Local conveniences are strong — a short walk to Greenford Broadway for shops and buses, fast broadband and excellent mobile signal. Several well-regarded primary and secondary schools (including The Cardinal Wiseman) are nearby, making the location especially suitable for families prioritising schooling and transport links.
Records indicate a mid-20th-century build (1930s–1940s) but the interior benefits from modern finishes and gas central heating with a boiler and radiators. Buyers should note the property’s solid brick walls are assumed to lack cavity insulation, so thermal upgrades could be desirable to improve efficiency and reduce running costs. The plot is modest in size, so the garden suits family use but is not extensive.
Freehold tenure, low local crime and an affluent neighbourhood profile make this a straightforward purchase for a growing family or those seeking long-term ownership close to amenities. The house is presented ready to move into but offers clear scope for energy-efficiency improvements and cosmetic personalisation if desired.
4 bedroom terraced house for sale in Ellesmere Road, Greenford, UB6 — £649,000 • 4 bed • 2 bath • 1221 ft²
4 bedroom end of terrace house for sale in Ellesmere Road, Greenford, UB6 — £649,000 • 4 bed • 2 bath • 1210 ft²
4 bedroom terraced house for sale in Portland Crescent, Greenford, UB6 — £585,000 • 4 bed • 2 bath • 1485 ft²
3 bedroom terraced house for sale in Purcell Road, Greenford, UB6 — £575,000 • 3 bed • 2 bath • 1020 ft²
4 bedroom terraced house for sale in Keats Way, Greenford, UB6 — £735,000 • 4 bed • 1 bath • 1642 ft²
3 bedroom end of terrace house for sale in Greenford, UB6 — £550,000 • 3 bed • 1 bath • 695 ft²


































































