Spacious family house with parking and garden, close to quality schools.
Freehold extended mid-terrace with four bedrooms
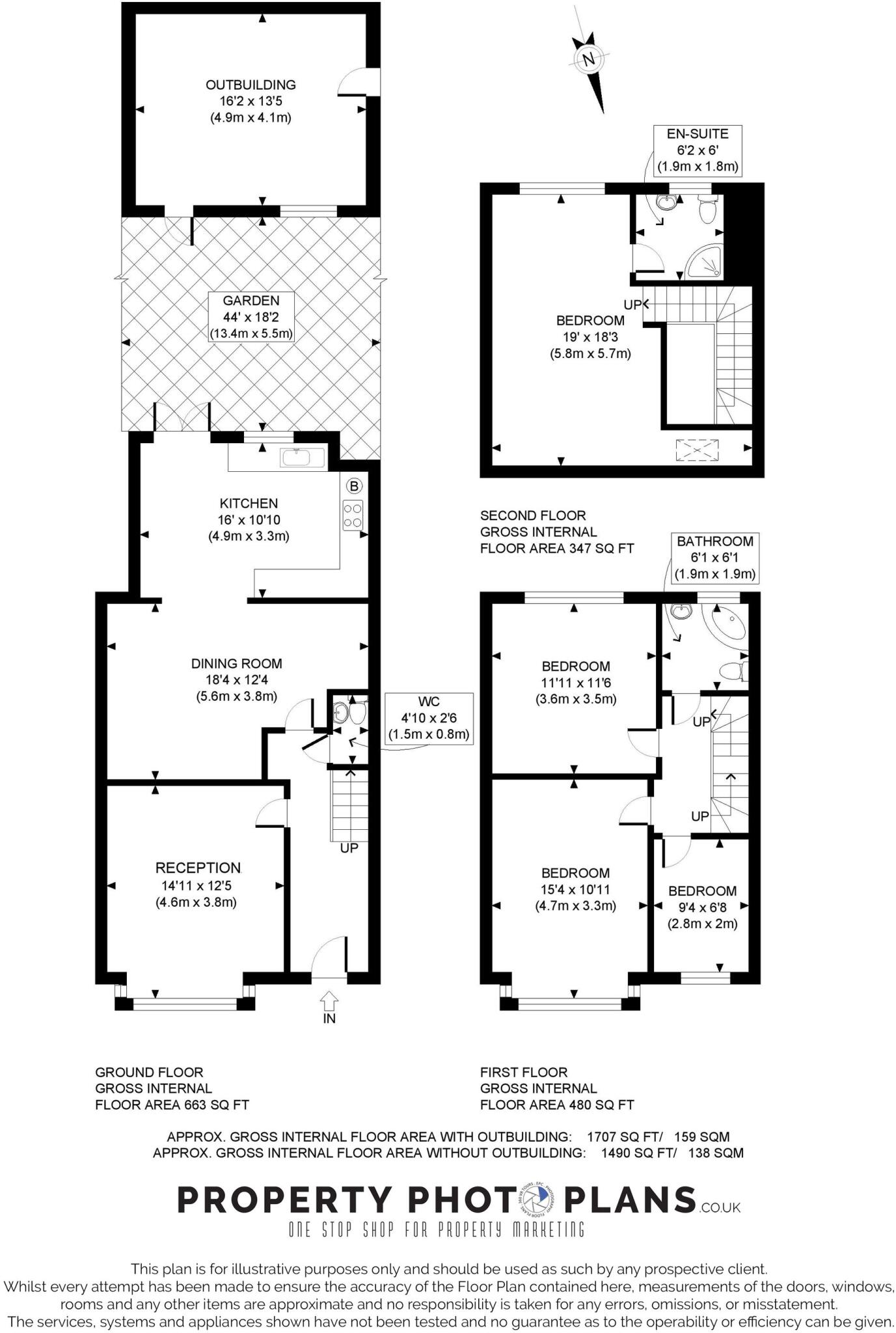
This extended four-bedroom mid-terrace on Portland Crescent offers practical family living with clear scope to add value. At about 1,485 sq ft the layout includes two reception rooms, a large fully fitted kitchen and two bathrooms — useful for growing households. The rear garden has an outbuilding and a paved area that’s low maintenance and ready for landscaping.
The house is freehold with off-street parking for two cars and sits close to Greenford Broadway, local amenities and several well-regarded schools including The Cardinal Wiseman (Outstanding). Transport and broadband are strong and the area is generally affluent with low crime, making the location a solid long-term choice for families.
There are some practical downsides to note: the exterior is in poor condition and the property looks to need external renovation and modernising in places. The walls are solid brick with no assumed insulation and glazing install dates are unknown, so buyers should factor in energy improvement work. Heating is by an LPG boiler and the EPC is E, which may mean higher running costs until upgrades are carried out.
For buyers comfortable with updating, the house presents clear potential — extend further (subject to consents), upgrade insulation and windows, and modernise interiors to increase comfort and value. For families seeking space near good schools and transport, this is a sensible, well-located option that rewards some investment.
4 bedroom terraced house for sale in Ellesmere Road, Greenford, UB6 — £649,000 • 4 bed • 2 bath • 1221 ft²
4 bedroom end of terrace house for sale in Northwood Gardens, Greenford, UB6 — £699,950 • 4 bed • 2 bath • 1438 ft²
4 bedroom end of terrace house for sale in Reading Road, Northolt, UB5 — £590,000 • 4 bed • 2 bath • 1008 ft²
4 bedroom end of terrace house for sale in Ellesmere Road, Greenford, UB6 — £649,000 • 4 bed • 2 bath • 1210 ft²
4 bedroom semi-detached house for sale in Greenford, UB6 — £650,000 • 4 bed • 2 bath • 1111 ft²
3 bedroom end of terrace house for sale in Greenford Road, Greenford, UB6 — £595,000 • 3 bed • 2 bath • 817 ft²


















































