Spacious three-bedroom flint barn conversion, chain free and a short walk to the beach..
Chain free largest cottage in Farm Cottages collection
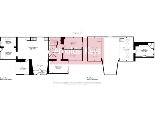
Approximately 2,245 sq ft; very spacious, adaptable accommodation
Traditional flint and exposed beams retain strong original character
Short walk to the beach; village shops and amenities nearby
Two private gardens, summer house, patio and enclosed courtyards
Single garage (in block of four) plus off-road parking and visitor space
Mains gas central heating and fast broadband; sealed unit glazing present
Council Tax band E; property size and character require ongoing maintenance
This spacious three-bedroom barn conversion sits in the heart of East Runton, a short walk from the beach and village amenities. At approximately 2,245 sq ft the house is the largest in the small Farm Cottages collection and combines preserved flint and exposed-beam character with practical modern comforts such as mains gas central heating and fast broadband. The property is offered chain free and includes a single garage, off-road parking and generous private gardens on both sides.
Internally the adaptable layout offers large open-plan living with high vaulted ceilings, a mezzanine bedroom area, a contemporary kitchen/breakfast room and flexible additional rooms that suit working from home, guest accommodation or family use. Sealed-unit glazing is installed throughout, though some glazing and finishes predate more recent standards and may be considered older. There are good storage options including eaves cupboards and two large built-in storage cupboards.
Outside there is a westerly courtyard with summer house and a separate easterly lawned garden and paved patio — both enclosed by brick and flint walls for privacy. The garage is in a block of four and there is an allocated visitors space; parking is convenient but the garage is not directly attached. Council Tax band E applies. The property has been well looked after by the long-term owner, but its size, character features and external buildings will require ongoing maintenance.
This home will suit buyers seeking a roomy coastal property with character and scope to personalise: families wanting versatile living close to the sea, professionals needing a home office, or downsizers looking for floor space without moving to the town centre. No flood risk and low local crime add practical reassurance for coastal living.
3 bedroom cottage for sale in East Runton, Cromer, NR27 — £500,000 • 3 bed • 2 bath • 1095 ft²
3 bedroom end of terrace house for sale in High Street, East Runton, Cromer, NR27 — £295,000 • 3 bed • 1 bath • 617 ft²
3 bedroom barn conversion for sale in The Hurn, West Runton, Cromer, NR27 — £375,000 • 3 bed • 2 bath • 899 ft²
3 bedroom link detached house for sale in Barn 1, Beeston Hall Farm Barns, Beeston Regis, Cromer, Norfolk, NR27 — £795,000 • 3 bed • 3 bath • 1884 ft²
2 bedroom detached bungalow for sale in Broomhill, East Runton, Cromer, NR27 — £345,000 • 2 bed • 1 bath • 821 ft²
4 bedroom detached house for sale in West Runton, Cromer, Norfolk, NR27 — £770,000 • 4 bed • 2 bath • 2000 ft²


















































































