Solar panels, double garage and £30,000 deposit incentive near good schools.
Five double bedrooms across three floors
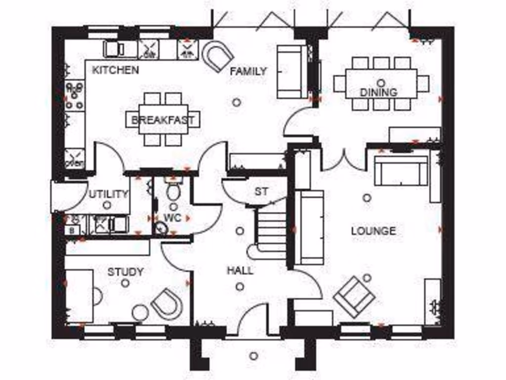
Set on a decent plot in a prosperous rural pocket of Northamptonshire, this new‑build Lichfield layout provides generous living across approximately 2,515 sqft. The ground floor is designed for family life with an open-plan kitchen/family/breakfast room that opens to the garden through French doors, a separate lounge and a formal dining room. Solar panels are already fitted, reducing running costs, and a double garage plus four-car driveway offer substantial parking. A £30,000 deposit contribution is being offered to help buyers secure the home.
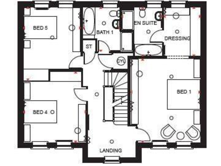
The first‑floor main bedroom includes a dressing area and en suite; two further double bedrooms and a family bathroom are also on this level. The second floor provides two additional double bedrooms and a dual‑access bathroom, giving flexibility for teenagers, guests or a home office. Room dimensions are generously scaled throughout, supporting comfortable family living and commuting professionals in the area.
Buyers should note some important practical points. The listing records just one bathroom in the summary data (please confirm the exact bathroom count and finish level at viewing). Tenure is not stated and must be verified. Crime is reported as above average for the area, so prospective purchasers should consider local security and insurance implications.
This house will suit families seeking space, modern fixtures and low‑running costs from solar generation, or buyers wanting a well‑specified new build in a prosperous village setting. Full particulars, floorplans, EPC and confirmation of tenure and bathroom layout are recommended before proceeding to valuation or offer.
5 bedroom detached house for sale in Stratford Drive
Overstone
NN6 0RP, NN6 — £729,995 • 5 bed • 1 bath • 2515 ft²
5 bedroom detached house for sale in Stratford Drive
Overstone
NN6 0RP, NN6 — £639,995 • 5 bed • 1 bath • 1972 ft²
5 bedroom detached house for sale in Stratford Drive
Overstone
NN6 0RP, NN6 — £714,995 • 5 bed • 1 bath • 1780 ft²
5 bedroom detached house for sale in Stratford Drive
Overstone
NN6 0RP, NN6 — £659,995 • 5 bed • 1 bath • 1671 ft²
5 bedroom detached house for sale in Stratford Drive
Overstone
NN6 0RP, NN6 — £729,995 • 5 bed • 1 bath • 2134 ft²
4 bedroom detached house for sale in Stratford Drive
Overstone
NN6 0RP, NN6 — £599,995 • 4 bed • 1 bath • 1503 ft²


















































