Large DG3 plot with planning consent and foundations in place — design and build your family home..
Full planning permission granted (Ref. 23/1813/FUL) for a 3–4 bed detached home
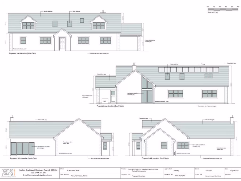
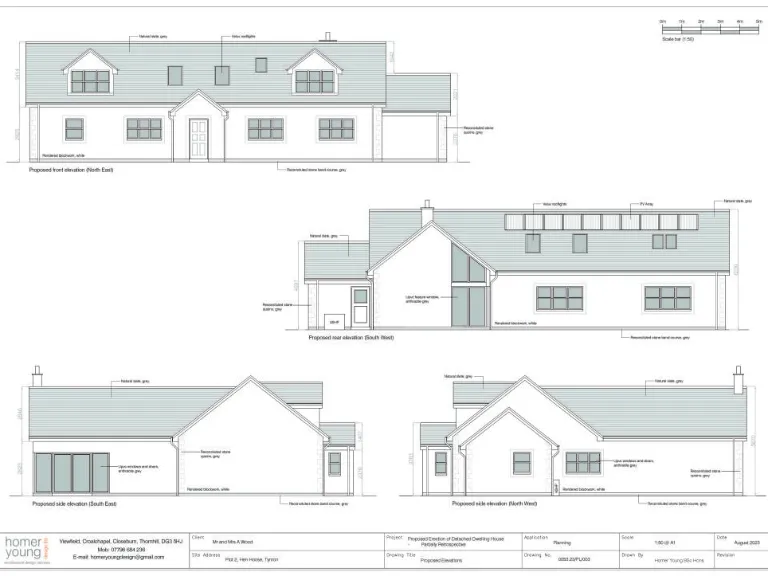
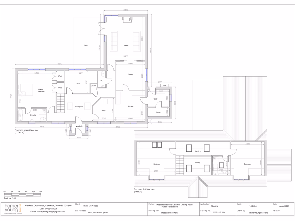
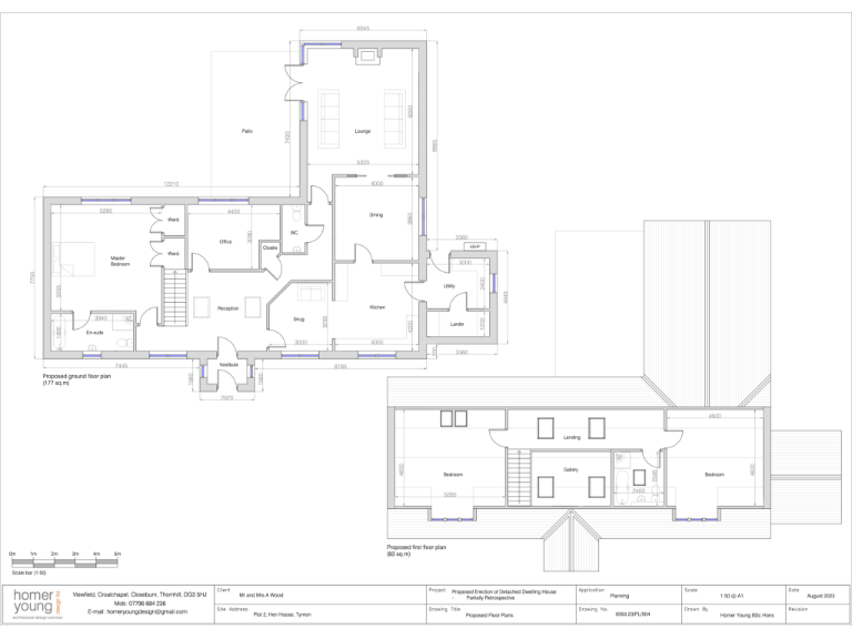
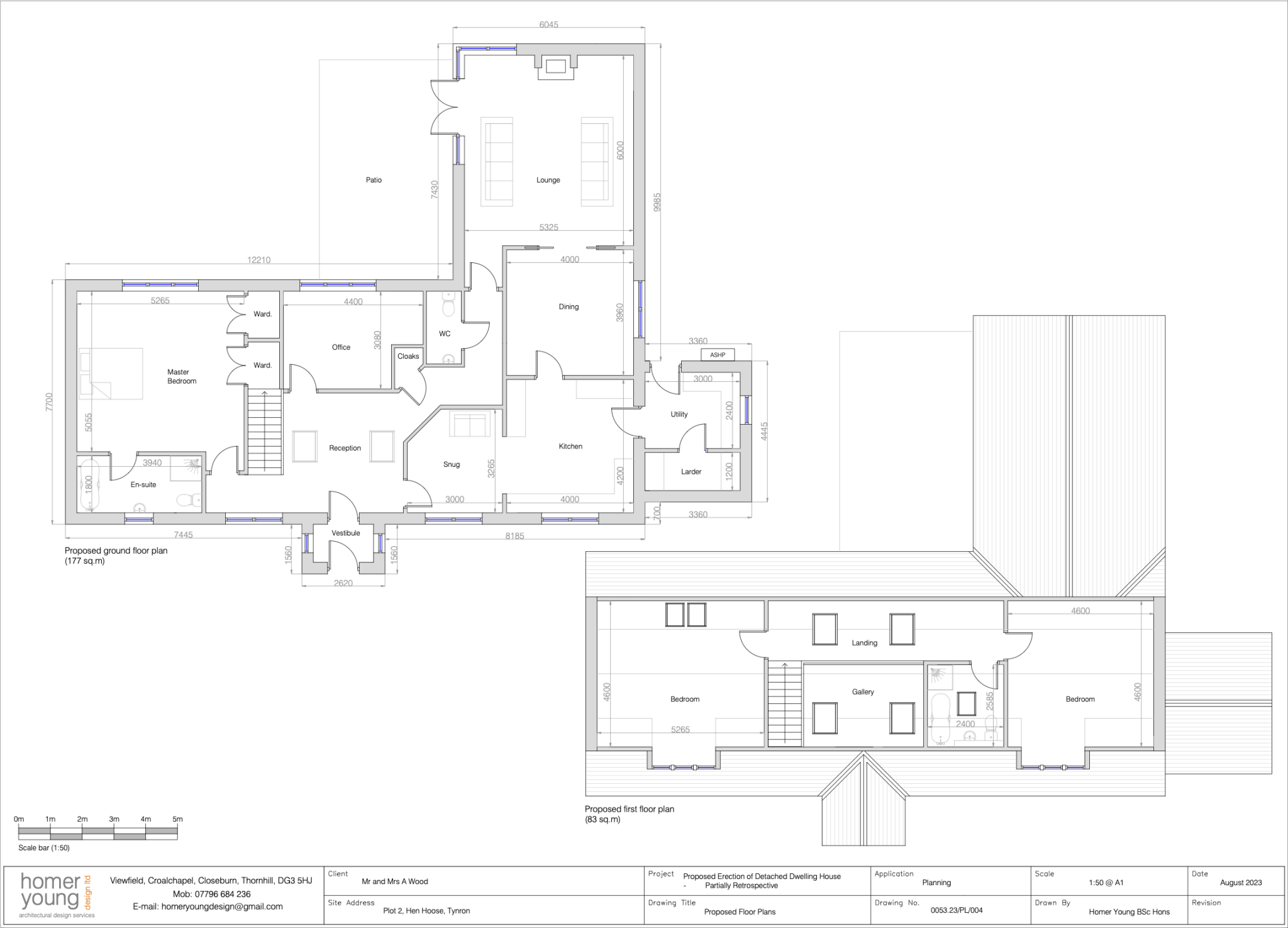
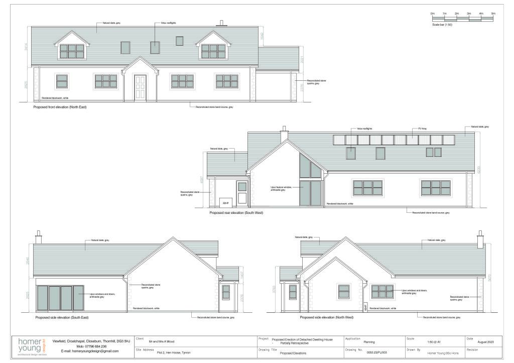
This substantial plot in Tynron (approx. 3,330 sqm) offers a rare opportunity to design and build a detached 3–4 bedroom family home in a peaceful rural setting. Full planning permission (Ref. 23/1813/FUL) and an accepted building warrant are already in place, and the site has foundations and a septic tank installed — a significant head start on construction.
The plot sits in an historic iron-age village environment close to Thornhill, Moniaive and Penpont, with local primary schooling and village amenities a short drive away and secondary schooling in Thornhill circa 7 miles. Outdoor pursuits are on the doorstep: hill walking, cycling, fishing and nearby Drumlanrig Castle add lifestyle appeal for families and countryside lovers.
Buyers should note this is a remote, rural location with average mobile signal and slow broadband; the access is via a private road with a shared right of way. The surrounding area is classified as remoter and the wider area shows higher deprivation, so services and conveniences are less immediate than urban locations. The plot will require completion of the build to create a finished home and ongoing investment to connect utilities as needed.
Overall, this is a strong opportunity for someone seeking space, privacy and control over design, with the practical advantage of planning consent and initial site works already completed. Viewing is strongly recommended to appreciate the size, layout and potential of the site on offer.
Plot for sale in Auldgirth, Dumfries, Dumfries and Galloway, DG2 — £125,000 • 1 bed • 1 bath
Plot for sale in Thornhill, Dumfries, DG3 4AD, DG3 — £90,000 • 4 bed • 1 bath • 11840 ft²
Plot for sale in Former School Site, Auldgirth, DG2 — £75,000 • 1 bed • 1 bath
Plot for sale in Low Farthingwell, Coldside Road, DG2 — £420,000 • 1 bed • 1 bath
Land for sale in Plot of Land at Old Moss Side, Dunscore, Dumfries, DG2 0SY, DG2 — £115,000 • 1 bed • 1 bath
Land for sale in Closeburn, Thornhill, DG3 — £495,000 • 1 bed • 1 bath










































