**Standout Features:**
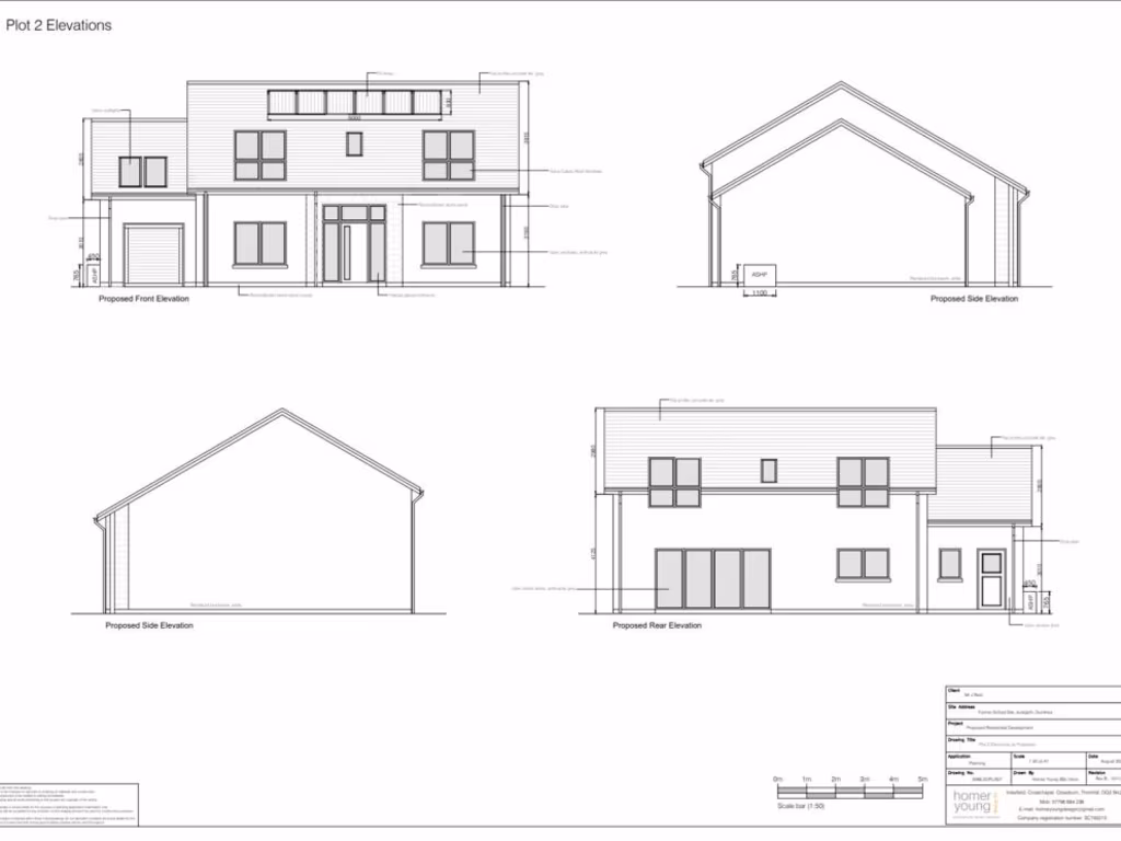
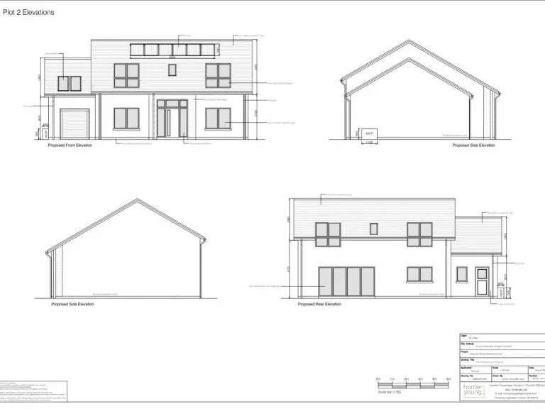
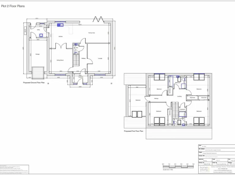
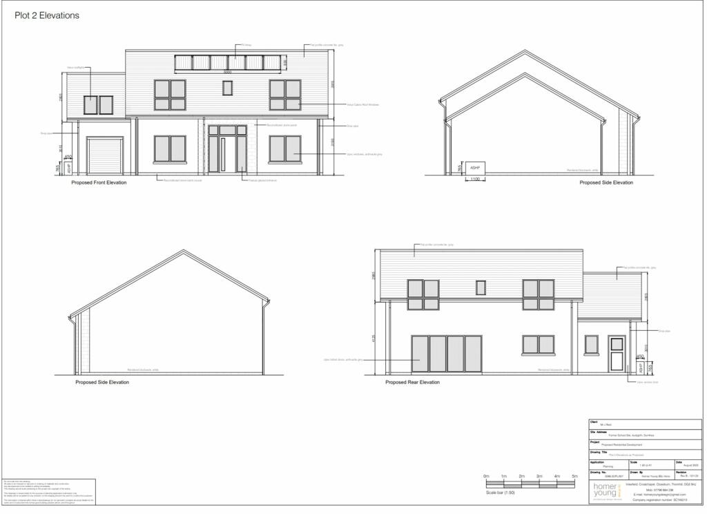
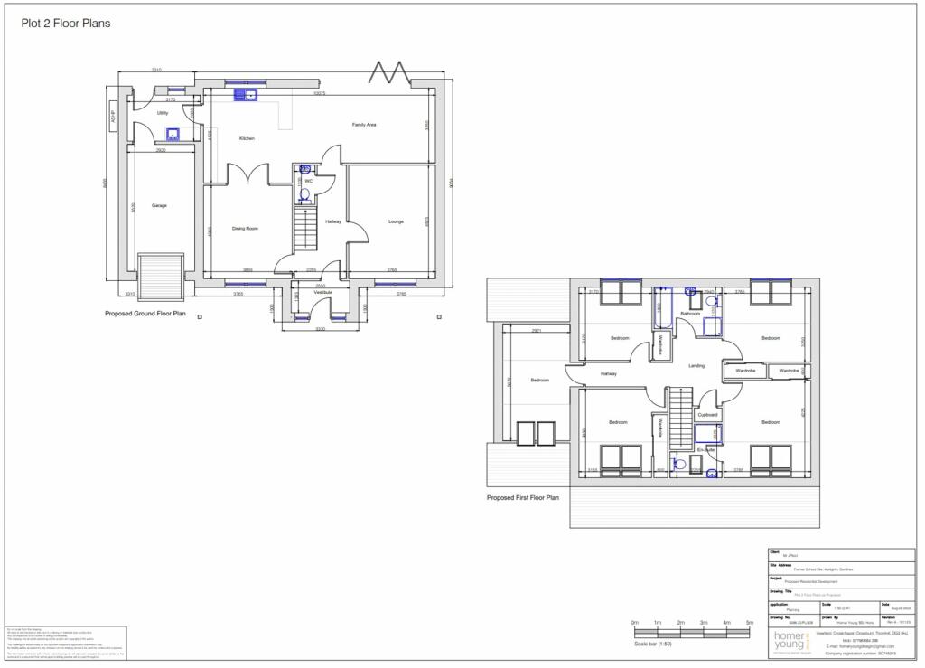
- **Prime Development Opportunity**: Planning approval for a five-bedroom detached family home.
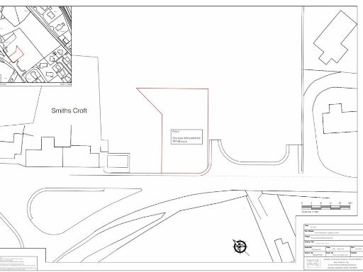
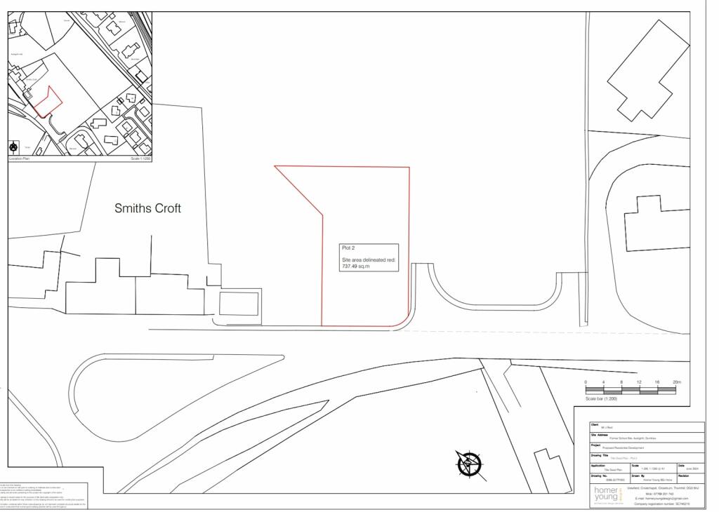
- **Elevated Position**: Breathtaking countryside views to enhance your living experience.
- **Sought-After Village Location**: Enjoy small-town charm and community spirit.
- **Affordable Real Estate**: At just £75,000, this is a rare chance in today’s market.
**Potential Concerns:**
- **Empty Plot**: The land is currently undeveloped and will require initial investment for construction and landscaping.
- **Areas of Higher Deprivation**: The surrounding area is classified as very deprived, which may impact amenities and service availability.
This exceptional development site offers a rare opportunity to create your dream home in a picturesque village setting. With planning granted, you have the freedom to design a spacious five-bedroom family home that perfectly fits your needs. Enjoy incredible countryside views and the tranquil charm of rural living.
This plot provides not just a home, but a lifestyle, nestled among local amenities such as inns, a restaurant, and leisure facilities, all within a short distance. Secure this opportunity today and start your journey towards building the ideal family haven—one that is sure to be cherished for generations. Don't miss out, as opportunities like this don’t last long!
Plot for sale in Auldgirth, Dumfries, Dumfries and Galloway, DG2 — £125,000 • 1 bed • 1 bath
Land for sale in New Abbey Road, Dumfries, DG2 — £130,000 • 1 bed • 1 bath
Land for sale in Tynron, Thornhill, DG3 — £100,000 • 1 bed • 1 bath • 2800 ft²
Plot for sale in Thornhill, Dumfries, DG3 4AD, DG3 — £90,000 • 4 bed • 1 bath • 11840 ft²
Land for sale in Plot of Land at Old Moss Side, Dunscore, Dumfries, DG2 0SY, DG2 — £115,000 • 1 bed • 1 bath
Plot for sale in Low Farthingwell, Coldside Road, DG2 — £420,000 • 1 bed • 1 bath














































