Rare elevated plot with outline planning and panoramic rural views.
Outline planning approved (Ref: 24/2385/PIP) for a luxury home
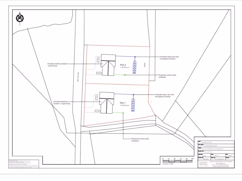
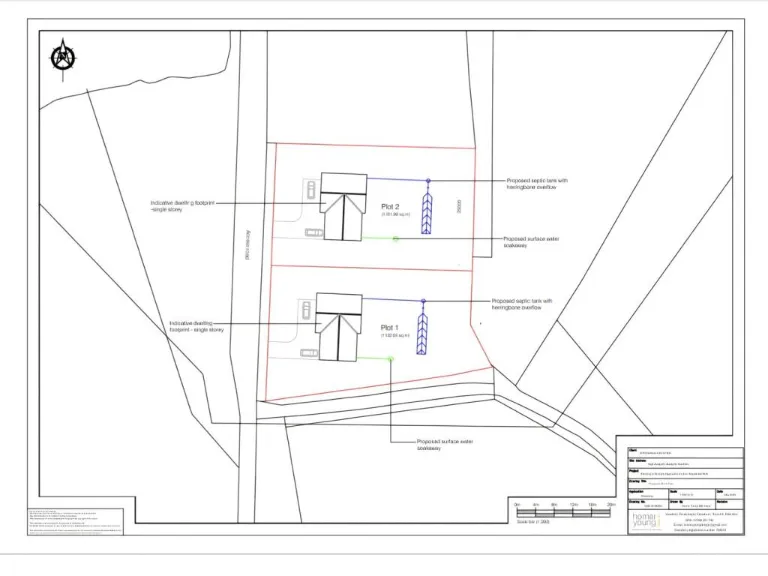
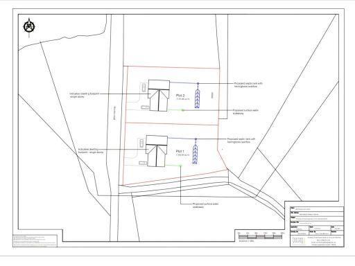
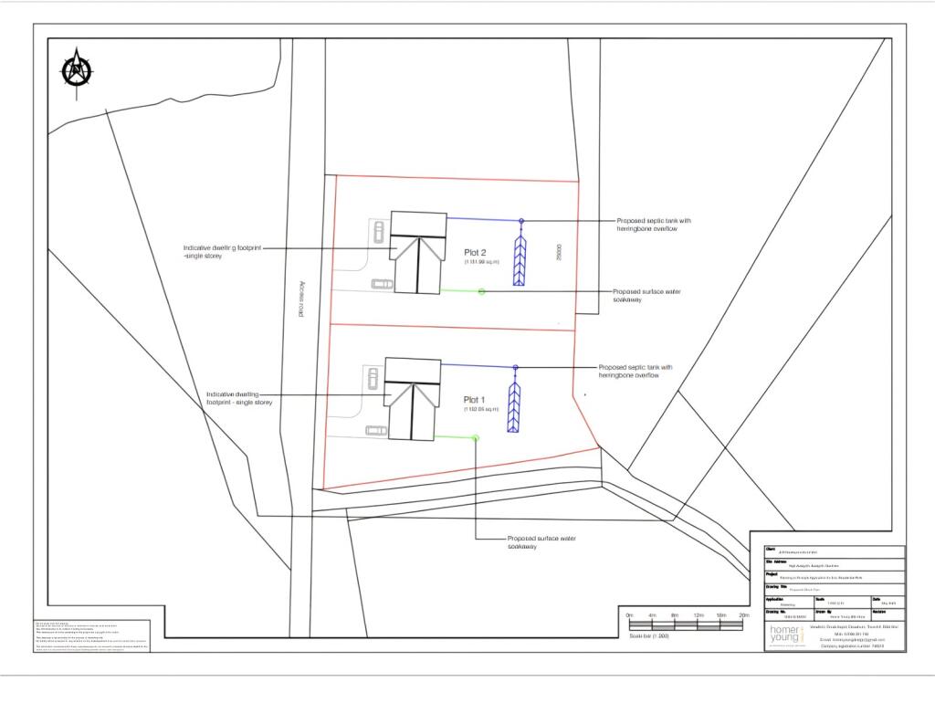
A rare elevated building plot in Auldgirth with outline planning recently approved (Ref: 24/2385/PIP) for a luxury home. The site sits above open countryside with extensive rural views and good natural privacy — a strong canvas for a bespoke new-build. Design-and-build packages are available to simplify delivery if you prefer a turn-key route.
The location balances peaceful rural life with practical links: about seven miles from Dumfries town centre, easy access to local amenities and leisure countryside pursuits, and straightforward access to the M74 and the mainline railway. Broadband is reported as fast and mobile signal average — suitable for modern working-from-home arrangements.
Important practical points: tenure is not specified and services/systems have not been tested; purchasers should confirm utilities and access arrangements before exchange. The surrounding area is described as very deprived, which may affect resale dynamics and local funding availability. There is no flood risk recorded for the plot.
This plot will suit a developer or self-builder aiming for a high-spec rural home or a developer looking for a discreet countryside opportunity. Buyers seeking an easy, low-risk plot should allow time for due diligence on tenure, services and local planning constraints.
Plot for sale in Former School Site, Auldgirth, DG2 — £75,000 • 1 bed • 1 bath
Land for sale in Tynron, Thornhill, DG3 — £100,000 • 1 bed • 1 bath • 2800 ft²
Land for sale in New Abbey Road, Dumfries, DG2 — £130,000 • 1 bed • 1 bath
Plot for sale in Thornhill, Dumfries, DG3 4AD, DG3 — £90,000 • 4 bed • 1 bath • 11840 ft²
Land for sale in Plot of Land at Old Moss Side, Dunscore, Dumfries, DG2 0SY, DG2 — £115,000 • 1 bed • 1 bath
Plot for sale in Low Farthingwell, Coldside Road, DG2 — £420,000 • 1 bed • 1 bath






















