**Standout Features:**
- Licensed 5-bedroom HMO with established income
- Gross rental yield of approximately 6%
- Prime East Oxford location near amenities and universities
- Low void rates in a high-demand rental market
- Pre-existing, grandfathered HMO use in Article 4 area
- Rear garden and traditionally styled Victorian architecture
**Summary:**
This is an exceptional investment opportunity in the heart of East Oxford. This licensed 5-bedroom HMO generates a steady income of £3,400 per month, providing a substantial gross yield of around 6%. Ideal for investors, the property sits in a well-established and highly sought-after area, ensuring low vacancy periods and consistent demand from both students and professionals alike.
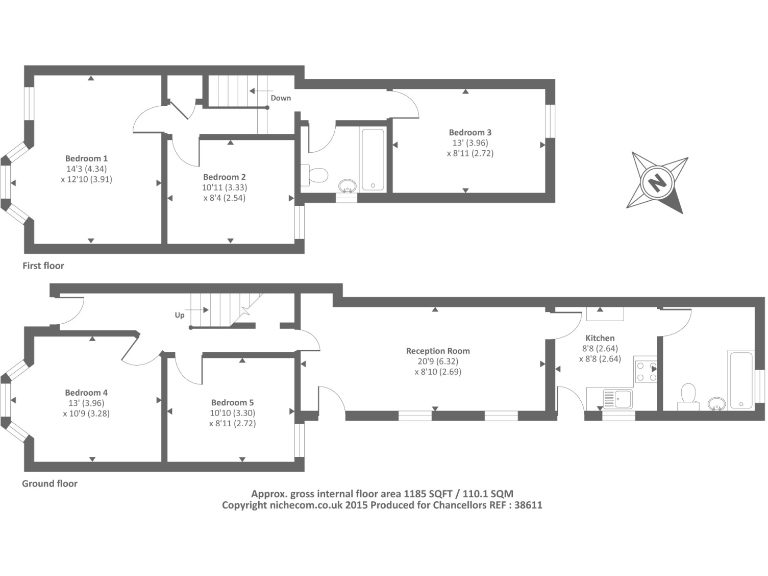
With grandfathered HMO status under the local Article 4 designation, you can take immediate advantage of this compliant investment without delays from new licensing applications, increasing its long-term value. The property's layout includes a welcoming entrance hall, reception room, kitchen, two bathrooms, and five spacious bedrooms, alongside a quiet rear garden for tenants to enjoy.
This property is chain-free and primed for a seamless transition, making it a rare turn-key investment opportunity in an area renowned for its rental potential. Don't miss out on the chance to secure a strong return in a cosmopolitan neighborhood near Oxford Brookes University and vibrant Cowley Road amenities. With excellent mobile and broadband connectivity, your future tenants will appreciate the convenience of living in this bustling area.
5 bedroom semi-detached house for sale in East Oxford, Oxford, OX4 — £650,000 • 5 bed • 2 bath • 1453 ft²
3 bedroom terraced house for sale in St. Marys Road, Oxford, OX4 — £550,000 • 3 bed • 1 bath • 1299 ft²
4 bedroom apartment for sale in Hurst Street, Oxford, Oxfordshire, OX4 — £525,000 • 4 bed • 2 bath • 1316 ft²
6 bedroom terraced house for sale in Abingdon Road, Oxford, OX1 — £540,000 • 6 bed • 2 bath • 1652 ft²
4 bedroom terraced house for sale in New Hinksey, Oxford, OX1 — £495,000 • 4 bed • 2 bath • 979 ft²
4 bedroom flat for sale in East Oxford, Oxford, OX4 — £525,000 • 4 bed • 2 bath • 1356 ft²














































