Established rental income close to Cowley Road and Oxford city centre.
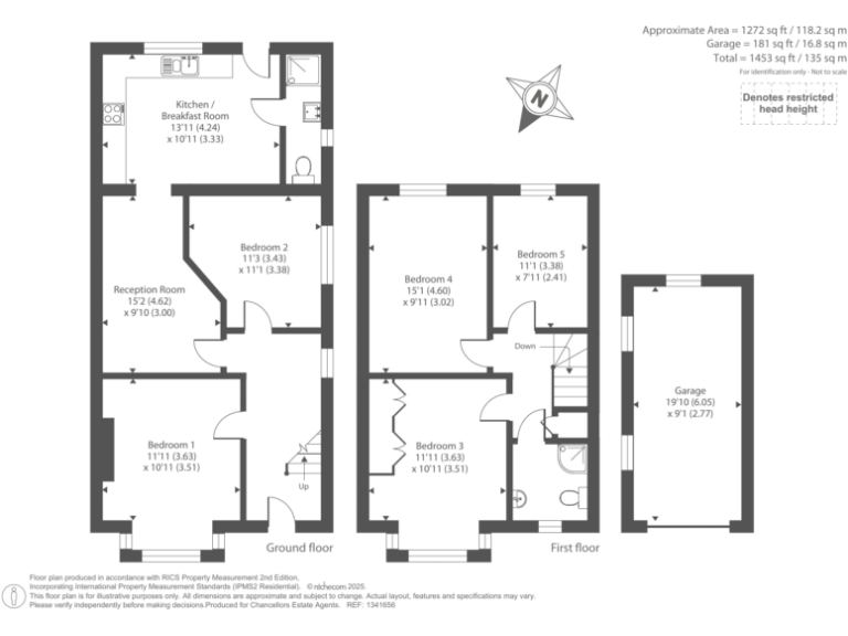
Licensed five-bedroom HMO with immediate income
A licensed five-bedroom HMO in East Oxford offered with an established income and immediate tenant occupation. The property sits 1.3 miles from Oxford city centre, close to Cowley Road’s shops and transport, making it highly desirable to students and young professionals. Current rent is £3,275 pcm, rising to £3,325 pcm next year, giving a gross yield over 6.85% on the asking price.
The house retains Edwardian character — high ceilings, bay windows and generous room proportions — and includes a private driveway, detached garage and a substantial rear garden. Practical features include double glazing (fitted after 2002) and gas central heating with a boiler and radiators. There is potential to add value by converting the loft (subject to planning) or by targeted refurbishment to increase net returns.
Important considerations: the property is in an Article 4 area (existing HMOs are protected, but new HMOs require consent), and the neighbourhood records higher crime and local deprivation indices. The building is solid-brick with no known wall insulation (assumed), so energy-efficiency improvements may be needed. Overall size is described as small internally despite a decent plot, and the layout includes two bathrooms for five bedrooms, which investors should factor into management and maintenance costs.
4 bedroom flat for sale in East Oxford, Oxford, OX4 — £525,000 • 4 bed • 2 bath • 1356 ft²
5 bedroom semi-detached house for sale in Headington, Oxford, OX3 — £600,000 • 5 bed • 1 bath • 1162 ft²
6 bedroom terraced house for sale in Iffley Road, Oxford, Oxfordshire, OX4 — £1,195,000 • 6 bed • 2 bath • 1561 ft²
4 bedroom terraced house for sale in New Hinksey, Oxford, OX1 — £475,000 • 4 bed • 2 bath • 979 ft²
5 bedroom end of terrace house for sale in East Oxford, Oxford, OX4 — £700,000 • 5 bed • 2 bath • 1259 ft²
5 bedroom semi-detached house for sale in Headington, Oxford, OX3 — £575,000 • 5 bed • 1 bath • 1011 ft²










































































































