BB7 9HP - Barn conversion for sale in Sabden, Ribble Valley, BB7

View on Property Piper

Barn conversion for sale in Sabden, Ribble Valley, BB7

Summary - LOWER WHINS SABDEN CLITHEROE BB7 9HP

1 bed 1 bath Barn Conversion

Large stone barn with full planning permission and expansive grounds in Sabden.
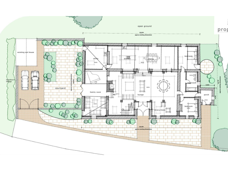
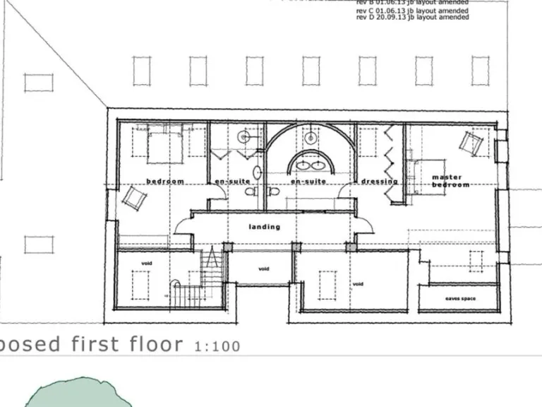
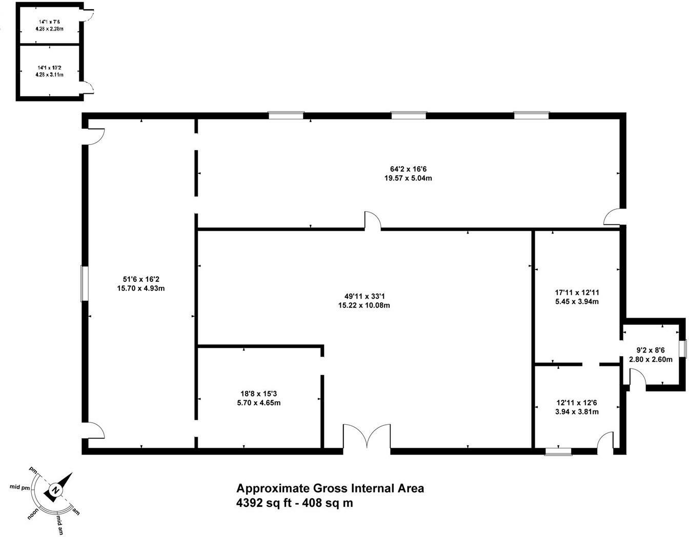
Full planning permission for conversion into a ~6,750 sq ft residential dwelling
Set on the edge of Sabden, Whins Barn is an exceptionally large stone barn offering a rare canvas for a spacious countryside home. The building benefits from full planning permission (Ribble Valley Ref. 3/2013/0842) and a certificate of lawfulness confirming development has commenced (Ref. 3/2017/0078), simplifying the path to conversion into a substantial residence of around 6,750 sq ft. Its elevated, quiet position delivers wide open views and direct access to village amenities a short stroll away.

The site includes substantial gardens and the option to purchase up to a further 78 acres of paddock land by separate negotiation, appealing to families, equestrian buyers or smallholding projects. Mains water and electricity are connected; however buyers should note that a compliant private drainage system will be required as part of the conversion. A private track and gated entrance provide seclusion but do mean responsibility for access maintenance.

This is a renovation-led opportunity: the barn is traditional stone with period character but shows signs of dereliction and will require significant works and upgrades to complete the approved conversion. The existing single-bedroom arrangement reflects current condition rather than planned layout. There is scope to amend the approved plans (subject to further permissions) if a different internal arrangement is preferred.

In summary, Whins Barn suits buyers seeking a major project in a very affluent, low-crime rural area with excellent connectivity (fast broadband, strong mobile signal) and excellent local schools. The finished property would combine character stonework with modern, energy-efficient living, but prospective purchasers should budget for conversion costs, private drainage installation and any service upgrades.

Property Details

Brochure Descriptions

Image Descriptions

Floorplan Description

Rooms

Textual Property Features

Target Audience

AI Tags

Detected Visual Features

Nearby Schools

Nearest Bars And Restaurants

,,,,}

Nearest General Shops

,,}

Nearest Grocery shops

,,}

Nearest Supermarkets

,,}

Nearest Religious buildings

,,}

Nearest Medical buildings

,,,}

Nearest Leisure Facilities

,,,,}

Nearest Tourist attractions

,,}

Nearest Train stations

,,,,}

Nearest Bus stations and stops

,,,,}

Nearest Hotels

,,}

Tags

Local Market Stats

AirBnB Data

Similar Properties

Meta

High Res Images

Compatible Images

Low res Images

Thumbnails

Raw Images

High Res Floorplan Images

Compatible Floorplan Images

Low res Floorplan Images

FloorplanImages Thumbnail

Raw Floorplan Images