BB7 9PT - House for sale in Knowles Brow, Hurst Green, Near Clitheroe…

View on Property Piper

House for sale in Knowles Brow, Hurst Green, Near Clitheroe, Lancashire, BB7

Summary - HALL BARN COTTAGE, KNOWLES BROW BB7 9PT

1 bed 1 bath House

**Key Features:**
- Substantial detached stone barn measuring approximately 7,000 sqft
- Approved planning permission for conversion into 3 residences (1 x 4 bed, 1 x 3 bed, 1 x 2 bed)
- Option to convert into a single expansive family home
- Beautiful countryside setting with views over the Ribble Valley
- Close proximity to the prestigious Stonyhurst College and Hurst Green village
- Freehold tenure

Discover a rare and exceptional development opportunity with this expansive 7,000 square foot stone-built barn located in the idyllic setting of Hurst Green. Surrounded by lush countryside and commanding stunning views over the Ribble Valley, this property possesses immense potential for conversion into three unique residences or a magnificent family home that fits your vision. Nestled near Stonyhurst College and various amenities in Clitheroe, Whalley, and Longridge, it promises both privacy and convenience.

While the barn is currently in a condition requiring renovation, its character and spacious layout invite creative possibilities for those looking to invest in a truly distinctive property. With its low-crime area and access to highly rated local schools, this location is ideal for families and investors alike. Seize the opportunity to create your own countryside retreat today; properties like this are exceptionally rare!

Property Details

Brochure Descriptions

Image Descriptions

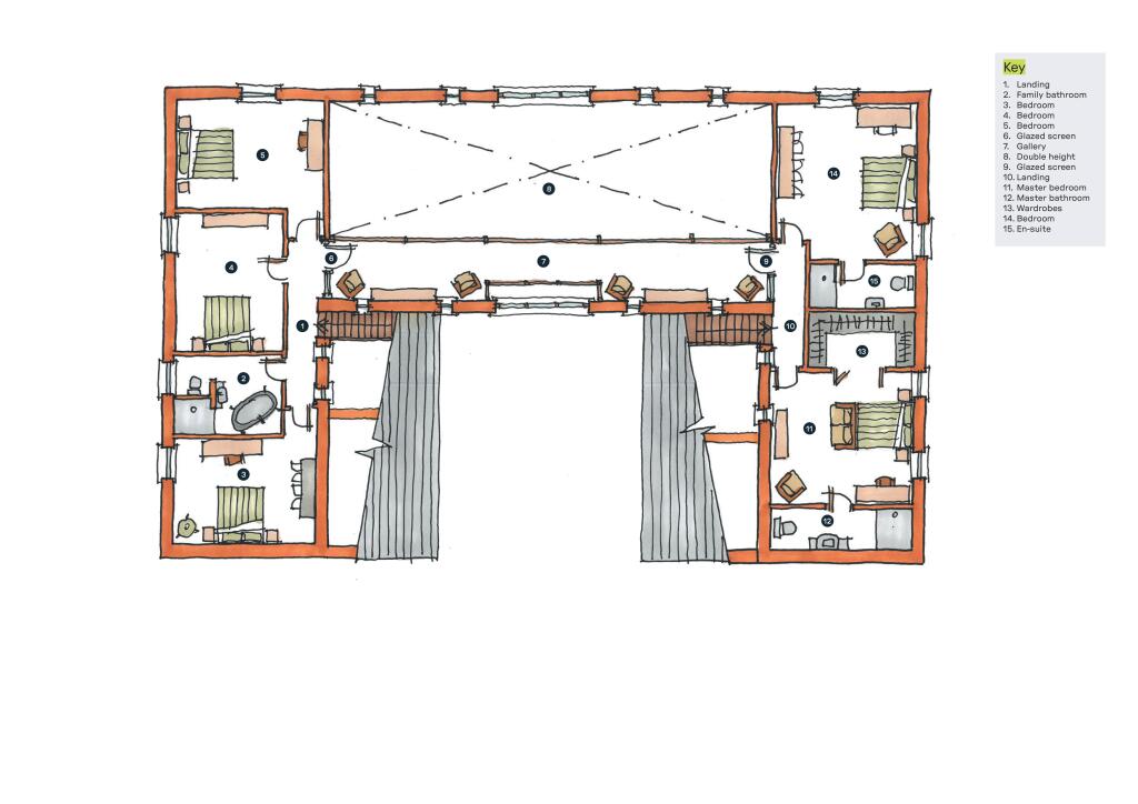
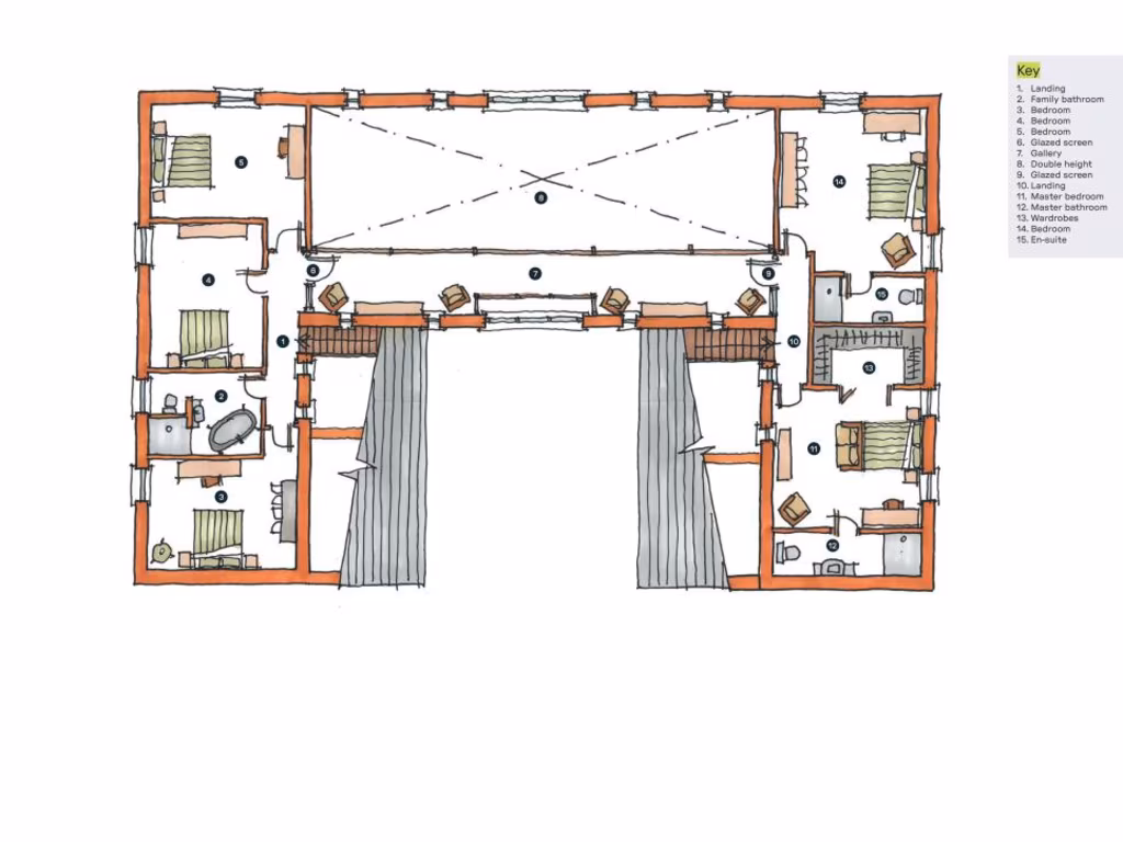
Floorplan Description

Rooms

Textual Property Features

Detected Visual Features

Nearby Schools

Nearest Bars And Restaurants

,,,,}

Nearest General Shops

,,}

Nearest Grocery shops

,,}

Nearest Supermarkets

,,}

Nearest Religious buildings

,,}

Nearest Medical buildings

,,,}

Nearest Leisure Facilities

,,,,}

Nearest Tourist attractions

,,}

Nearest Train stations

,,,,}

Nearest Bus stations and stops

,,,,}

Nearest Hotels

,,}

Tags

Local Market Stats

Similar Properties

Meta

High Res Images

Compatible Images

Low res Images

Thumbnails

Raw Images

High Res Floorplan Images

Compatible Floorplan Images

Low res Floorplan Images

FloorplanImages Thumbnail

Raw Floorplan Images