Chain-free period home with extension potential near university and hospital.
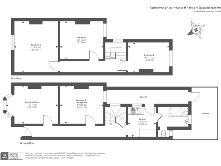
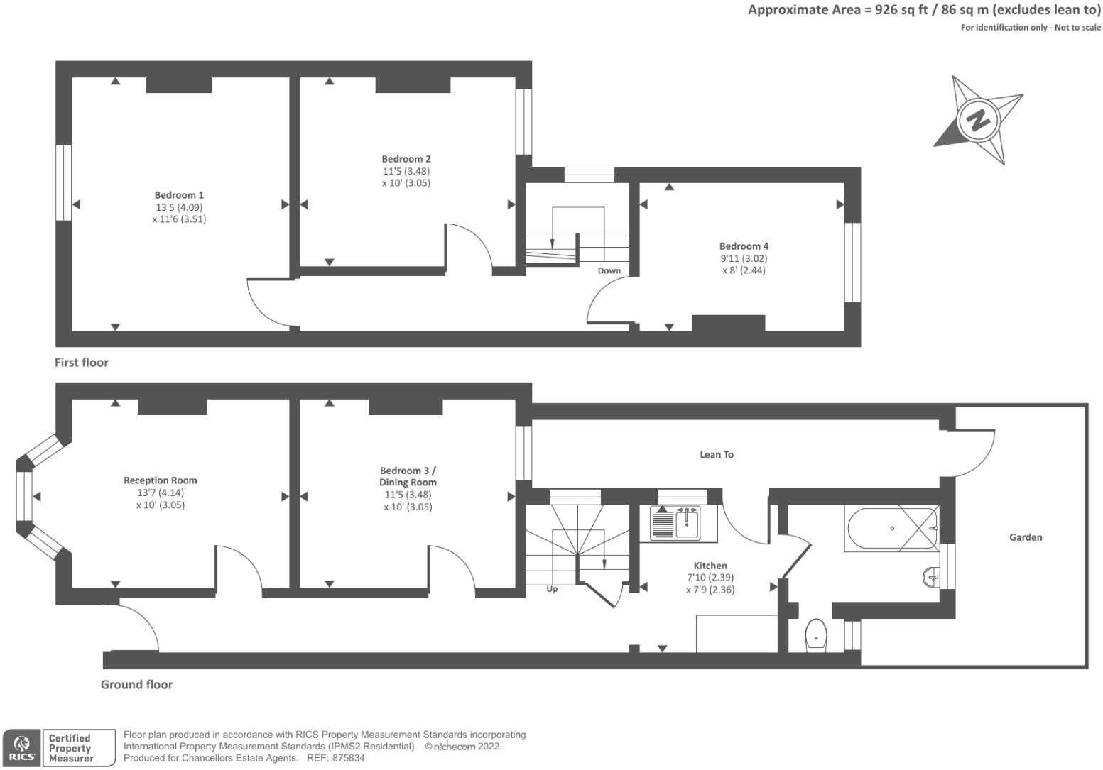
- Three separate bedrooms, two reception rooms
- Sold with no onward chain
- Planning permission granted to extend
- Requires full modernisation throughout
- Enclosed rear garden, small plot
- Solid brick walls likely without insulation
- Single bathroom; layout suited to sharers
- Located near university and hospital, strong rental demand
A three-bedroom Victorian mid-terrace located in East Reading, close to the University and Royal Berkshire Hospital. The house is chain-free and offers two separate reception rooms, a ground-floor bathroom and an enclosed rear garden — a practical layout for sharers or a family alike.
The property requires full modernisation but comes with granted planning permission to extend, creating clear scope to increase living space and rental or resale value. Period features such as a bay window and red brick façade provide character that can be sensitively restored.
Practicalities are straightforward: freehold tenure, mains gas heating with a boiler and radiators, double glazing (installed before 2002) and an average overall size of about 925 sqft. The plot is small and walls are likely solid brick with no cavity insulation, so factor-in insulation improvements during refurbishment.
Positioned in a cosmopolitan, student-oriented neighbourhood, the location is well served by transport, local amenities and schools, and presents strong rental demand or a refurbishment opportunity for owner-occupiers prepared to renovate. Noise and turnover typical of student areas should be considered when targeting occupiers or tenants.
3 bedroom terraced house for sale in Cardigan Gardens, Reading, RG1 — £320,000 • 3 bed • 2 bath • 793 ft²
3 bedroom semi-detached house for sale in Hamilton Road, Reading, Berkshire, RG1 — £400,000 • 3 bed • 1 bath • 756 ft²
3 bedroom terraced house for sale in Orts Road, Reading, RG1 — £325,000 • 3 bed • 1 bath • 888 ft²
3 bedroom terraced house for sale in Cardigan Gardens, Reading, RG1 — £325,000 • 3 bed • 1 bath • 840 ft²
2 bedroom terraced house for sale in Reading University / Hospital Area, Berkshire, RG1 — £300,000 • 2 bed • 1 bath • 669 ft²
3 bedroom terraced house for sale in Blenheim Gardens, Reading, Berkshire, RG1 — £400,000 • 3 bed • 3 bath • 818 ft²










































