Ideal starter home close to university, station and hospital amenities.
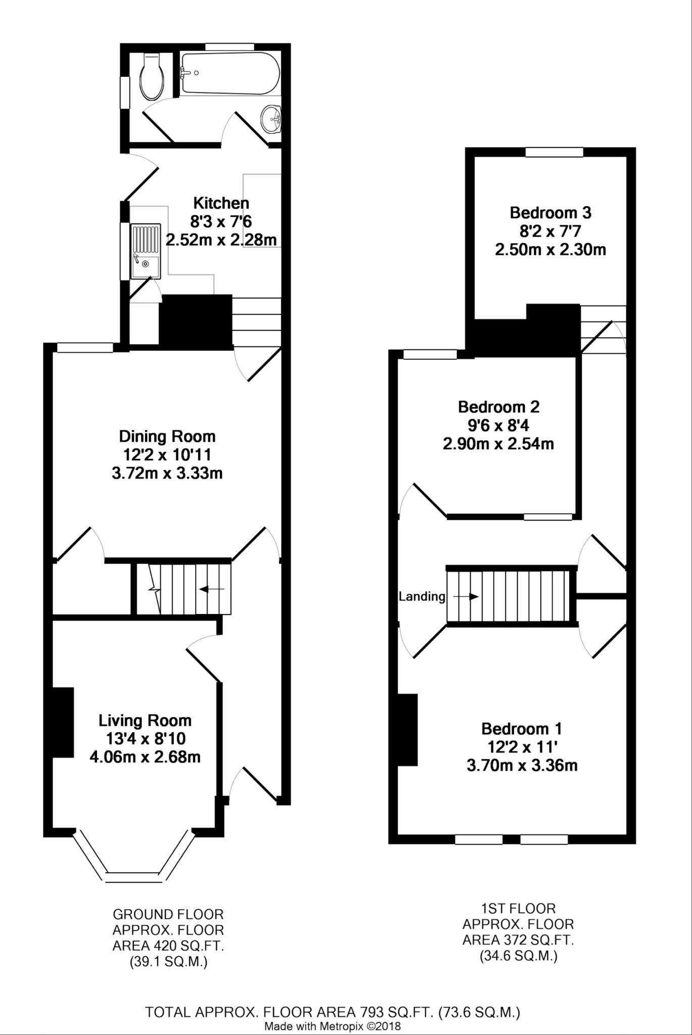
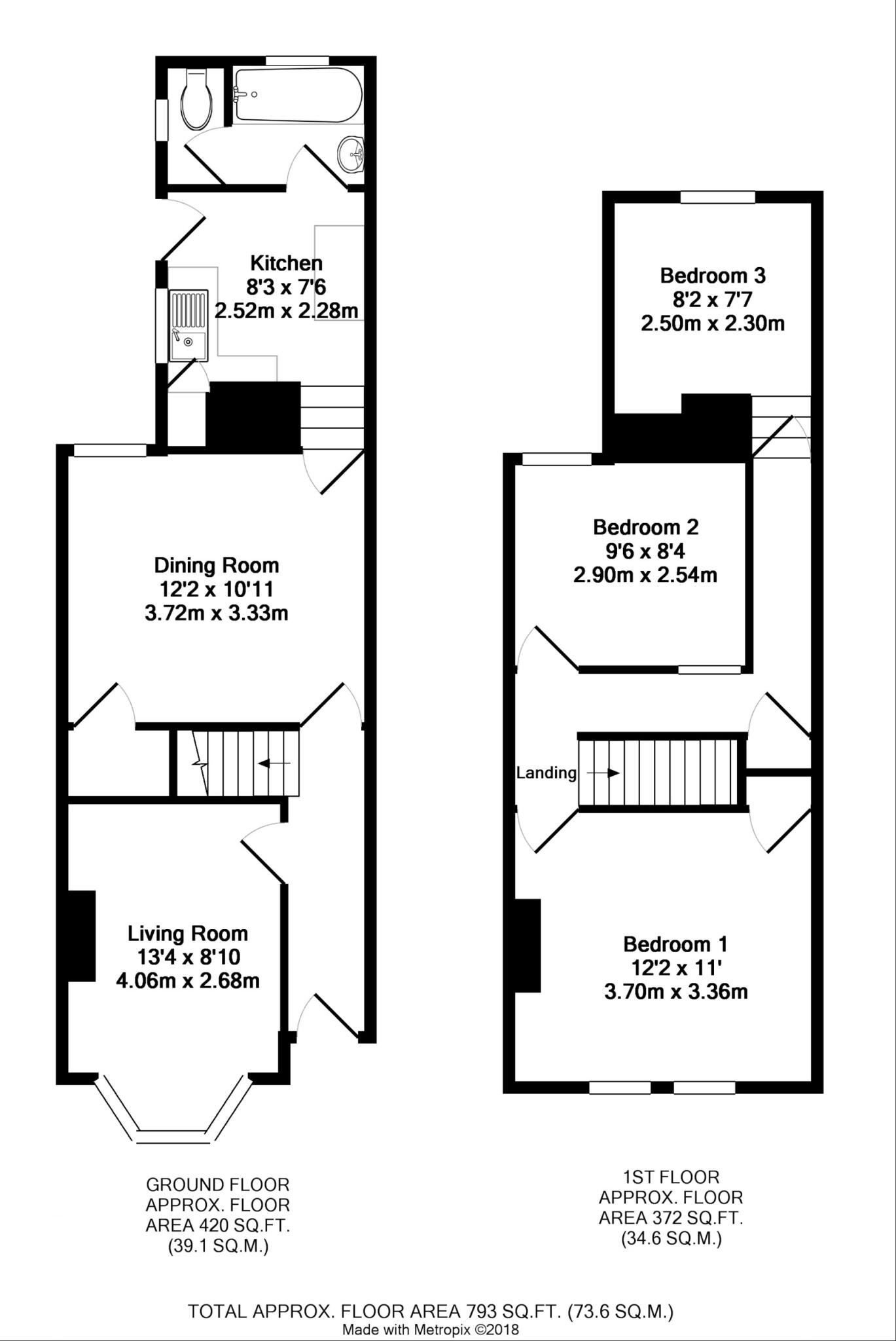
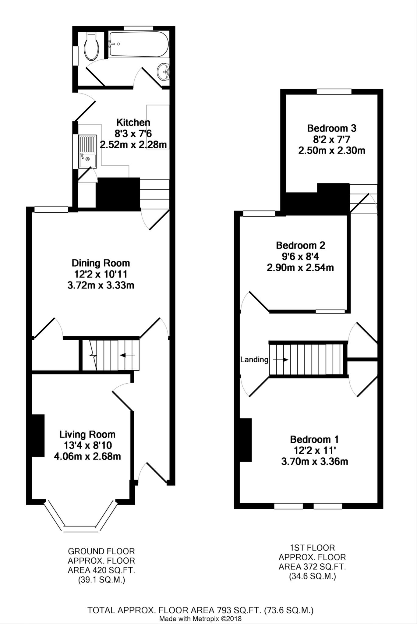
- Three bedrooms across multiple floors
- Bay-fronted Victorian terrace with sash windows
- Courtyard garden with rear access
- No onward chain, freehold
- Small overall size (approx. 793 sq ft)
- EPC D; energy improvements advised
- Single family bathroom; needs some modernisation
- On-street permit parking only
Set in the popular University area, this three-bedroom Victorian terrace offers period character and practical living over multiple floors. The house retains sash windows, fireplaces and a bay-fronted living room, and benefits from gas central heating and a private courtyard-style garden with rear access.
Offered with no onward chain, the property is a straightforward purchase for a buyer seeking a ready-to-move-in layout with scope to personalise. At about 793 sq ft the rooms are comfortable rather than generous, and the single family bathroom serves all three bedrooms.
The house requires modernisation in parts and has an EPC rating of D, so energy upgrades and cosmetic renovation would add value and comfort. Its location — a short walk to the University of Reading, Royal Berkshire Hospital, town centre and major transport links — makes it suitable for first-time buyers wanting convenience or for investors targeting student and professional lets.
Practical details: freehold tenure, on-street permit parking, low local crime, and council tax Band C. Viewings are recommended to appreciate the period features and the property's potential.
3 bedroom terraced house for sale in Cardigan Gardens, Reading, RG1 — £325,000 • 3 bed • 1 bath • 840 ft²
3 bedroom terraced house for sale in Reading, Berkshire, RG1 — £300,000 • 3 bed • 1 bath • 925 ft²
2 bedroom terraced house for sale in Foxhill Road, Reading, RG1 — £290,000 • 2 bed • 1 bath • 564 ft²
3 bedroom terraced house for sale in Orts Road, Reading, RG1 — £325,000 • 3 bed • 1 bath • 888 ft²
3 bedroom semi-detached house for sale in Eastern Avenue, Reading, Berkshire, RG1 — £550,000 • 3 bed • 1 bath • 1778 ft²
3 bedroom terraced house for sale in Filey Road, Reading, Berkshire, RG1 — £300,000 • 3 bed • 2 bath • 934 ft²






























































