Half-acre freehold plot with granted permission for a four-bedroom home near Newark.
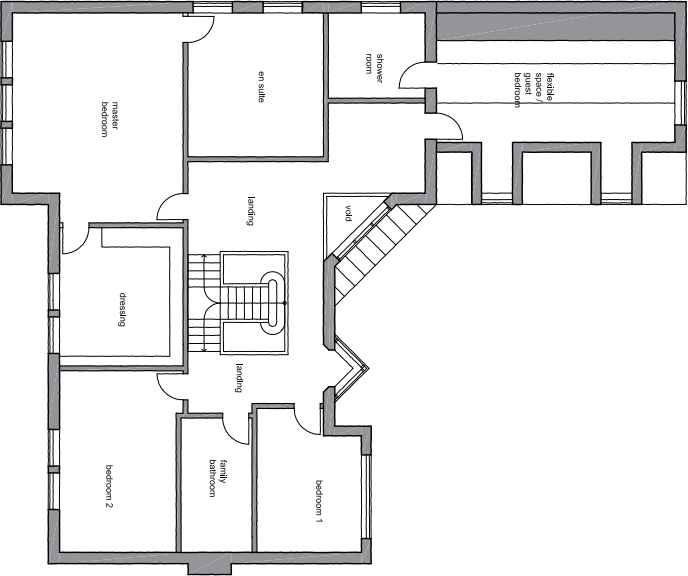
Planning permission granted for 4-bed detached house (Ref 24/01086/FUL, 8 Oct 2024)
Plot approx. half an acre; predominantly level with mature boundaries
Freehold title; integral garage shown on approved plans
Village edge location with open-field outlooks and strong privacy
No flood risk; very low local crime — attractive for families
Purchaser responsible for build costs, services and statutory connections
Boundaries shown are approximate; confirm access and limits before buying
Average mobile and broadband speeds; may affect connectivity options
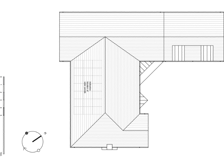
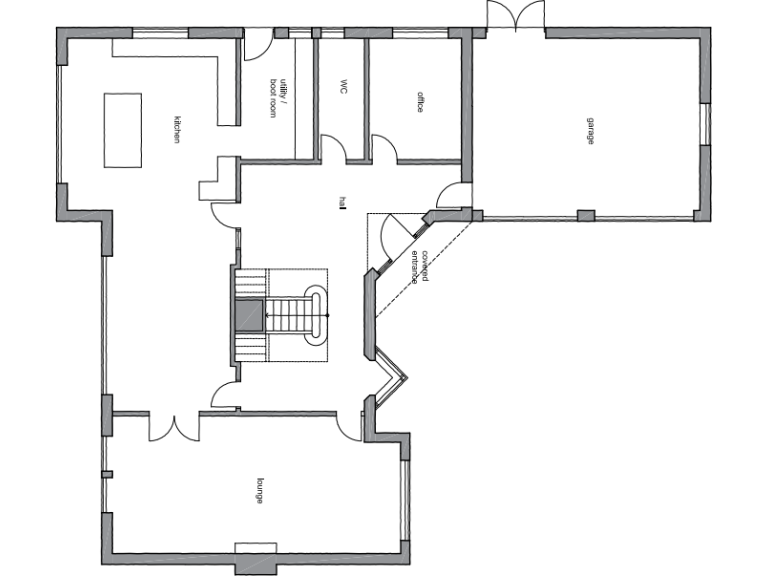
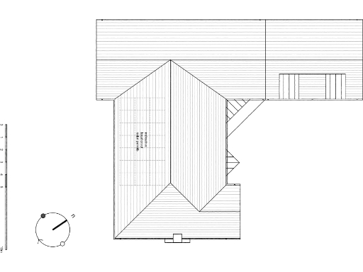
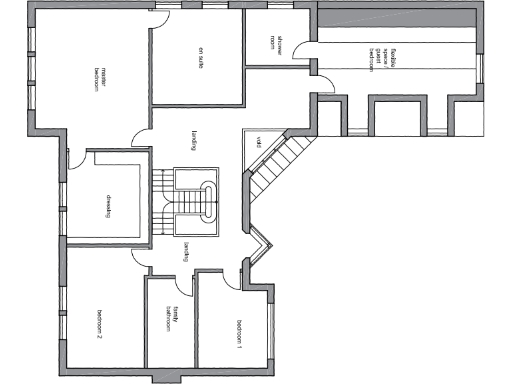
A rare development plot of approximately half an acre in Holly Court, Rolleston, offered with full planning permission (Ref: 24/01086/FUL granted 8 Oct 2024) for a large, two-storey, four-bedroom detached house with integral garage. The site sits on the edge of a popular village within an established farming community, benefitting from a rural outlook, mature boundary planting and a private setting that will suit a high-spec family home or a sale-to-build investment.
The plot is freehold and described as predominantly level and grass-covered, with mature hedgerows and trees providing screening on multiple sides. There is no identified flood risk and local crime levels are very low, supporting the appeal for family buyers or resale to owner-occupiers. Nearby schools include well-regarded primary and secondary options, and village amenities and bus services are within easy reach.
Important practical points are clear: the purchaser must complete construction and cover all associated building costs, statutory connections and any local authority conditions. The boundary illustrations are approximate and should not be relied upon; prospective buyers should confirm exact limits, access arrangements and service connections prior to purchase. Broadband and mobile signal are reported as average in the area.
This plot represents straightforward developer potential in an affluent, prospering countryside location. It is best suited to a buyer who wants a permitted-build opportunity close to Newark, whether planning to manage construction personally or to commission a contractor to deliver a high-value four-bedroom home.
Land for sale in Development Land, Nottingham Road, Bulcote, Nottingham, NG14 — £500,000 • 1 bed • 1 bath • 1800 ft²
Land for sale in Welham, Retford, DN22 — £250,000 • 1 bed • 1 bath • 2734 ft²
Plot for sale in Fosse Road, Farndon, Newark, NG24 — £200,000 • 1 bed • 1 bath • 2250 ft²
Land for sale in Rufford Road, Edwinstowe, NG21 — £650,000 • 1 bed • 1 bath
Land for sale in Development Site at Former TP Ulyett Landscaping, Main Street, Blidworth, NG21 — £275,000 • 1 bed • 1 bath • 20909 ft²
Land for sale in Gretton Close, Claypole, Newark, NG23 — £175,000 • 1 bed • 1 bath


















