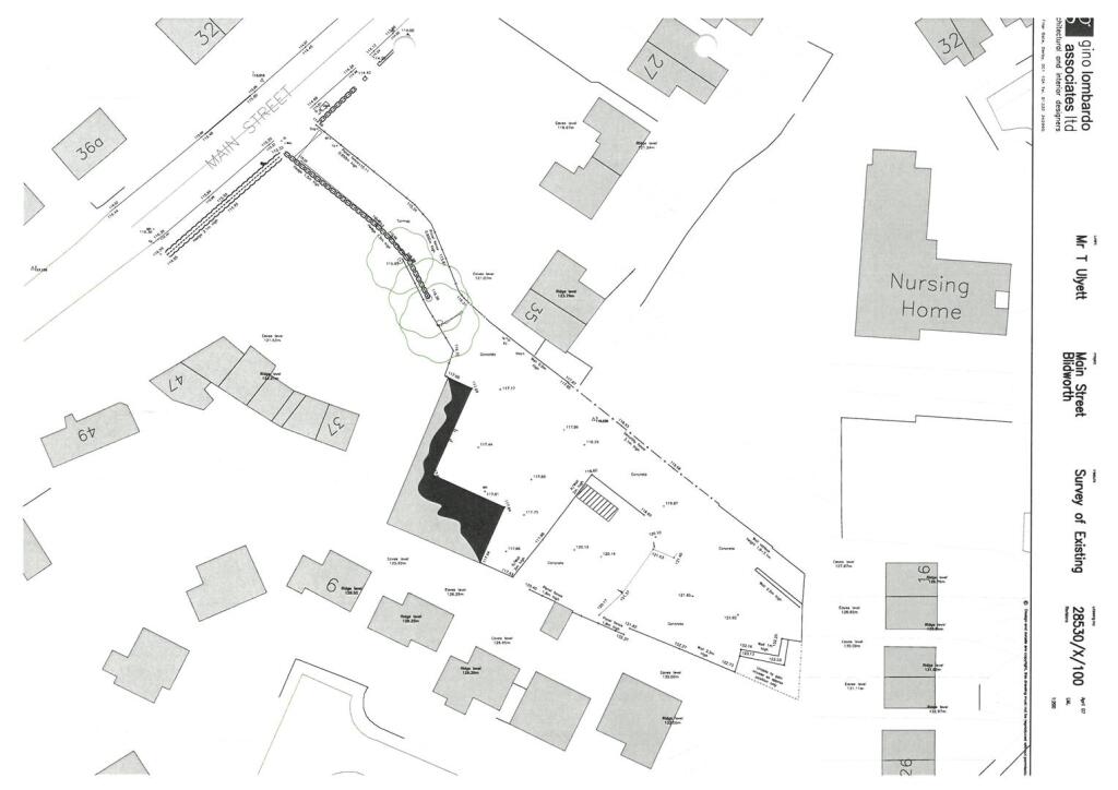
Approved consent for four family homes with large south-facing gardens.
Detailed planning consent for 4 detached houses (Ref: 22/01968/FUL)
A rare development parcel approaching 0.48 acres with detailed planning consent for four detached family homes. Permission (Ref: 22/01968/FUL) was approved by Newark and Sherwood District Council on 7 February 2023, removing an early planning hurdle and allowing immediate progression to build. Each dwelling is designed at circa 116 m2 (1,248 sq ft) over two floors with an ensuite master, three further bedrooms, and a ground-floor study.
The layout provides double-width driveways, detached single garages and south-facing rear gardens, and the site sits elevated and well back from Main Street in Blidworth’s town-fringe setting. The plot is freehold, has no recorded flood risk, good mobile and fast broadband connectivity, and lies within an affluent, low-crime area close to several ‘Good’ rated primary and secondary schools.
Buyers should note this is a cleared development site: construction, utility connections, landscaping and full build costs are the purchaser’s responsibility. Any reserved conditions attached to the approved consent must be satisfied and statutory fees paid. This opportunity suits a small-scale developer or investor wanting a near-term start on a modest four-unit development in a semi-rural village location.
Land for sale in Rufford Road, Edwinstowe, NG21 — £600,000 • 1 bed • 1 bath
Land for sale in Bleasby Road, Goverton, Nottingham, NG14 — £750,000 • 1 bed • 1 bath • 5207 ft²
Land for sale in Clipstone Drive, Forest Town, NG19 — £300,000 • 1 bed • 1 bath
Plot for sale in Rufford Road, Edwinstowe, Mansfield, Nottinghamshire, NG21 — £600,000 • 1 bed • 1 bath
Land for sale in 128 Church Street, Eastwood, Nottingham, NG16 — £100,000 • 1 bed • 1 bath • 2585 ft²
Plot for sale in Holly Court, Rolleston, Nottinghamshire, NG23 — £410,000 • 1 bed • 1 bath






















































































































