Near-ready development plot with east-facing park views and tarmac access.
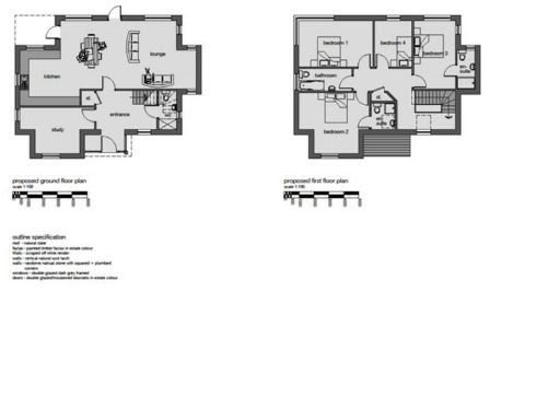
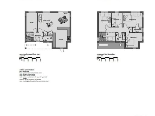
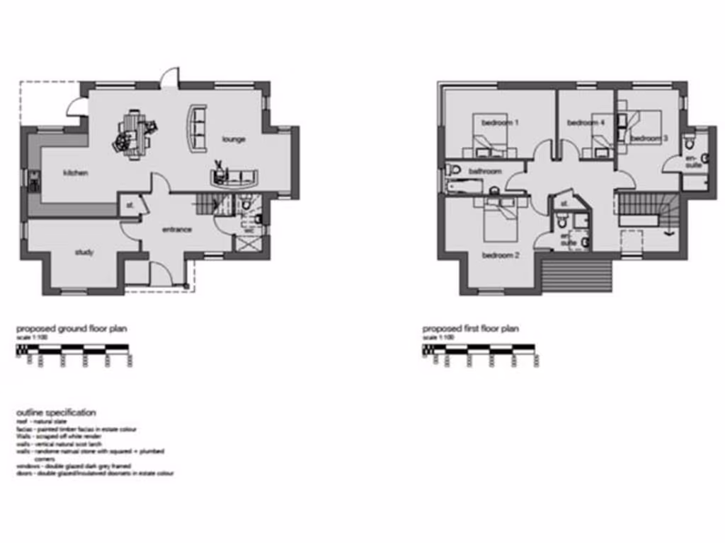
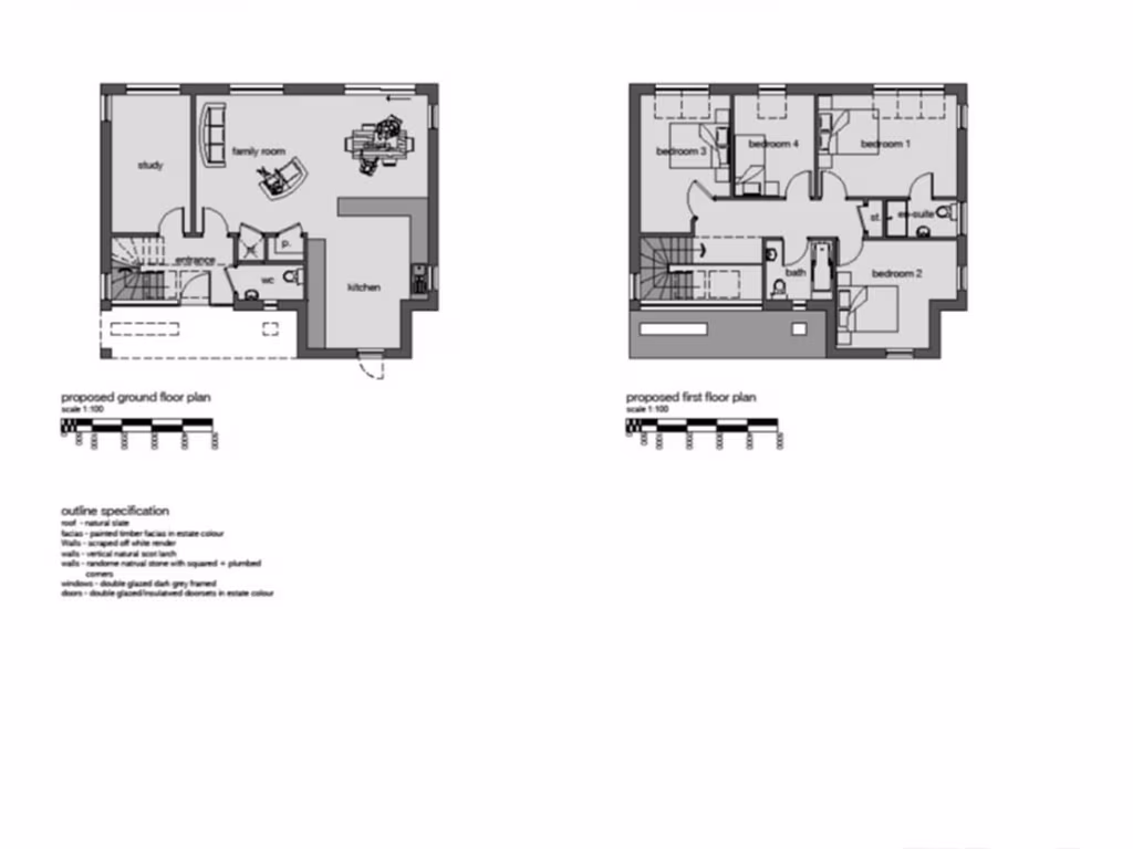
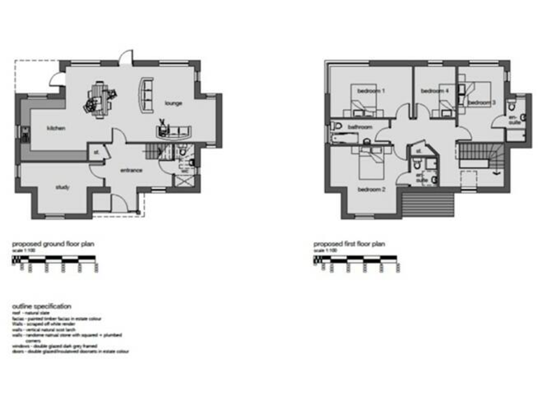
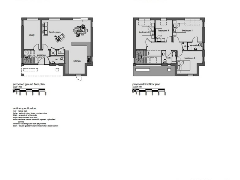
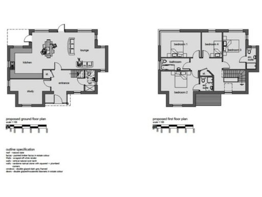
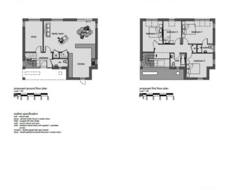
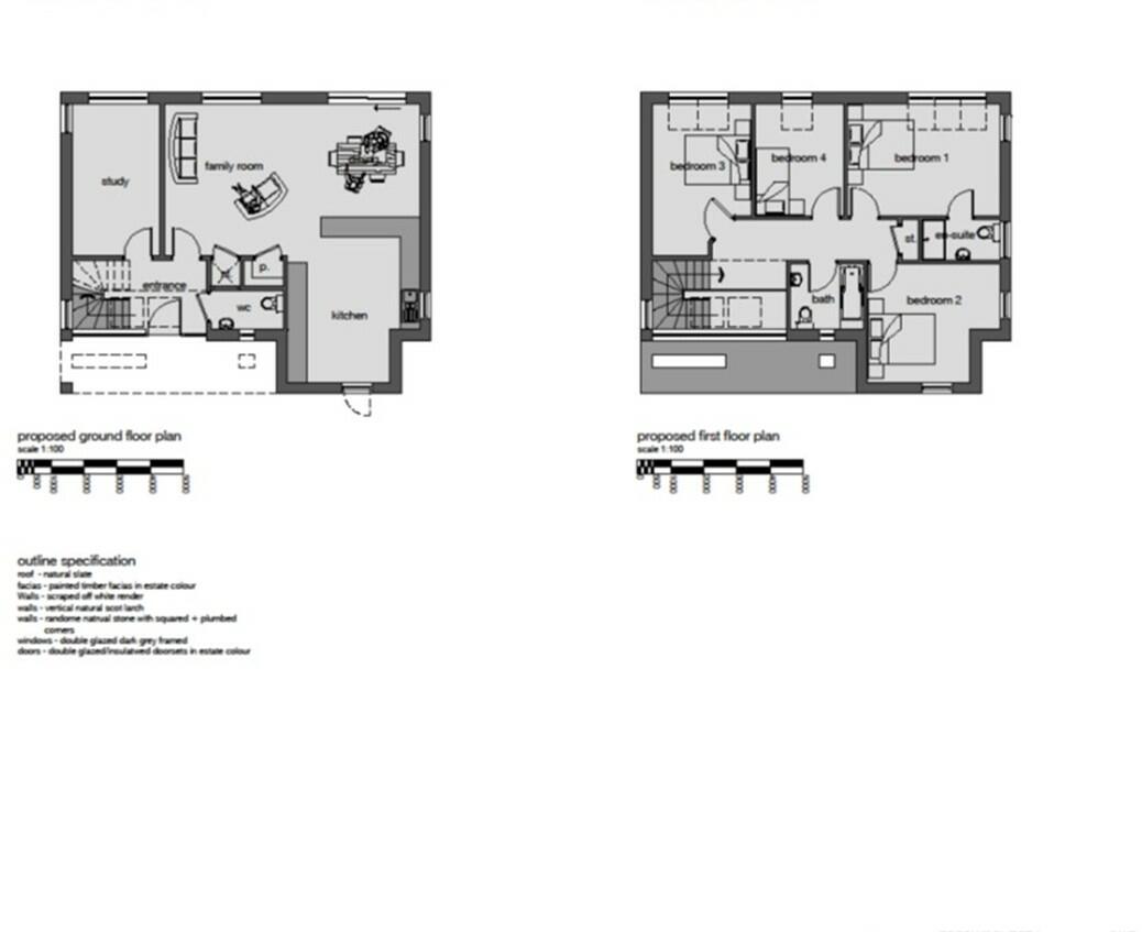
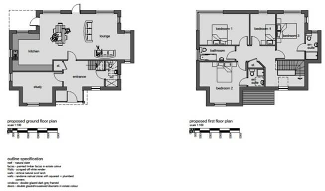
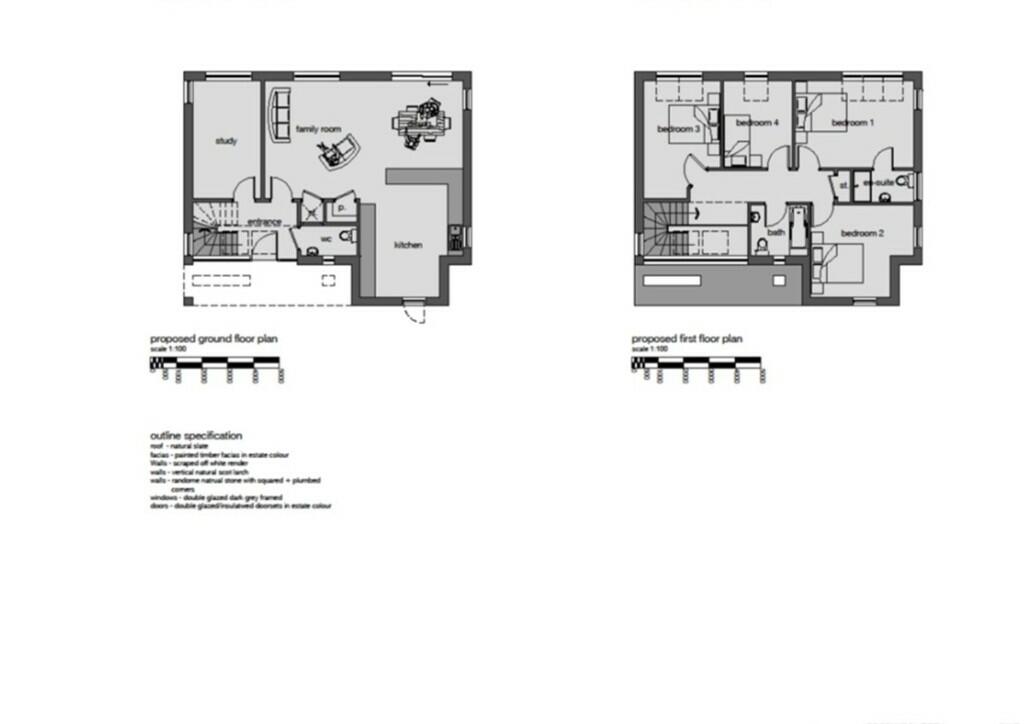
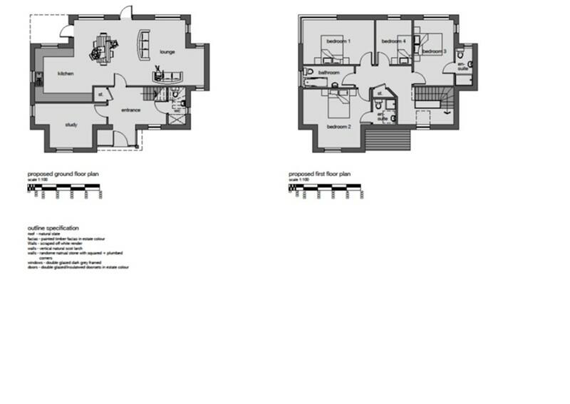
Detailed consent granted for contemporary detached house
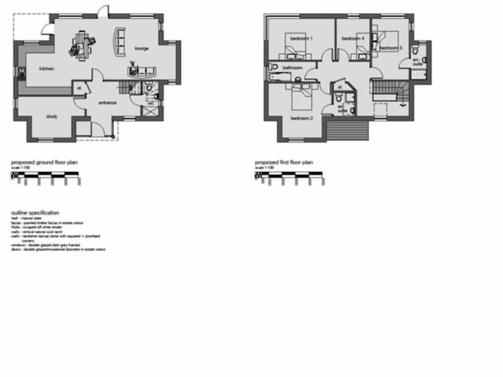
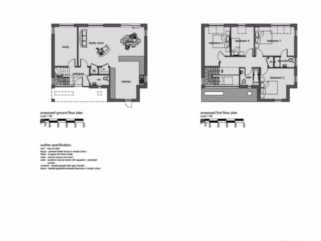
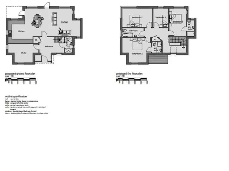
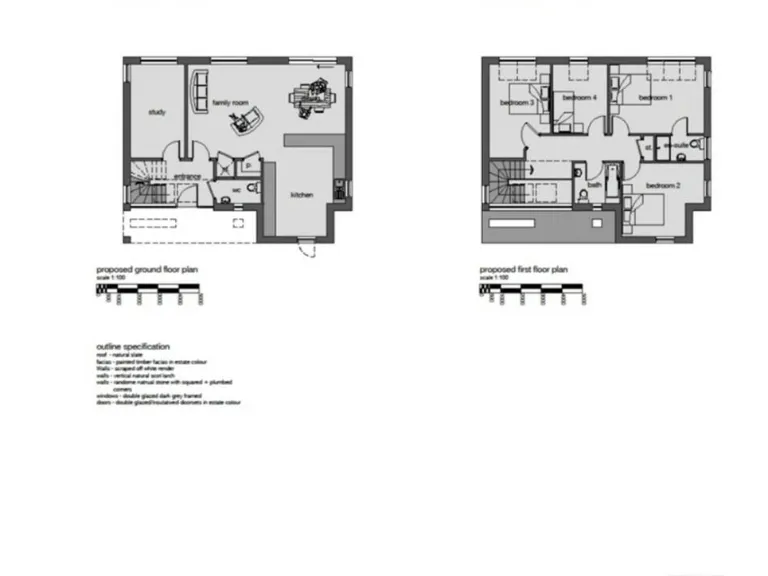
A generous east-facing residential building plot set within the grounds of The Wellnage, a Category B listed Victorian villa. Detailed consent has been granted for a contemporary detached house, so the site suits a buyer wanting a near-ready development opportunity with parkland views and tarmac access already in place.
The plot enjoys pleasant outlooks towards mature parkland and links to local recreational facilities including play areas and tennis courts. Mains electricity, water and drainage are understood to be available, and fast broadband is reported — useful practical benefits for a new build or bespoke home.
Important constraints are clear: the site sits inside the curtilage of a listed building, which will impose restrictions and require sensitive design and listed‑building considerations. Scottish Borders Council will seek developer contributions payable on receipt of a completion certificate, and purchasers must allow for legal costs, potential VAT and confirmation of services.
This opportunity will appeal to a buyer wanting to create a substantial family home in a quiet, rural town with good local facilities, or to an investor/developer able to manage listed‑building controls. Due diligence is essential — check tenure, confirm service connections, and review the detailed consent and listed‑status conditions before committing.
Plot for sale in Garden Plot 2, Wellnage, Station Road, Duns, Berwickshire, TD11 — £110,000 • 1 bed • 1 bath
Plot for sale in Residential Plot, Hardens Road, Duns, Berwickshire, TD11 — £130,000 • 1 bed • 1 bath
Plot for sale in Building Plot West Of The Arches, Reedy Loch, Duns, Berwickshire, TD11 — £165,000 • 1 bed • 1 bath • 2820 ft²
Plot for sale in Building Plot, Plot 2, Blackadder Bank, Allanton, Berwickshire, TD11 — £135,000 • 1 bed • 1 bath • 2535 ft²
Plot for sale in Plot 2 - Edington Mill, Chirnside, Duns, Berwickshire, TD11 — £95,000 • 3 bed • 1 bath • 3584 ft²
Plot for sale in Greenlaw, Duns, Scottish Borders, TD10 — £125,000 • 1 bed • 1 bath










































































