Generous development plot with consent and parkland views, ideal for self-build or small developer.
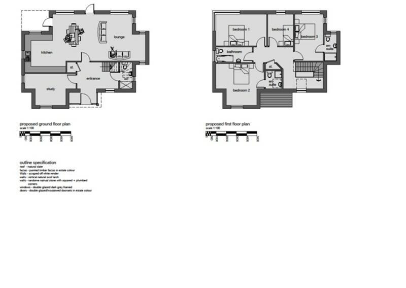
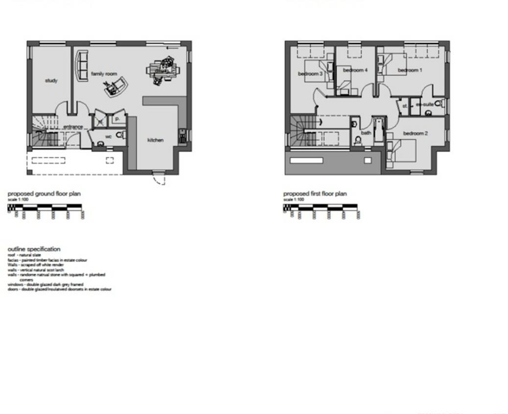
- Detailed planning permission granted (ref 22/00081/FUL) for two detached houses
- Located within grounds of Category B listed villa — restrictions likely
- East-facing position with views toward parkland and mature trees
- Tarmacadam roadside access already in situ
- Mains electricity, water and drainage understood available
- Buyer liable for developer contributions and LBTT on completion
- Tenure recorded as unknown — purchaser must verify title
- Area classified as very deprived; rural location with limited services
An attractive, generous building plot positioned within the grounds of The Wellnage, a Category B Victorian villa. The site benefits from tarmacadam roadside access already in place, an east-facing aspect and pleasant views toward nearby parkland and mature trees. Detailed planning permission (22/00081/FUL) for two detached contemporary houses was granted by Scottish Borders Council on 23 October 2023, offering a near-term route to development.
Practical provisions help reduce early risk: mains electricity, water and drainage are understood to be available and broadband speeds are reported fast. Note there is an expected requirement to pay Scottish Borders Council developer contributions on receipt of a Completion Certificate, and the purchaser will be liable for Land and Buildings Transaction Tax as usual. VAT treatment should be confirmed by any intending buyer.
Important constraints: the plot sits within the grounds of a listed building, which the selling information states “will cause difficulties” — this may restrict design, materials and construction methods and could increase consenting time and costs. Tenure is recorded as unknown and prospective purchasers must satisfy themselves on title, services and any outstanding obligations.
This plot is likely to suit a developer or self-builder seeking a rural-edge site with pre-approved consent, or a buyer wanting a bespoke house close to parkland and town amenities. The surrounding area is rural with limited local services; the location may appeal to those prioritising privacy and countryside living over immediate urban convenience.
Plot for sale in Garden Plot 1, Wellnage, Station Road, Duns, Berwickshire, TD11 — £110,000 • 1 bed • 1 bath
Plot for sale in Residential Plot, Hardens Road, Duns, Berwickshire, TD11 — £130,000 • 1 bed • 1 bath
Plot for sale in Building Plot West Of The Arches, Reedy Loch, Duns, Berwickshire, TD11 — £165,000 • 1 bed • 1 bath • 2820 ft²
Plot for sale in Building Plot, Plot 2, Blackadder Bank, Allanton, Berwickshire, TD11 — £135,000 • 1 bed • 1 bath • 2535 ft²
Plot for sale in Plot 2 - Edington Mill, Chirnside, Duns, Berwickshire, TD11 — £95,000 • 3 bed • 1 bath • 3584 ft²
Land for sale in Building Plots 1 & 2, Cranshaws, TD11 — £90,000 • 1 bed • 1 bath • 11761 ft²


























































