Generous garden, parking and extension potential (STPP) for growing families.
No onward chain — quicker sale possible
Approximately 150ft west-facing rear garden, high privacy hedging
Off-road parking for at least four cars, gated side access
Ground-floor bedroom with ensuite WC offers accessible living option
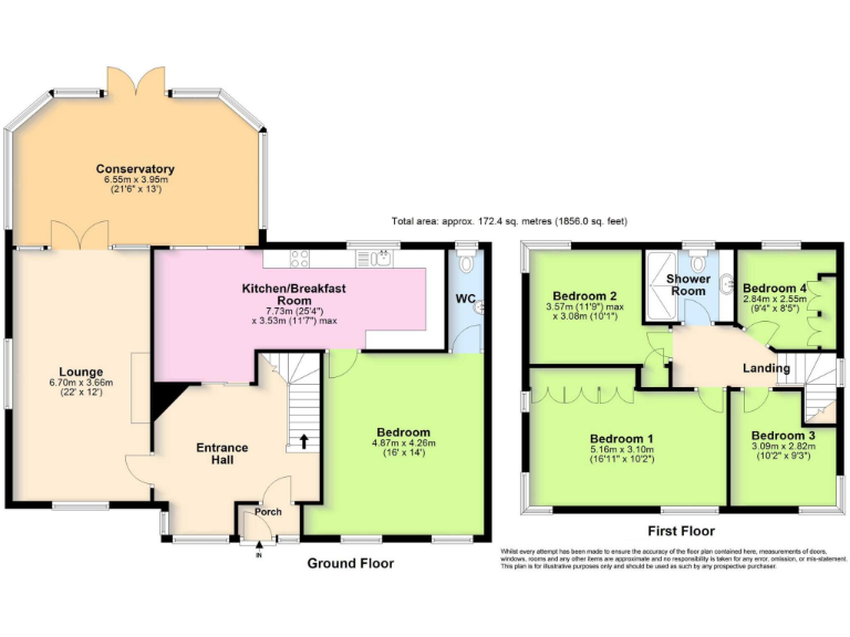
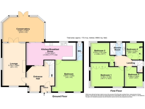
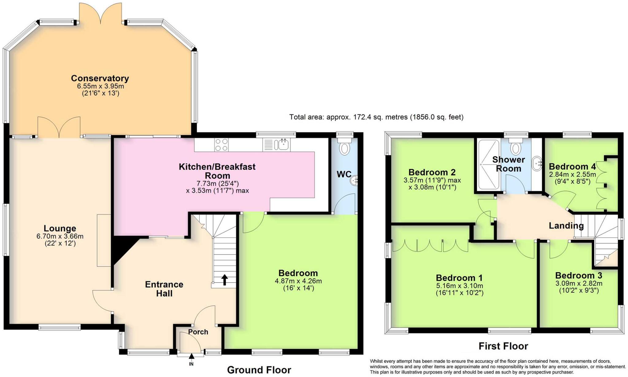
Over 25ft kitchen/breakfast room and 22ft triple-aspect lounge
Single main first-floor bathroom for four bedrooms — may need more
Double glazing installed before 2002; some updating likely required
Council Tax Band F — higher running costs to budget for
This substantial 4-bedroom detached house on Offington Lane offers generous family accommodation and a rare circa 150ft west-facing garden. The ground floor includes a large triple-aspect lounge, over 25ft kitchen/breakfast room, conservatory and a flexible ground-floor bedroom with its own WC — useful for guests or multi-generational living. Off-road parking for multiple cars and gated side access add practical convenience.
The property dates from the mid-20th century and retains character features such as exposed beams and a fireplace, but it does need updating in places. The layout and large plot present clear scope to extend or reconfigure (subject to planning), which will appeal to buyers wanting to add value and personalize the home. Heating is gas-fired central heating; windows are double glazed but were installed before 2002.
Buyers should note there is a single main first-floor bathroom serving four bedrooms, and the house is in Council Tax Band F (expensive). No onward chain simplifies purchase timing, but prospective buyers should factor in refurbishment costs and planning checks if extending. The location sits within established Offington, close to schools, local amenities and transport links into Worthing.
5 bedroom detached house for sale in Offington Lane, Worthing, BN14 — £675,000 • 5 bed • 2 bath • 1829 ft²
5 bedroom detached house for sale in Offington Drive, Worthing, BN14 — £800,000 • 5 bed • 2 bath • 2375 ft²
4 bedroom detached house for sale in The Plantation, Worthing, BN13 2AA, BN13 — £840,000 • 4 bed • 2 bath • 2456 ft²
3 bedroom detached house for sale in Poulters Lane, Worthing BN14 7SP, BN14 — £550,000 • 3 bed • 1 bath • 1249 ft²
4 bedroom detached house for sale in Offington Drive, Offington, Worthing, BN14 — £800,000 • 4 bed • 3 bath • 1970 ft²
4 bedroom detached house for sale in Goodwood Road, Worthing, BN13 — £599,500 • 4 bed • 2 bath • 1927 ft²






































































































