Light-filled living with garden, parking and solar in sought-after Merrow.
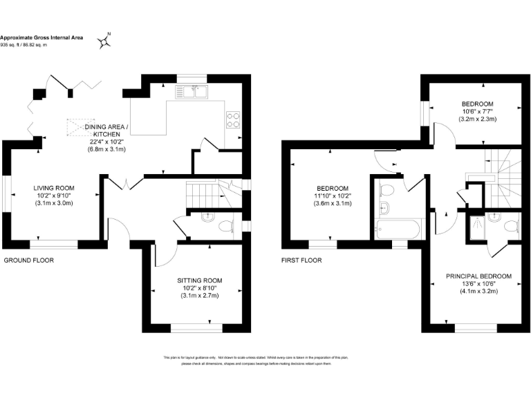
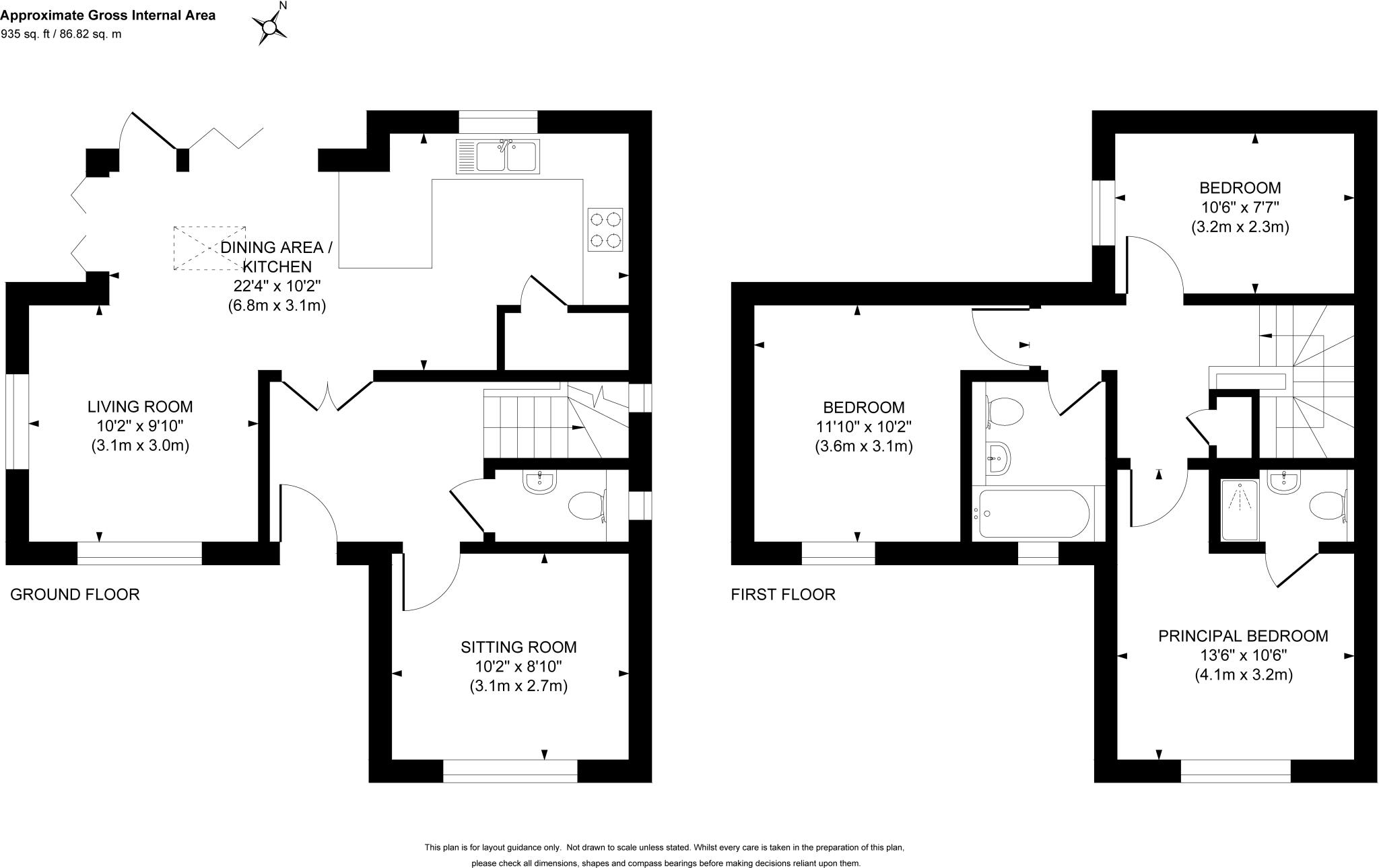
Detached three-bedroom house with en-suite and flexible living spaces
This well-presented three-bedroom detached house sits in sought-after Merrow, close to Merrow Downs and local schools. The layout prioritises open-plan living with a contemporary kitchen, bifold doors to the garden and an en-suite principal bedroom — a practical family home finished in neutral tones and modern finishes.
Energy-efficient features include solar panels and provision for ultrafast broadband, while off-street parking and a garden with an electrified shed add everyday convenience. The property’s size (approximately 935 sq ft) and flexible rooms suit families, those working from home, or couples wanting extra space.
Buyers should note an apparent discrepancy in the listing: the house is marketed as a “new build” but records indicate construction before 1900 with solid brick walls (no insulation assumed). Secondary glazing is installed, and the main heating is mains gas with boiler and radiators. Council tax is above average — factor this into ongoing costs.
Overall, this home offers modern styling and useful energy features in an affluent, low-crime area close to good schools and transport links. Prospective purchasers are advised to verify construction and insulation details and consider insulation or retrofit work if required.
3 bedroom detached house for sale in Epsom Road, Guildford, Surrey, GU1 — £900,000 • 3 bed • 2 bath • 1311 ft²
3 bedroom end of terrace house for sale in Fitzjohn Close, Guildford, Surrey, GU4 — £400,000 • 3 bed • 1 bath • 762 ft²
3 bedroom semi-detached house for sale in Great Goodwin Drive, Merrow, Guildford, Surrey, GU1 — £500,000 • 3 bed • 1 bath • 1331 ft²
1 bedroom end of terrace house for sale in Woodger Close, Guildford, GU4 — £295,000 • 1 bed • 2 bath • 494 ft²
3 bedroom link detached house for sale in Tychbourne Drive, Merrow Park, Guildford, Surrey, GU4 — £600,000 • 3 bed • 2 bath • 1121 ft²
3 bedroom end of terrace house for sale in Clayhanger, Guildford, Surrey, GU4 — £550,000 • 3 bed • 2 bath • 918 ft²


















































































