Large plot, garage and scope to extend — ideal for buyers seeking renovation potential.
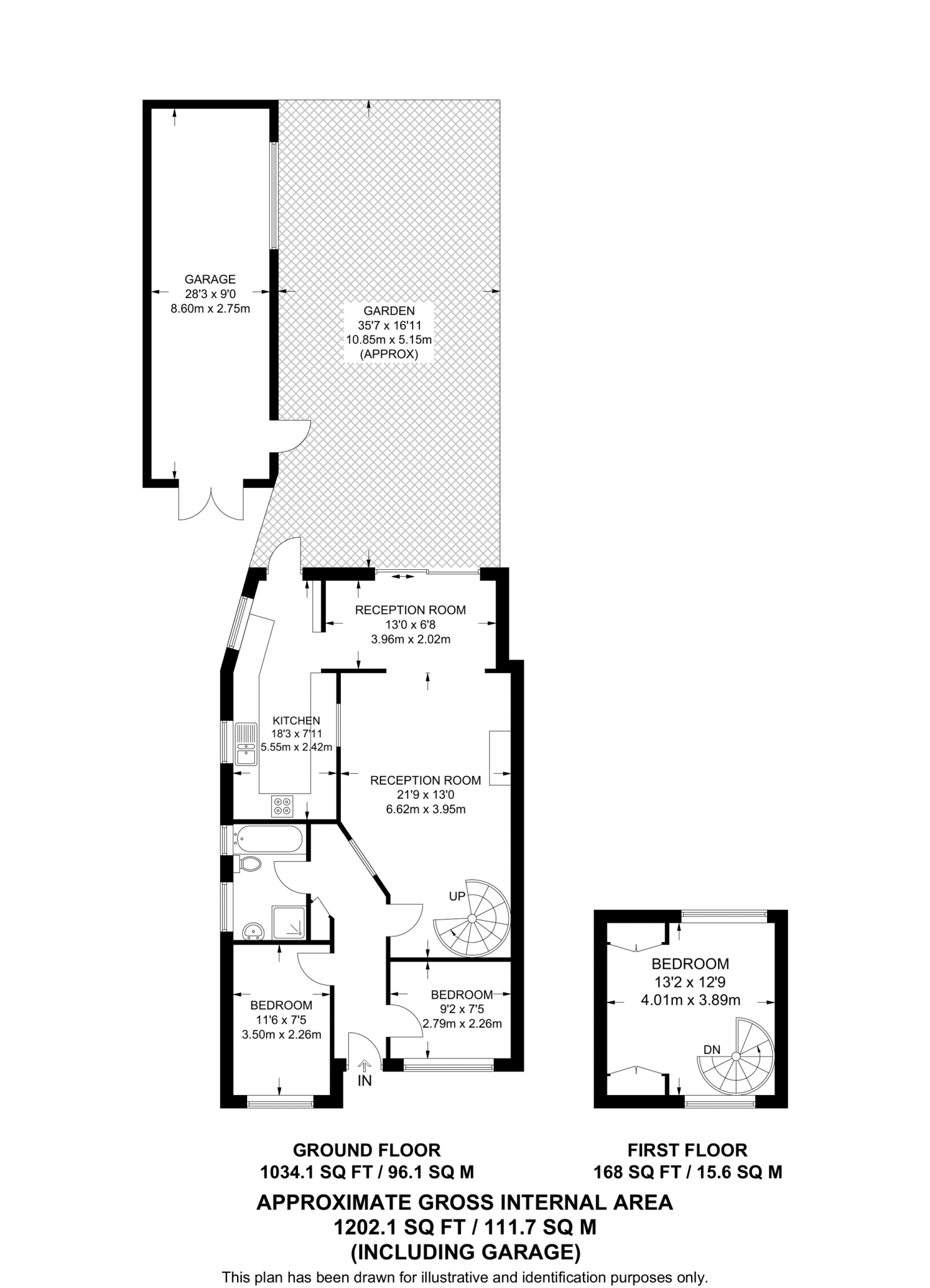
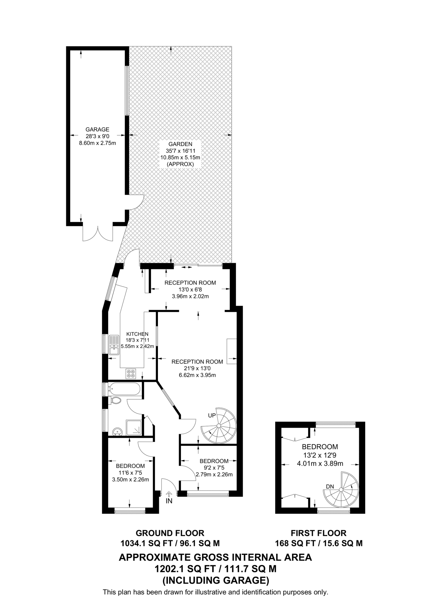
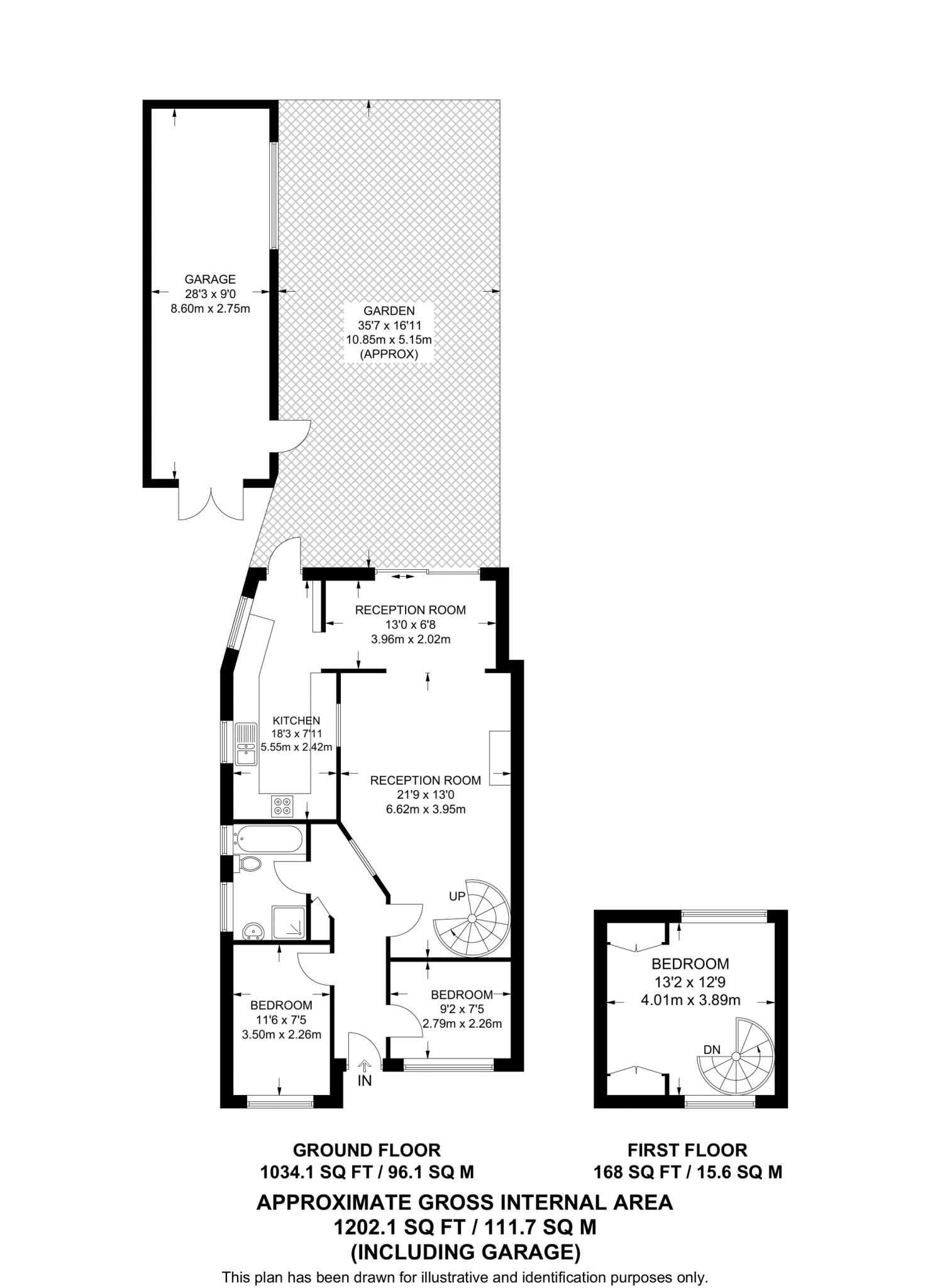
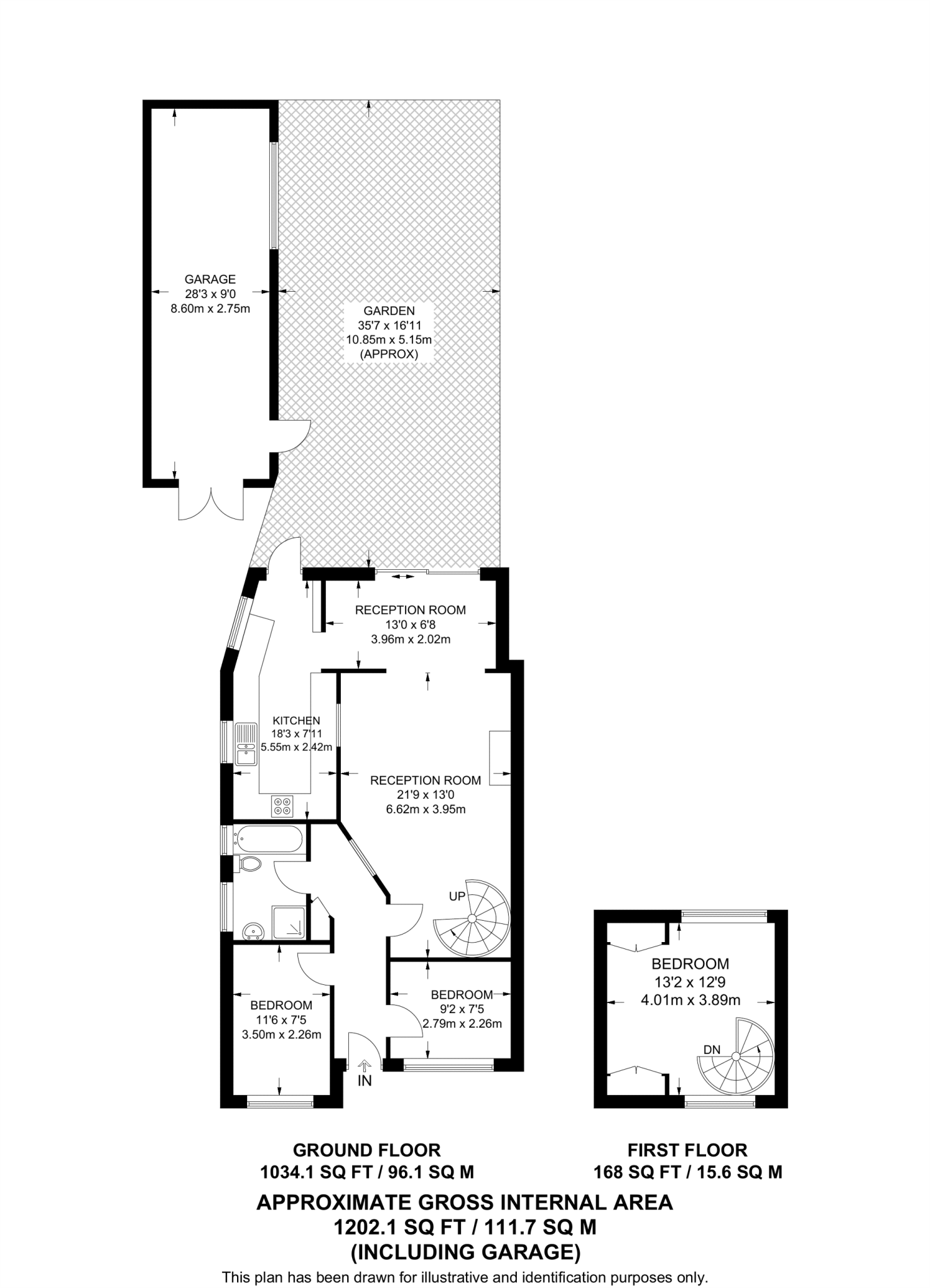
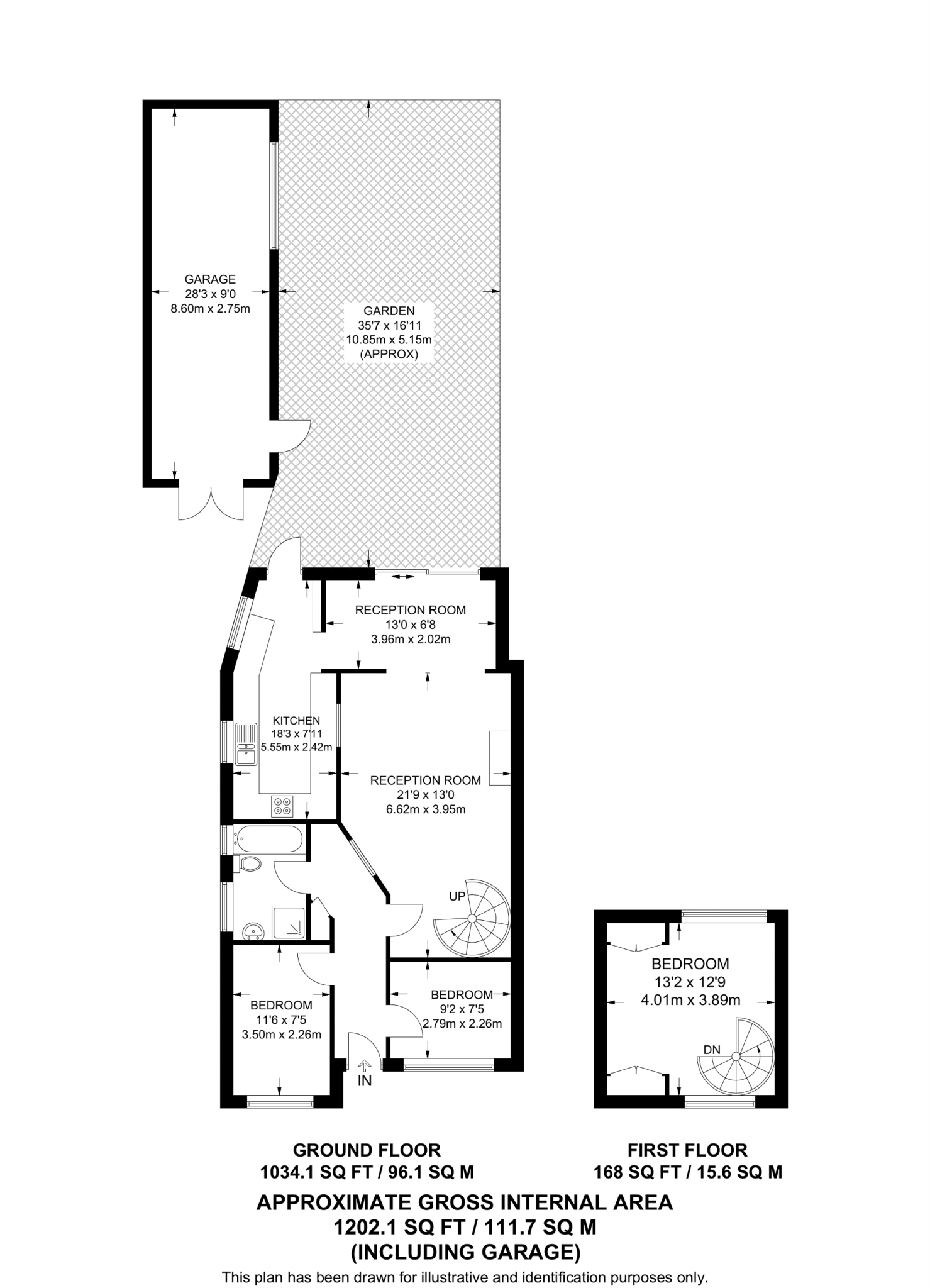
- Three bedrooms with two reception rooms and separate kitchen
- Private rear garden and decent plot with extension potential STPP
- Driveway plus garage providing off-street parking
- Single bathroom; likely needs modernisation and updating
- Solid brick walls assumed without insulation (energy upgrades needed)
- Built 1930s–1940s; mid-century character but dated areas
- Freehold tenure; walking distance to Northolt tube and rail
- Area shows above-average crime and higher local deprivation
A roomy three-bedroom chalet bungalow offering bright reception space, two reception rooms and a private rear garden. The property sits on a decent plot with a driveway and garage, providing useful off-street parking in a residential Northolt street. It's freehold and well positioned for Northolt Underground and National Rail, plus several well-rated local schools.
This mid-20th-century semi-detached home is presented but dated in places and will benefit from modernisation to unlock its full potential. There is one bathroom and solid-brick walls likely without cavity insulation, so buyers should budget for energy-efficiency upgrades and possible internal improvement work. The layout and plot offer substantial scope to extend, subject to planning permission.
Practical positives include mains gas central heating, double glazing (installation date unknown), excellent mobile signal and fast broadband — useful for families or home workers. Note the local context: the area has above-average crime statistics and higher deprivation measures, which may influence long-term buyers and investors.
Overall this bungalow suits a family or investor comfortable with refurbishment who wants good transport links, strong local schools and the opportunity to add value through extension and upgrading.
2 bedroom semi-detached bungalow for sale in Sandown Way, Northolt, UB5 — £525,000 • 2 bed • 1 bath • 1303 ft²
3 bedroom bungalow for sale in Alandale Drive, Pinner, HA5 — £695,000 • 3 bed • 2 bath • 1190 ft²
4 bedroom semi-detached house for sale in Wood End Lane, Northolt, UB5 — £650,000 • 4 bed • 1 bath • 1449 ft²
2 bedroom semi-detached bungalow for sale in Harewood Close, Northolt, UB5 — £500,000 • 2 bed • 1 bath • 878 ft²
3 bedroom semi-detached house for sale in Halsbury Road West, Northolt, UB5 — £600,000 • 3 bed • 1 bath • 1223 ft²
2 bedroom bungalow for sale in Beechcroft Gardens, Wembley Park, Wembley, HA9 — £625,000 • 2 bed • 1 bath • 843 ft²


















































































































































































































































































































































