Practical family home with garden, garage and strong transport links nearby.
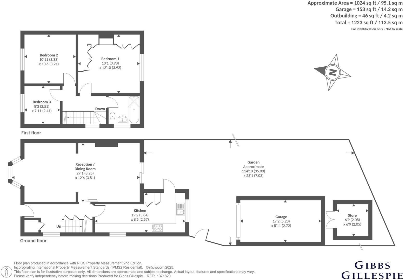
- Three bedrooms with conventional two-storey family layout
- Private rear garden and detached single garage
- Off-street parking for two vehicles on paved driveway
- Approximately 1,223 sq ft of internal space (freehold)
- Single family bathroom for three bedrooms
- Good transport links: Chiltern and Central Line nearby
- Local area records higher-than-average crime levels
- Interior may require modest updating or refurbishment
Set on a residential Northolt street, this three-bedroom semi-detached home offers practical family accommodation across two floors. The layout includes an open-plan reception/dining area, a fitted kitchen, three first-floor bedrooms and a single family bathroom — suitable for a growing family or a buy-to-let investor seeking steady rental demand.
Outside, the property benefits from a private rear garden, a detached garage and off-street parking for two vehicles accessed from the paved front driveway. The overall plot is a decent size for this house type and provides scope for modest rear or side extension subject to planning. The home is freehold and extends to approximately 1,223 sq ft of internal space.
Location is a key asset: reputable local primary and secondary schools are within easy reach, and both Northolt Park (Chiltern Line) and Northolt Underground (Central Line) stations offer practical commuter links. Broadband speeds are fast and mobile signal is excellent — helpful for home working.
Notable considerations: the property has a single family bathroom for three bedrooms and internal fittings may benefit from updating to meet contemporary tastes. The immediate area records higher-than-average crime levels, which buyers should weigh alongside the practical transport and schooling advantages. Council tax is moderate and the home is offered at £600,000.
3 bedroom semi-detached house for sale in Wood End Gardens Northolt, UB5 4QL, UB5 — £515,000 • 3 bed • 1 bath • 740 ft²
3 bedroom semi-detached house for sale in Wood End Lane, Northolt, UB5 — £550,000 • 3 bed • 2 bath • 1018 ft²
4 bedroom end of terrace house for sale in Reading Road, Northolt, UB5 — £600,000 • 4 bed • 2 bath • 1008 ft²
3 bedroom semi-detached house for sale in Petts Hill, Northolt, UB5 — £575,000 • 3 bed • 1 bath • 843 ft²
3 bedroom semi-detached house for sale in Newnham Gardens, Northolt, UB5 — £500,000 • 3 bed • 1 bath • 885 ft²
3 bedroom semi-detached house for sale in 69 Danemead Grove, UB5 4NY, UB5 — £560,000 • 3 bed • 1 bath • 1020 ft²






















































































