Well-located family home near stations with parking and garden.
Four double bedrooms with ample built-in storage
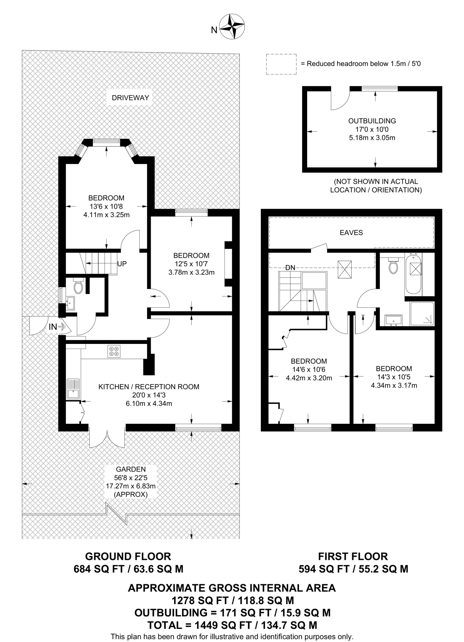
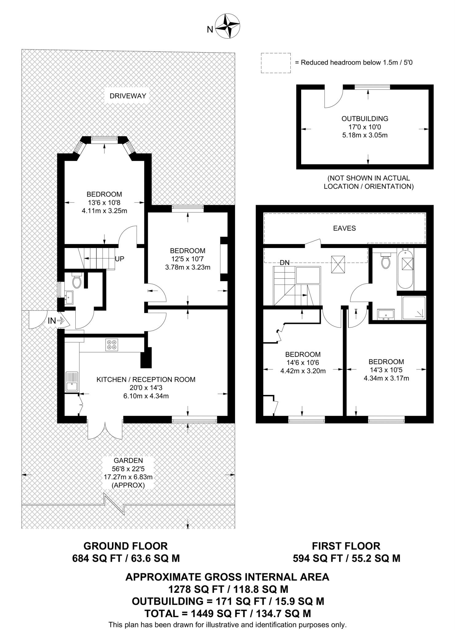
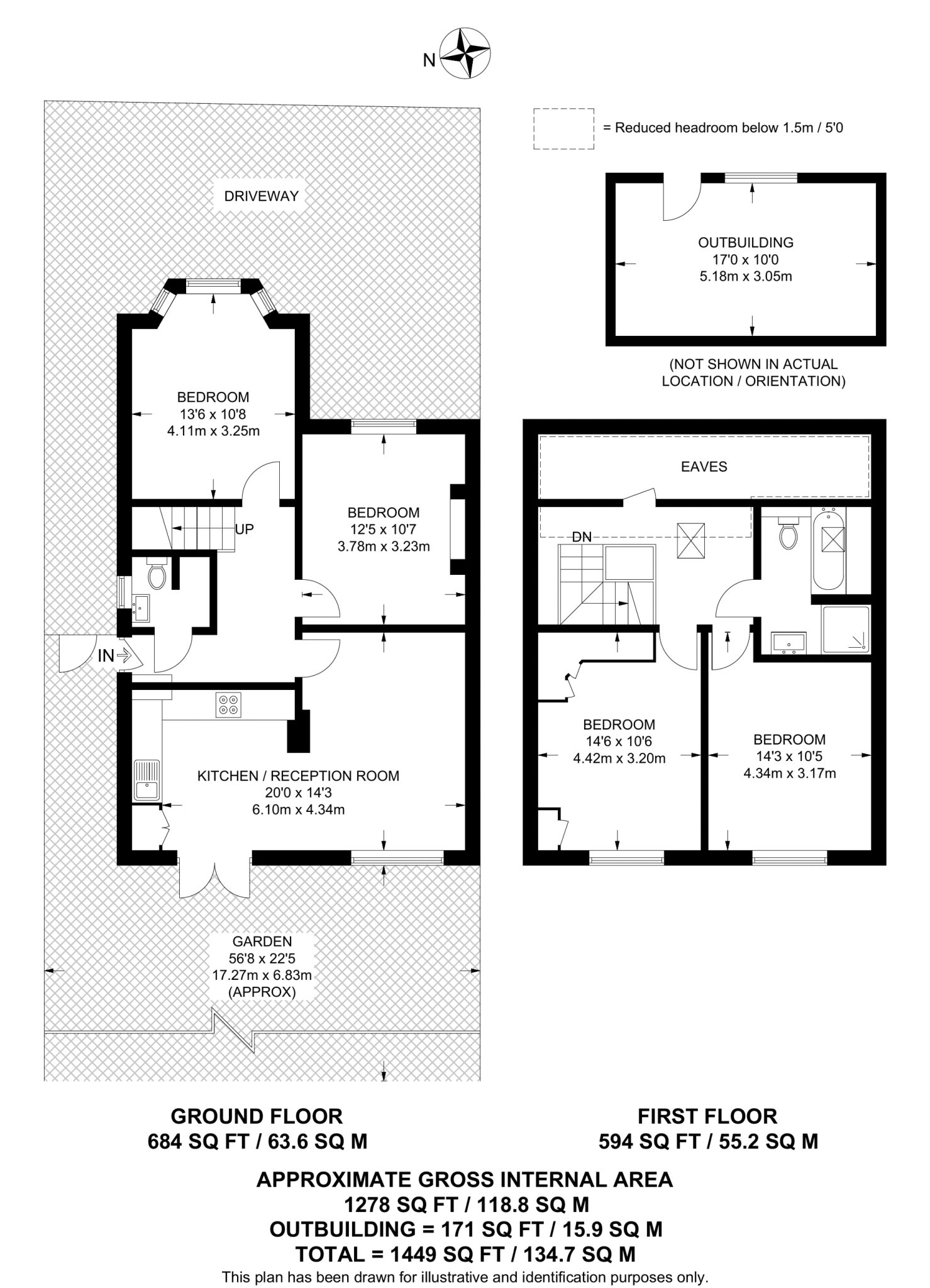
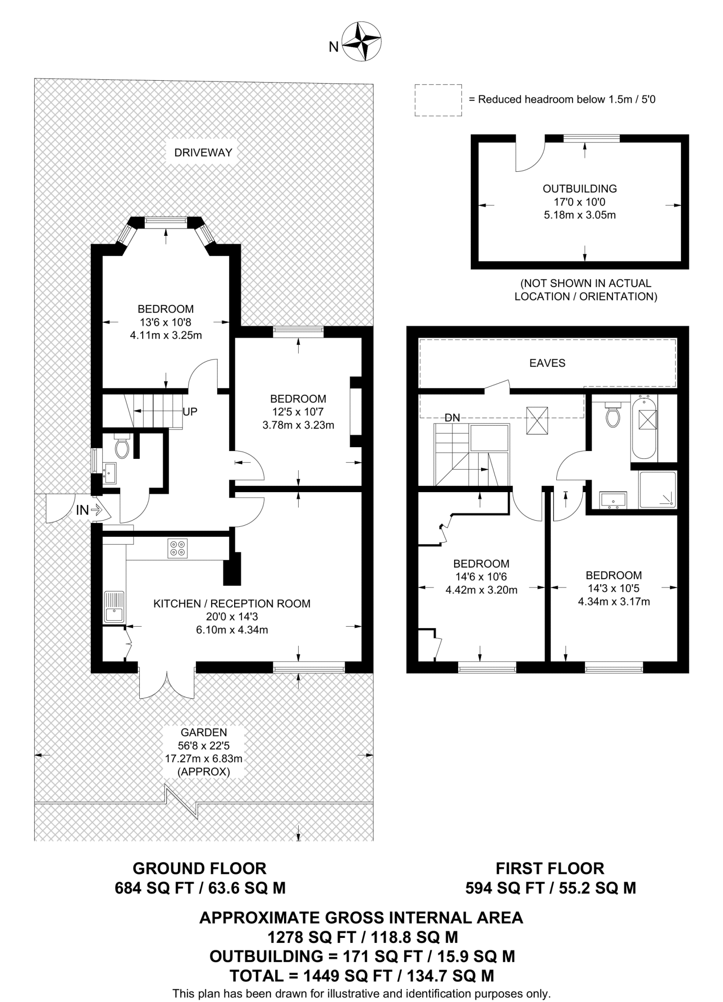
This well-presented four-bedroom semi-detached chalet bungalow combines period bones with contemporary interiors. A bright open-plan reception leads to a landscaped rear garden and patio, creating easy indoor-outdoor flow for family life and entertaining. The home benefits from double bedrooms with built-in storage and stylish sanitary fittings.
Practical daily living is supported by off-street driveway parking for several cars, a smart heating system and fast broadband — useful for commuters and home workers. The property sits within walking distance of Northolt and Northolt Park stations, plus a range of shops, cafés and parks.
Buyers should note there is a single family bathroom serving four bedrooms, which may influence suitability for larger families or future owners wanting an en-suite. The house dates from the 1930s–1940s, has solid brick construction with external insulation and double glazing of unknown install date, so some buyers may wish to investigate upgrade or maintenance timings.
Overall this freehold chalet bungalow offers spacious family accommodation on a decent plot in a well-connected location, appealing to buyers who prioritise space, parking and transport links while accepting limited bathroom provision.
3 bedroom bungalow for sale in Sandown Way, Northolt, UB5 — £550,000 • 3 bed • 1 bath • 1202 ft²
4 bedroom bungalow for sale in Strangeways, Watford, WD17 — £875,000 • 4 bed • 2 bath • 1707 ft²
3 bedroom semi-detached bungalow for sale in Micawber Avenue, Hillingdon, UB8 — £560,000 • 3 bed • 2 bath • 1095 ft²
4 bedroom semi-detached bungalow for sale in Walford Road, Uxbridge, UB8 — £680,000 • 4 bed • 2 bath • 1327 ft²
4 bedroom end of terrace house for sale in The Fairway, Northolt, UB5 — £640,000 • 4 bed • 2 bath • 1083 ft²
4 bedroom detached bungalow for sale in Hilliards Road, Uxbridge, UB8 — £725,000 • 4 bed • 2 bath • 1700 ft²






























































































































































































































































































































































































































































































