Characterful garden home near common land and top schools.
Newly renovated two-bedroom cottage with period features
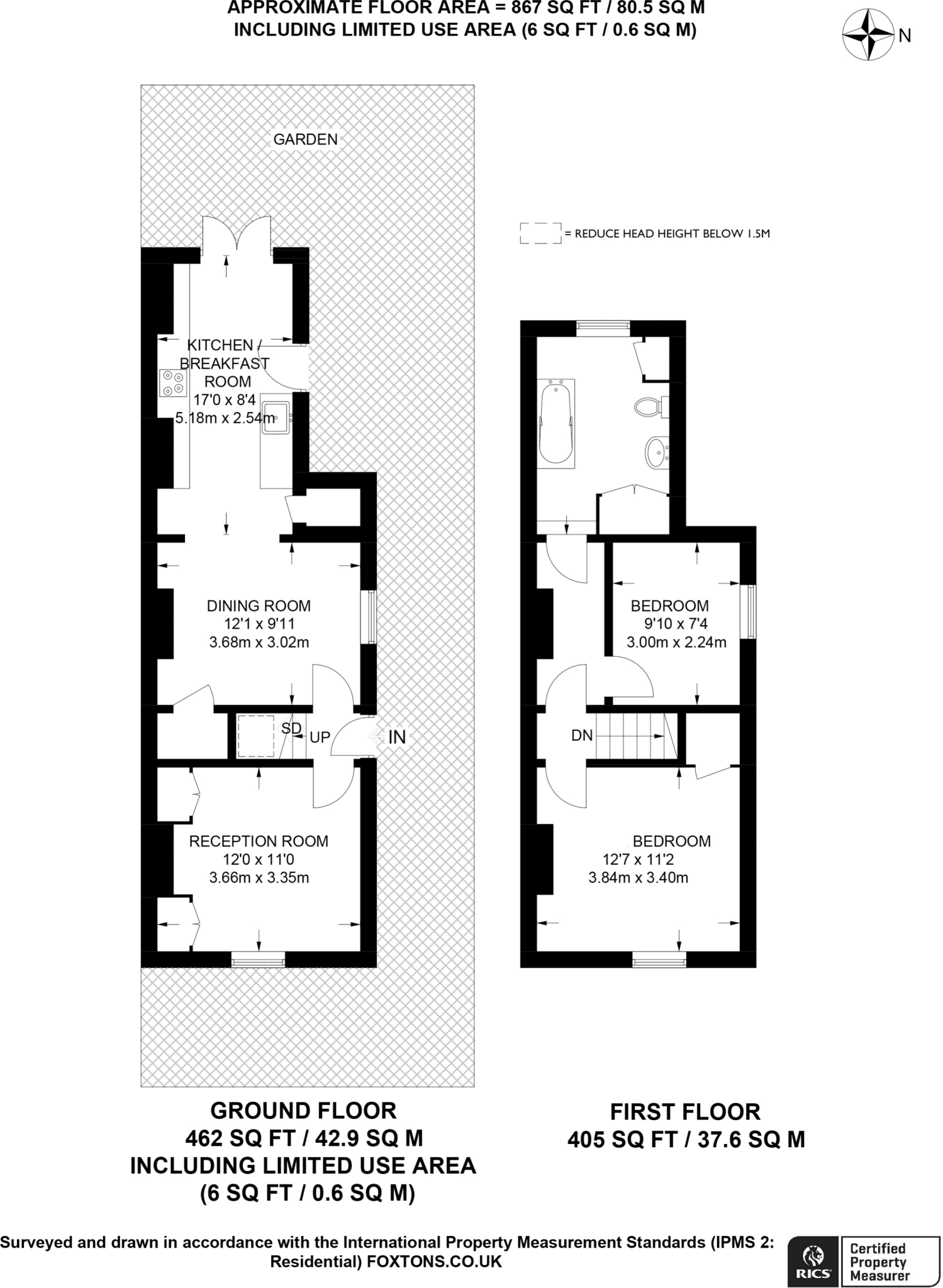
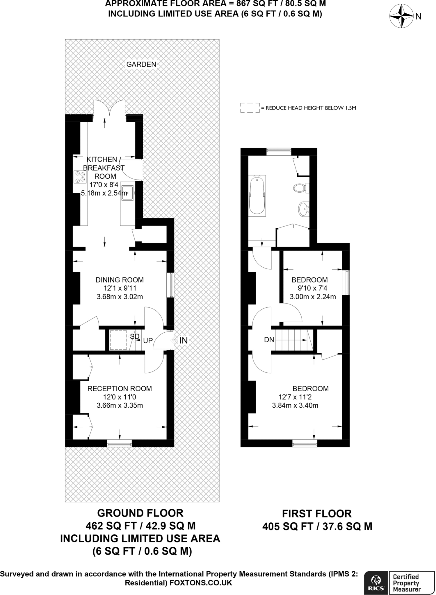
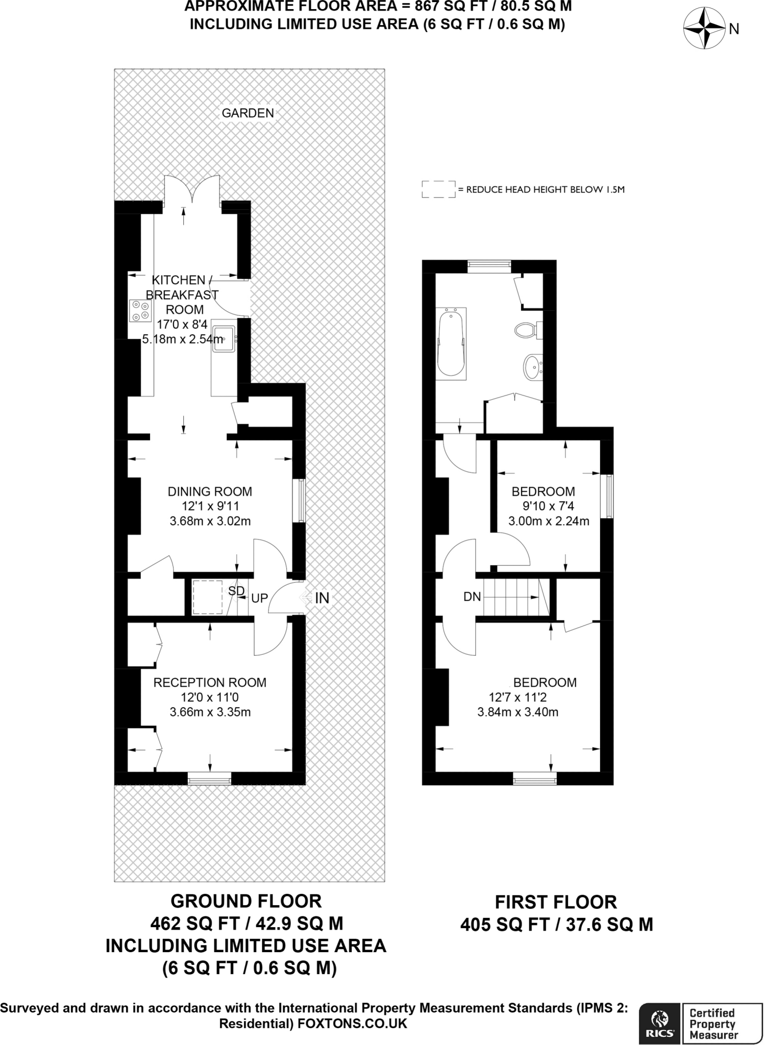
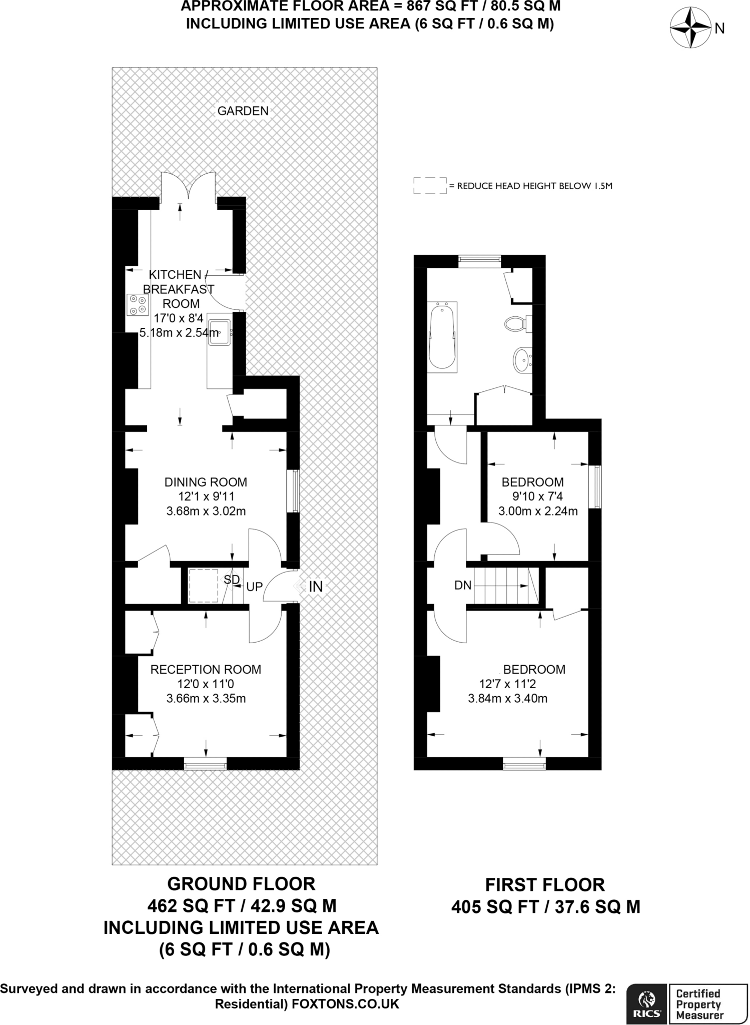
This newly renovated two-bedroom cottage combines period character with bright, contemporary living. Two reception rooms and a modern fitted kitchen create flexible family space while original features add charm. The private rear garden is a restful outdoor room, landscaped in a rustic style and large enough for children and plants.
Positioned on Perry Hill, the cottage sits close to common land, woodland and leisure amenities, with good access to Guildford’s shops, bars and restaurants. Several well-regarded schools are nearby including Worplesdon Primary and top-ranked Royal Grammar School Guildford, making the location especially convenient for families.
Practical details are favourable: freehold tenure, mains gas central heating with a boiler and radiators, double glazing and low local crime. Note the property is an average overall size (about 867 sq ft) with a single bathroom, and cavity walls are recorded as built without insulation (assumed), which may mean additional investment for improved energy efficiency. Broadband speeds are average; mobile signal is excellent.
Overall this is a characterful, move-in-ready cottage offering comfortable family living in a very affluent area, with scope to personalise and improve running costs if desired.
2 bedroom cottage for sale in St Marys Cottages, Guildford, GU3 — £650,000 • 2 bed • 1 bath • 1102 ft²
2 bedroom terraced house for sale in Burwood Cottages, One Tree Hill Road, Guildford, Surrey, GU4 — £550,000 • 2 bed • 1 bath • 705 ft²
2 bedroom end of terrace house for sale in Rose Cottages, Culmer Lane, Wormley, Godalming, GU8 — £425,000 • 2 bed • 1 bath • 749 ft²
2 bedroom end of terrace house for sale in Snowdenham Lane, Bramley, Guildford, GU5 — £420,000 • 2 bed • 1 bath • 646 ft²
2 bedroom semi-detached house for sale in High Path Road, Merrow, Guildford, Surrey, GU1 — £570,000 • 2 bed • 1 bath • 852 ft²
3 bedroom terraced house for sale in West End Cottages, Ripley, Woking, GU23 — £815,000 • 3 bed • 2 bath • 974 ft²










































































































































































































































































